Your email has been sent.
Investment Highlights
- Located in an Opportunity Zone, offering potential tax benefits for qualified investors.
- Eight contiguous parcels totaling approximately 1.09 acres in a high-demand urban area.
- Situated in a rapidly transforming neighborhood with strong housing demand and growth potential.
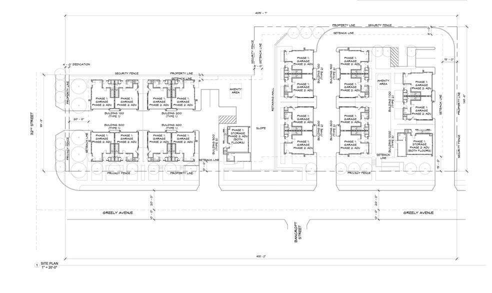
- Includes architectural plans for a 41-unit residential development, reducing time to market.
- Excellent access to Interstates 5 and 15, Downtown San Diego, and major employment centers.
Executive Summary
Property Facts
1 Lot Available
Lot
| Price | $2,745,280 CAD | Lot Size | 1.09 AC |
| Price Per AC | $2,518,605.20 CAD |
| Price | $2,745,280 CAD |
| Price Per AC | $2,518,605.20 CAD |
| Lot Size | 1.09 AC |
Multi-parcel high density development opportunity in a supply-constrained San Diego neighborhood includes 8 contiguous parcels of land in an area that is nearly fully built out. Sale includes architectural plans for a 40-unit residential project.
Description
This rare multi-parcel development opportunity is located in the heart of San Diego’s rapidly evolving Logan Heights neighborhood. Spanning approximately 1.09 acres across eight contiguous parcels, the site offers exceptional potential for a high-density residential project in a market where land availability is increasingly scarce. The property is positioned within an Opportunity Zone, providing significant tax advantages for qualified investors and developers. Architectural plans for a 41-unit residential development are included, allowing a buyer to move forward with a clear vision and reduced entitlement risk. The surrounding area is nearly fully built out, underscoring the rarity of this offering and its long-term value proposition. With infrastructure already in place and zoning that supports multifamily development (RM-1-1), this site is ideally suited for builders seeking scale in a supply-constrained market. The property benefits from excellent connectivity to major transportation routes, including Interstates 5 and 15, and is just minutes from Downtown San Diego, the Port of San Diego, and San Diego International Airport. Residents will enjoy proximity to employment hubs, educational institutions, and cultural amenities, making this an attractive location for future tenants or buyers. This is a compelling opportunity to capitalize on strong housing demand, neighborhood revitalization, and the economic incentives of an Opportunity Zone. Whether for build-to-rent or for-sale housing, this site offers a strategic entry point into one of San Diego’s most dynamic submarkets.
Property Taxes
| Parcel Numbers | Improvements Assessment | $0 CAD | |
| Land Assessment | $1,913,022 CAD | Total Assessment | $1,913,022 CAD |
Property Taxes
Presented by
0 32nd st
Hmm, there seems to have been an error sending your message. Please try again.
Thanks! Your message was sent.



