Log In/Sign Up
Your email has been sent.
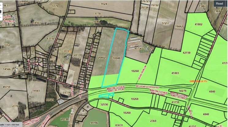
0 Belvoir School Rd
Greenville, NC 27834
Land For Sale
·
32.42 AC


Investment Highlights
- Water nearby
- Great Visibility from Hwy 264/Martin Luther King Jr Hwy
- Rural setting with convenient access to Greenville
- 32.42± acres
Executive Summary
This 32.42± acre tract offers an excellent opportunity for investment, future development, farm land, or land banking in a steadily growing area of Pitt County, just outside the growing Greenville market. Located on Belvoir School Road, the property provides convenient access while maintaining a rural setting.
Property Facts Under Contract
| Sale Type | Investment | Property Subtype | Commercial |
| No. Lots | 1 | Proposed Use | Commercial |
| Property Type | Land | Total Lot Size | 32.42 AC |
| Sale Type | Investment |
| No. Lots | 1 |
| Property Type | Land |
| Property Subtype | Commercial |
| Proposed Use | Commercial |
| Total Lot Size | 32.42 AC |
1 Lot Available
Lot
| Price | $270,395 CAD | Lot Size | 32.42 AC |
| Price Per AC | $8,340.38 CAD |
| Price | $270,395 CAD |
| Price Per AC | $8,340.38 CAD |
| Lot Size | 32.42 AC |
Land for sale
Description
Utilities are nearby, enhancing the site’s potential for future development (buyer to verify availability and capacity).
Property Taxes
| Parcel Number | 010048 | Improvements Assessment | $0 CAD |
| Land Assessment | $169,622 CAD | Total Assessment | $169,622 CAD |
Property Taxes
Parcel Number
010048
Land Assessment
$169,622 CAD
Improvements Assessment
$0 CAD
Total Assessment
$169,622 CAD
1 of 3
Videos
Matterport 3D Exterior
Matterport 3D Tour
Photos
Street View
Street
Map
