Log In/Sign Up
Your email has been sent.
0 Charles Drive - 0 Charles Drive, Athens, GA 30605 30 Acres of Residential Land Offered at $3,010,700 CAD in Athens, GA 30605



Investment Highlights
- 1+ acre lot sizes
- County-Maintained Paved Road
- 20 total lots available
Executive Summary
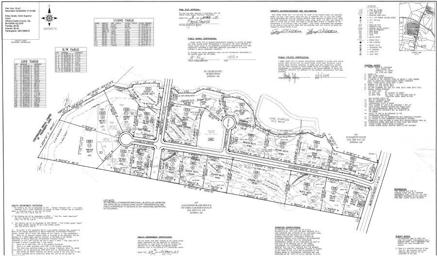
St. Charles Subdivision – Phase II
Now releasing 20 new estate lots in the highly regarded St. Charles community. Each homesite is approximately one acre (±), offering ample space for custom home construction while maintaining neighborhood continuity and privacy.
Located within minutes of schools, shopping, and major commuter routes, this next phase continues the St. Charles reputation for quality development and thoughtful planning. All lots feature paved road frontage, underground utilities, and protective covenants to preserve long-term value.
Perfect opportunity for builders and individuals seeking large, ready-to-build lots in a proven community.
Lot sizes: ±1 acre each
Total lots available: 20
Utilities: Underground power | Water | Septic (per lot)
Access: County-maintained paved road
LOTS CAN BE SOLD INDIVIDUALLY, IN GROUPS OR ALL TOGETHER
Contact the listing team for full lot pricing, plat maps, and availability.
Now releasing 20 new estate lots in the highly regarded St. Charles community. Each homesite is approximately one acre (±), offering ample space for custom home construction while maintaining neighborhood continuity and privacy.
Located within minutes of schools, shopping, and major commuter routes, this next phase continues the St. Charles reputation for quality development and thoughtful planning. All lots feature paved road frontage, underground utilities, and protective covenants to preserve long-term value.
Perfect opportunity for builders and individuals seeking large, ready-to-build lots in a proven community.
Lot sizes: ±1 acre each
Total lots available: 20
Utilities: Underground power | Water | Septic (per lot)
Access: County-maintained paved road
LOTS CAN BE SOLD INDIVIDUALLY, IN GROUPS OR ALL TOGETHER
Contact the listing team for full lot pricing, plat maps, and availability.
Property Facts
| Price | $3,010,700 CAD | Property Subtype | Residential |
| Sale Type | Investment or Owner User | Proposed Use | |
| No. Lots | 1 | Total Lot Size | 30.00 AC |
| Property Type | Land | ||
| Zoning | AR - Agricultural Residential | ||
| Price | $3,010,700 CAD |
| Sale Type | Investment or Owner User |
| No. Lots | 1 |
| Property Type | Land |
| Property Subtype | Residential |
| Proposed Use | |
| Total Lot Size | 30.00 AC |
| Zoning | AR - Agricultural Residential |
1 Lot Available
Lot
| Price | $3,010,700 CAD | Lot Size | 30.00 AC |
| Price Per AC | $100,356.67 CAD |
| Price | $3,010,700 CAD |
| Price Per AC | $100,356.67 CAD |
| Lot Size | 30.00 AC |
St. Charles Subdivision – Phase II Now releasing 20 new estate lots in the highly regarded St. Charles community. Each homesite is approximately one acre (±), offering ample space for custom home construction while maintaining neighborhood continuity
1 1
Not walkable
10/100
Exceptionally drivable
90/100
Fairly bikeable
40/100
1 of 10
Videos
Matterport 3D Exterior
Matterport 3D Tour
Photos
Street View
Street
Map
1 of 1
Presented by
0 Charles Drive - 0 Charles Drive, Athens, GA 30605
Already a member? Log In
Hmm, there seems to have been an error sending your message. Please try again.
Thanks! Your message was sent.
