Log In/Sign Up
Your email has been sent.
Investment Highlights
- Great High Visibility/High Traffic Location on just off Main Thoroughfare
- Minutes from I-66
- Zoned Commercial
Executive Summary
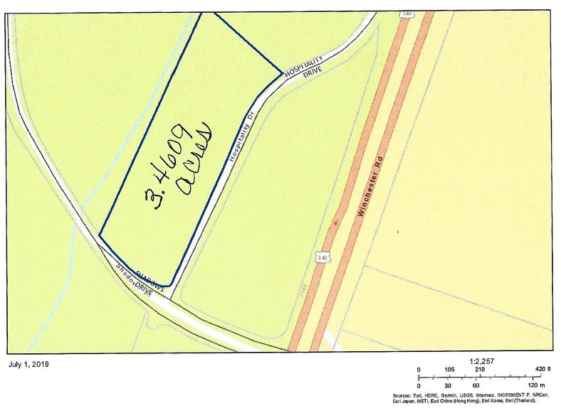
3.46 Acres of Commercially Zoned Land on Rt. 522/Rt.340. Hotel and restaurant are next door to this property. Ideal development parcel with excellent access and road visibility.
Property Facts
| Price | $1,222,266 CAD | Property Type | Land |
| Sale Type | Investment or Owner User | Property Subtype | Commercial |
| No. Lots | 1 | Total Lot Size | 3.46 AC |
| Zoning | Commercial | ||
| Price | $1,222,266 CAD |
| Sale Type | Investment or Owner User |
| No. Lots | 1 |
| Property Type | Land |
| Property Subtype | Commercial |
| Total Lot Size | 3.46 AC |
| Zoning | Commercial |
1 Lot Available
Lot 12J-1
| Price | $1,222,266 CAD | Lot Size | 3.46 AC |
| Price Per AC | $353,255.97 CAD |
| Price | $1,222,266 CAD |
| Price Per AC | $353,255.97 CAD |
| Lot Size | 3.46 AC |
3.46 Acres of Commercially Zoned Land on Rt. 522/Rt.340. Hotel and restaurant are next door to this property. Ideal development parcel with excellent access and road visibility.
Somewhat walkable
20/100
Exceptionally drivable
100/100
Limited public transit
30/100
Somewhat bikeable
20/100
Property Taxes
| Parcel Number | 12J-1 | Improvements Assessment | $0 CAD |
| Land Assessment | $1,596,638 CAD | Total Assessment | $1,596,638 CAD |
Property Taxes
Parcel Number
12J-1
Land Assessment
$1,596,638 CAD
Improvements Assessment
$0 CAD
Total Assessment
$1,596,638 CAD
1 of 8
Videos
Matterport 3D Exterior
Matterport 3D Tour
Photos
Street View
Street
Map
Presented by
0 Hospitality Dr
Already a member? Log In
Hmm, there seems to have been an error sending your message. Please try again.
Thanks! Your message was sent.




