Log In/Sign Up
Your email has been sent.
0 Reed Ave Ave - Builder Lots in Mandarin-Jacksonville 0.25 Acres of Residential Land Offered at $2,516,592 CAD in Jacksonville, FL 32257



Investment Highlights
- PUD single family development in Mandarin area of Jacksonville, FL
- Site does not require a lift station (city water and sewer at site)
- 80' x 115' shovel ready lots
Executive Summary
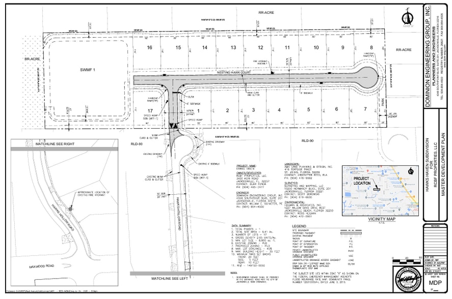
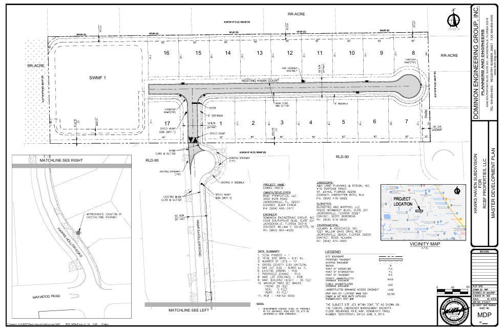
Great small subdivision opportunity for homebuilder in the Mandarin area of Jacksonville, FL. This PUD with all entitlements is shovel ready and approved for 17 lots(80'x115'). No lift station required, and utilities are at the site. Individual builder lots are available and will average .25 acres per lot. Hawks Haven subdivision is located within a quiet neighborhood area of Mandarin and will provide a great location for new homeowners. Development will start early 2026. Developed lot prices average in the low $200s. Please contact me for further details and information (904.280.3907, mbeckley@rcbfproperties.com).
Property Facts
| Price | $2,516,592 CAD | Property Subtype | Residential |
| Sale Type | Investment or Owner User | Proposed Use | Single Family Development |
| No. Lots | 1 | Total Lot Size | 0.25 AC |
| Property Type | Land | Cross Streets | Hawks Hollow |
| Zoning | PUD - Planned Unit Development | ||
| Price | $2,516,592 CAD |
| Sale Type | Investment or Owner User |
| No. Lots | 1 |
| Property Type | Land |
| Property Subtype | Residential |
| Proposed Use | Single Family Development |
| Total Lot Size | 0.25 AC |
| Cross Streets | Hawks Hollow |
| Zoning | PUD - Planned Unit Development |
1 Lot Available
Lot
| Price | $2,516,592 CAD | Lot Size | 0.25 AC |
| Price Per AC | $10,066,367.79 CAD |
| Price | $2,516,592 CAD |
| Price Per AC | $10,066,367.79 CAD |
| Lot Size | 0.25 AC |
PUD with 17 single family builder lots averaging .25 acres per lot in Jacksonville, Florida. Hawks Haven subdivision is located within a quiet neighborhood area of Mandarin (lot size of 80'x115'). Development will start Feb 2026 on 6.78 ac site.
Description
17 lot subdivision in Mandarin area in Jacksonville, FL shovel-ready for development. No lift station required.
1 1
Property Taxes
| Parcel Number | 149153-0050 | Improvements Assessment | $0 CAD |
| Land Assessment | $0 CAD | Total Assessment | $946,328 CAD |
Property Taxes
Parcel Number
149153-0050
Land Assessment
$0 CAD
Improvements Assessment
$0 CAD
Total Assessment
$946,328 CAD
1 of 4
Videos
Matterport 3D Exterior
Matterport 3D Tour
Photos
Street View
Street
Map
1 of 1
Presented by
0 Reed Ave Ave - Builder Lots in Mandarin-Jacksonville
Already a member? Log In
Hmm, there seems to have been an error sending your message. Please try again.
Thanks! Your message was sent.
