Log In/Sign Up
Your email has been sent.
0 Tenth St - Roadway Extension & Land Development Project 0.23 Acres of Residential Land Offered at $412,824 CAD in Woonsocket, RI 02895

Executive Summary
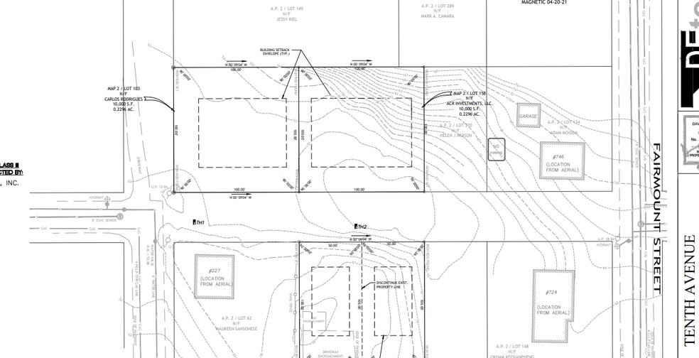
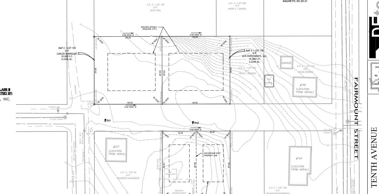
Exceptional land development opportunity in Woonsocket, RI, featuring three buildable lots, each approximately 10,000 square feet. All parcels are zoned R3 and come with city approval to construct three two-family homes (no building permits issued yet, city approval only). DPW approval is currently in progress, adding momentum to this ready-to-move-forward project. Roadway extension plans and land development plans are already in hand, providing valuable time and cost savings for developers. This offering presents a rare chance to develop multi-family housing in a strong rental market. Conveniently located near major highways, shopping, dining, and local amenities, the property offers excellent accessibility and appeal for future tenants or owner-occupants. An outstanding investment opportunity with significant upside in a desirable Woonsocket location.
Property Facts
| Price | $412,824 CAD | Property Subtype | Residential |
| Sale Type | Investment | Proposed Use | Single Family Residence |
| No. Lots | 1 | Total Lot Size | 0.23 AC |
| Property Type | Land | ||
| Zoning | R3 - Residential | ||
| Price | $412,824 CAD |
| Sale Type | Investment |
| No. Lots | 1 |
| Property Type | Land |
| Property Subtype | Residential |
| Proposed Use | Single Family Residence |
| Total Lot Size | 0.23 AC |
| Zoning | R3 - Residential |
1 Lot Available
Lot
| Price | $412,824 CAD | Lot Size | 0.23 AC |
| Price Per AC | $1,794,887.00 CAD |
| Price | $412,824 CAD |
| Price Per AC | $1,794,887.00 CAD |
| Lot Size | 0.23 AC |
1 1
Fairly walkable
40/100
Moderately drivable
70/100
Limited public transit
30/100
Fairly bikeable
40/100
Property Taxes
| Parcel Number | WOON-000002D-000270-000048 | Improvements Assessment | $0 CAD |
| Land Assessment | $26,539 CAD | Total Assessment | $26,539 CAD |
Property Taxes
Parcel Number
WOON-000002D-000270-000048
Land Assessment
$26,539 CAD
Improvements Assessment
$0 CAD
Total Assessment
$26,539 CAD
1 of 2
Videos
Matterport 3D Exterior
Matterport 3D Tour
Photos
Street View
Street
Map
1 of 1
Presented by
0 Tenth St - Roadway Extension & Land Development Project
Already a member? Log In
Hmm, there seems to have been an error sending your message. Please try again.
Thanks! Your message was sent.
