Log In/Sign Up
Your email has been sent.
US Route One, Freeport 0 US Route 1 37.9 Acres of Commercial Land for Lease in Freeport, ME 04032



LOT Available
Display Rental Rate as
| Rental Rate |
|
Lot Size | 37.90 AC |
| Lease Term | Negotiable |
| Rental Rate | |
| Lease Term | Negotiable |
| Lot Size | 37.90 AC |
LEASE RATE: TBD
Property Overview
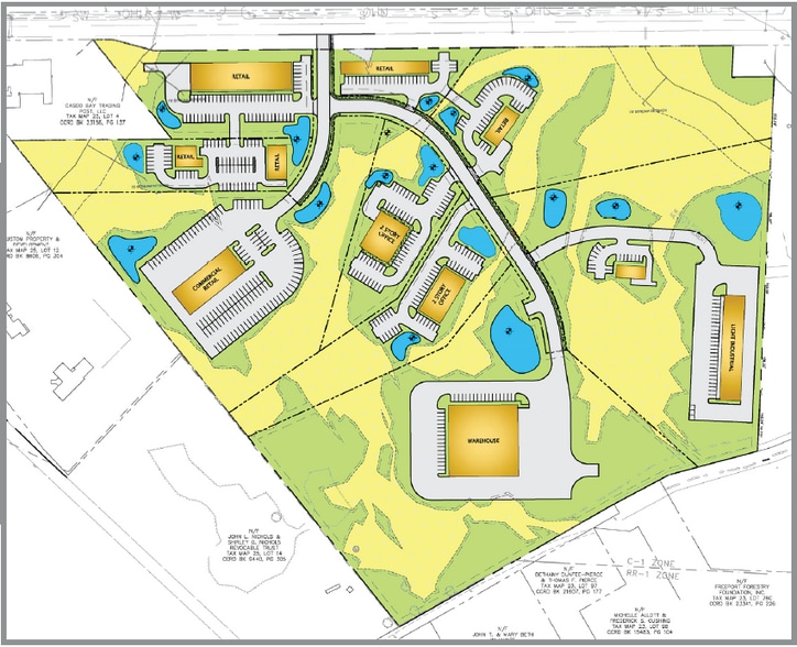
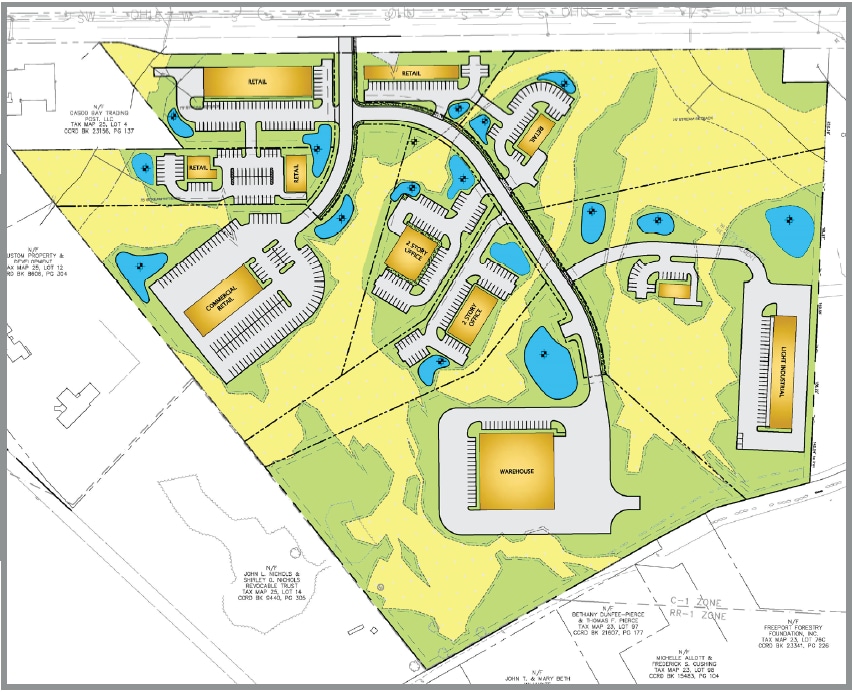
CONCEPT PLAN POTENTIAL USES AND SIZES* (for plan design purposes) RETAIL SPACE: 3 Buildings - each with a minimum 2,500 SF RESTAURANT/RETAIL SPACE: 2 Buildings - each with a minimum 2,500 SF OFFICE: 2 Buildings - each with a minimum 5,000 SF WAREHOUSE: 1 Building - with a minimum 3,000 SF LIGHT INDUSTRIAL: 1 Building - with a minimum 3,000 SF
Property Facts
| Total Space Available | 37.90 AC | Property Subtype | Commercial |
| Property Type | Land |
| Total Space Available | 37.90 AC |
| Property Type | Land |
| Property Subtype | Commercial |
1 1
Somewhat walkable
20/100
Exceptionally drivable
100/100
Somewhat bikeable
20/100
1 of 5
Videos
Matterport 3D Exterior
Matterport 3D Tour
Photos
Street View
Street
Map
1 of 1
Presented by
US Route One, Freeport | 0 US Route 1
Already a member? Log In
Hmm, there seems to have been an error sending your message. Please try again.
Thanks! Your message was sent.
