Log In/Sign Up
Your email has been sent.
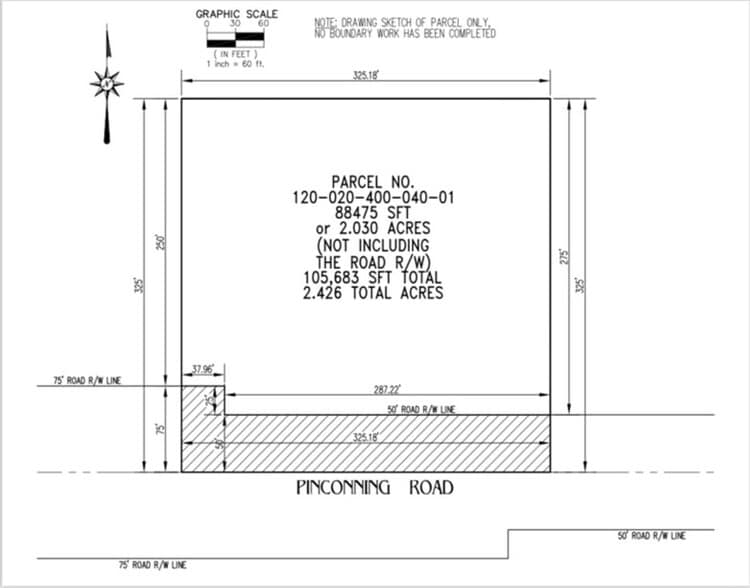
00 E Pinconing East Pinconning Road Road - 00 E Pinconning Rd 2.5 Acres of Commercial Land Offered at $346,610 CAD in Pinconning, MI 48650


EXECUTIVE SUMMARY
Located off the the Pinconning Rd. exit next to 759 E Pinconning Rd. across the street from The Cheese House & McDonald's/ Shell gas station. Minutes from the Saganing Eagles Landing Casino. Township recently passed an ordinance approving area for a cannabis dispensary. Phase 1 environmental testing has been completed and reports were clean - call listing agent for a copy of reports. Sewer is available onsite. Another parcel of land is available next door with another 6.67 acres. Get an exceptional deal with buying both parcels to have a total of 10 acres
PROPERTY FACTS
| Price | $346,610 CAD | Property Subtype | Commercial |
| Sale Type | Investment | Proposed Use | Commercial |
| No. Lots | 1 | Total Lot Size | 2.50 AC |
| Property Type | Land | ||
| Zoning | C-1 - Commercial | ||
| Price | $346,610 CAD |
| Sale Type | Investment |
| No. Lots | 1 |
| Property Type | Land |
| Property Subtype | Commercial |
| Proposed Use | Commercial |
| Total Lot Size | 2.50 AC |
| Zoning | C-1 - Commercial |
1 LOT AVAILABLE
Lot
| Price | $346,610 CAD | Lot Size | 2.50 AC |
| Price Per AC | $138,644.00 CAD |
| Price | $346,610 CAD |
| Price Per AC | $138,644.00 CAD |
| Lot Size | 2.50 AC |
DESCRIPTION
Right at I 75 and Pinconing expired.
PROPERTY TAXES
| Parcel Number | 09-120-020-400-040-01 | Improvements Assessment | $0 CAD |
| Land Assessment | $0 CAD | Total Assessment | $6,375 CAD |
PROPERTY TAXES
Parcel Number
09-120-020-400-040-01
Land Assessment
$0 CAD
Improvements Assessment
$0 CAD
Total Assessment
$6,375 CAD
1 of 3
VIDEOS
MATTERPORT 3D EXTERIOR
MATTERPORT 3D TOUR
PHOTOS
STREET VIEW
STREET
MAP
Presented by
00 E Pinconing East Pinconning Road Road - 00 E Pinconning Rd
Already a member? Log In
Hmm, there seems to have been an error sending your message. Please try again.
Thanks! Your message was sent.

