Your email has been sent.
Pine Island Point - Outparcel 4 00 Sea Pine 1.76 Acres of Commercial Land for Lease in Myrtle Beach, SC 29577



Highlights
- Prime location at Highway 17 & 501 with high traffic counts
- Immediate availability: Unit 401 in Building B
- Ample parking and excellent site accessibility
- Adjacent to Coastal Grand Mall and major national retailers
- Pre-leasing opportunities in Buildings A, C & D
LOT Available
Display Rental Rate as
| Rental Rate |
|
Lot Size | 1.76 AC |
| Lease Term | Negotiable |
| Rental Rate | |
| Lease Term | Negotiable |
| Lot Size | 1.76 AC |
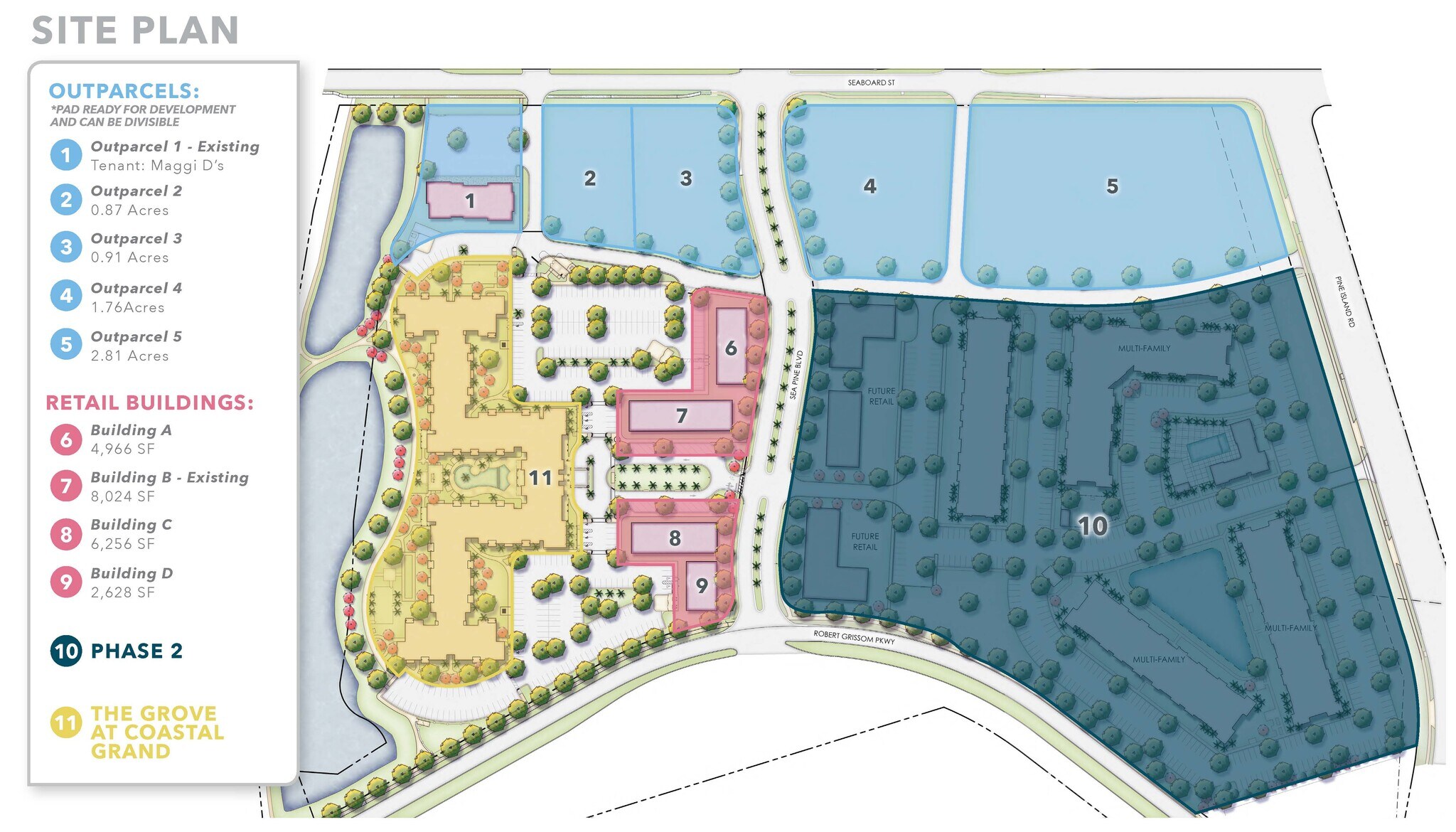
OUTPARCEL SIZES - 6.35 TOTAL ACRES *PAD READY FOR DEVELOPMENT AND CAN BE DIVISIBLE **MASTER STORM WATER POND IS IN PLACE FOR OUTPARCELS FOR SALE, BUILD-TO-SUIT & GROUND LEASE PRICING: Contact Agent to Discuss
Property Overview
Strategically located at the intersection of Highway 17 & Highway 501, Pine Island Point is a premier retail development in the heart of Myrtle Beach. Situated directly behind Coastal Grand Mall, adjacent to the brand-new The Grove at Coastal Grand (a 194-unit 55+ community), and just minutes from the Myrtle Beach International Airport, this development is perfectly positioned to capture a diverse and growing customer base. Surrounded by leading retailers like Walmart, Home Depot, and Costco, it attracts both local and visiting consumers. Building B has been delivered, with Unit 401 (1,753 SF) as the only vacancy and ready for tenant’s upfit. Pre-leasing opportunities are available for Buildings A, C & D. Outparcels are pad-ready and offered for ground lease, build-to-suit, or sale.
Property Facts
Presented by
Pine Island Point - Outparcel 4 | 00 Sea Pine
Hmm, there seems to have been an error sending your message. Please try again.
Thanks! Your message was sent.
