Your email has been sent.
1-2 Kelberdale 370 - 1,295 SF of Retail Space Available in Leyburn DL8 5AR



Highlights
- Natural light
- WC facility
- Kitchen
Space Availability (2)
Display Rental Rate as
- Space
- Size
- Term
- Rental Rate
- Type
| Space | Size | Term | Rental Rate | Rent Type | ||
| Ground, Ste 1 | 370 SF | Negotiable | Upon Request Upon Request Upon Request Upon Request | TBD | ||
| Ground, Ste 2 | 925 SF | Negotiable | $14.39 CAD/SF/YR $1.20 CAD/SF/MO $13,309 CAD/YR $1,109 CAD/MO | TBD |
Ground, Ste 1
- Versatile Retail Premises in Prime Location. - Close To Town Centre. - Large First Floor Space. - Kitchen Area. - WC. - Suitable for a Variety of Businesses. - Good Footfall Area. - Flexible Layout Options. - Good Natural Light. - Easy Access for Customers and Deliveries. - Competitive Rent Terms Available - Viewing Recommended. - Available To Let Now. Prime Retail Opportunity in the Heart of Leyburn â?? 1 Kelberdale Court An excellent opportunity to lease a well-proportioned retail premises ideally situated just a short distance from the vibrant centre of Leyburn, a popular and bustling market town in the heart of Wensleydale. Leyburn offers a thriving local community and an array of amenities including a variety of independent shops, cafés, pubs, and restaurants. The town also features reputable schools, churches, a medical practice, and leisure facilities such as sports grounds and children's play areas. A traditional outdoor market takes place every Friday, and the well-known Tennants Auctioneers is located nearby. The property enjoys excellent transport links, providing easy access to Richmond, Bedale, Northallerton, and the A1. The premises comprise a spacious staircase leading to an entrance hall, which opens into a large, light-filled main room, ideal for retail use or a variety of alternative commercial purposes. In addition, there are two separate smaller rooms suitable for use as offices or treatment spaces, along with a kitchenette and WC facilities. 1 Kelberdale Court offers versatile accommodation and would suit a wide range of business ventures. Early viewing is highly recommended to fully appreciate the potential this property has to offer.
- Use Class: E
- Partially Built-Out as Standard Retail Space
- Located in-line with other retail
- Central Heating System
- Partitioned Offices
- Kitchen
- Private Restrooms
- Display Window
- Kitchen & WC facilities
- Versatile use
- Natural light
Ground, Ste 2
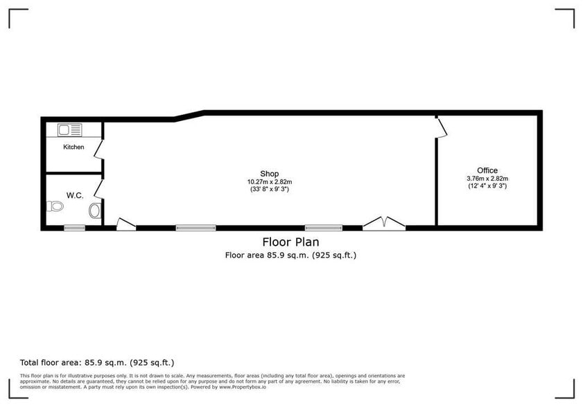
Prime Retail Opportunity in the Heart of Leyburn – 2 Kelberdale Court An excellent opportunity to lease a well-proportioned retail premises ideally situated just a short distance from the vibrant centre of Leyburn, a popular and bustling market town in the heart of Wensleydale. Ground Floor Retail Premises Main Space: Large open space, ideal retail or office space. Laminate wooden flooring. 2 Windows to front. Entrance door to front. Double doors to front. Office: Private office. Laminate wooden flooring. Window to front. Kitchen: Laminate wooden flooring. Base units. Worktop with stainless steel sink and drainer. WC: Laminate wooden flooring. WC. Washbasin. Window to front.
- Use Class: E
- Partially Built-Out as Standard Retail Space
- Located in-line with other retail
- Partitioned Offices
- Energy Performance Rating - D
- Private Restrooms
- Kitchen
- WC facility
- Natural light
- Versatile use
Service Types
The rent amount and service type that the tenant (lessee) will be responsible to pay to the landlord (lessor) throughout the lease term is negotiated prior to both parties signing a lease agreement. The service type will vary depending upon the services provided. Contact the listing broker for a full understanding of any associated costs or additional expenses for each service type.
1. Fully Repairing & Insuring: All obligations for repairing and insuring the property (or their share of the property) both internally and externally.
2. Internal Repairing Only: The tenant is responsible for internal repairs only. The landlord is responsible for structural and external repairs.
3. Internal Repairing & Insuring: The tenant is responsible for internal repairs and insurance for internal parts of the property only. The landlord is responsible for structural and external repairs.
4. Negotiable or TBD: This is used when the leasing contact does not provide the service type.
Property Facts
| Total Space Available | 1,295 SF | Gross Leasable Area | 1,495 SF |
| Property Type | Retail | Year Built | 1900 |
| Property Subtype | Storefront Retail/Office |
| Total Space Available | 1,295 SF |
| Property Type | Retail |
| Property Subtype | Storefront Retail/Office |
| Gross Leasable Area | 1,495 SF |
| Year Built | 1900 |
About the Property
The property is located in Leyburn close to the town centre and provides versatile commercial space.
Presented by
1-2 Kelberdale
Hmm, there seems to have been an error sending your message. Please try again.
Thanks! Your message was sent.






