Your email has been sent.
Display Rental Rate as
- Space
- Size
- Term
- Rental Rate
- Space Use
- Build-Out
- Available
Park Place is a 12+ acre mixed use development located in the heart of downtown Annapolis. Home to luxury condominiums and a 225 room full Service Westin Hotel, 158,000 SF of class A office space and up to 65,000 SF of unique ground level retail. Located strategically on the corner of West Street and Taylor Avenue in Annapolis, MD.
- Fully Built-Out as Professional Services Office
- Fits 7 - 21 People
- Mostly Open Floor Plan Layout
Park Place is a 12+ acre mixed use development located in the heart of downtown Annapolis. Home to luxury condominiums and a 225 room full Service Westin Hotel, 158,000 SF of class A office space and up to 65,000 SF of unique ground level retail.
- Fully Built-Out as Standard Office
- Fits 12 - 36 People
- Mostly Open Floor Plan Layout
- Partially Built-Out as Standard Office
- Fits 32 - 101 People
- Mostly Open Floor Plan Layout
- Space is in Excellent Condition
Park Place is a 12+ acre mixed use development located in the heart of downtown Annapolis. Home to luxury condominiums and a 225 room full Service Westin Hotel, 158,000 SF of class A office space and up to 65,000 SF of unique ground level retail.
- Listed rate may not include certain utilities, building services and property expenses
- Mostly Open Floor Plan Layout
- Fully Built-Out as Standard Office
- Fits 7 - 22 People
- Partially Built-Out as Standard Office
- Fits 8 - 25 People
- Mostly Open Floor Plan Layout
- Space is in Excellent Condition
| Space | Size | Term | Rental Rate | Space Use | Build-Out | Available |
| 1st Floor, Ste 12 | 2,580 SF | Negotiable | Upon Request Upon Request Upon Request Upon Request | Office/Retail | Full Build-Out | Now |
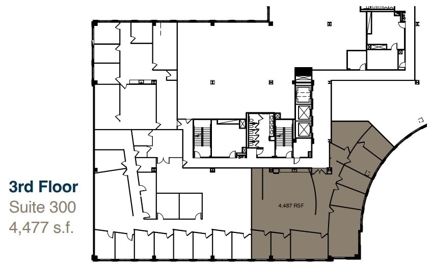
| 3rd Floor, Ste 300 | 4,487 SF | Negotiable | Upon Request Upon Request Upon Request Upon Request | Office | Full Build-Out | Now |
| 4th Floor, Ste 450 | 12,527 SF | Negotiable | Upon Request Upon Request Upon Request Upon Request | Office | Partial Build-Out | 60 Days |
| 5th Floor, Ste 500 | 2,672 SF | Negotiable | $57.86 CAD/SF/YR $4.82 CAD/SF/MO $154,589 CAD/YR $12,882 CAD/MO | Office | Full Build-Out | 30 Days |
| 5th Floor, Ste 530 | 3,076 SF | Negotiable | Upon Request Upon Request Upon Request Upon Request | Office | Partial Build-Out | Now |
1st Floor, Ste 12
| Size |
| 2,580 SF |
| Term |
| Negotiable |
| Rental Rate |
| Upon Request Upon Request Upon Request Upon Request |
| Space Use |
| Office/Retail |
| Build-Out |
| Full Build-Out |
| Available |
| Now |
3rd Floor, Ste 300
| Size |
| 4,487 SF |
| Term |
| Negotiable |
| Rental Rate |
| Upon Request Upon Request Upon Request Upon Request |
| Space Use |
| Office |
| Build-Out |
| Full Build-Out |
| Available |
| Now |
4th Floor, Ste 450
| Size |
| 12,527 SF |
| Term |
| Negotiable |
| Rental Rate |
| Upon Request Upon Request Upon Request Upon Request |
| Space Use |
| Office |
| Build-Out |
| Partial Build-Out |
| Available |
| 60 Days |
5th Floor, Ste 500
| Size |
| 2,672 SF |
| Term |
| Negotiable |
| Rental Rate |
| $57.86 CAD/SF/YR $4.82 CAD/SF/MO $154,589 CAD/YR $12,882 CAD/MO |
| Space Use |
| Office |
| Build-Out |
| Full Build-Out |
| Available |
| 30 Days |
5th Floor, Ste 530
| Size |
| 3,076 SF |
| Term |
| Negotiable |
| Rental Rate |
| Upon Request Upon Request Upon Request Upon Request |
| Space Use |
| Office |
| Build-Out |
| Partial Build-Out |
| Available |
| Now |
- Space
- Size
- Term
- Rental Rate
- Space Use
- Build-Out
- Available
Park Place is a 12+ acre mixed use development located in the heart of downtown Annapolis. Home to luxury condominiums and a 225 room full Service Westin Hotel, 158,000 SF of class A office space and up to 65,000 SF of unique ground level retail.
- Fully Built-Out as a Restaurant or Café Space
- Located in-line with other retail
Park Place is a 12+ acre mixed use development located in the heart of downtown Annapolis. Home to luxury condominiums and a 225 room full Service Westin Hotel, 158,000 SF of class A office space and up to 65,000 SF of unique ground level retail. Located strategically on the corner of West Street and Taylor Avenue in Annapolis, MD.
- Fully Built-Out as Professional Services Office
- Fits 7 - 21 People
- Mostly Open Floor Plan Layout
Park Place is a 12+ acre mixed use development located in the heart of downtown Annapolis. Home to luxury condominiums and a 225 room full Service Westin Hotel, 158,000 SF of class A office space and up to 65,000 SF of unique ground level retail.
- Fully Built-Out as Standard Office
- Fits 12 - 36 People
- Mostly Open Floor Plan Layout
- Partially Built-Out as Standard Office
- Fits 32 - 101 People
- Mostly Open Floor Plan Layout
- Space is in Excellent Condition
Park Place is a 12+ acre mixed use development located in the heart of downtown Annapolis. Home to luxury condominiums and a 225 room full Service Westin Hotel, 158,000 SF of class A office space and up to 65,000 SF of unique ground level retail.
- Listed rate may not include certain utilities, building services and property expenses
- Mostly Open Floor Plan Layout
- Fully Built-Out as Standard Office
- Fits 7 - 22 People
- Partially Built-Out as Standard Office
- Fits 8 - 25 People
- Mostly Open Floor Plan Layout
- Space is in Excellent Condition
| Space | Size | Term | Rental Rate | Space Use | Build-Out | Available |
| 1st Floor, Ste 1 | 1,790 SF | Negotiable | Upon Request Upon Request Upon Request Upon Request | Retail | Full Build-Out | Now |
| 1st Floor, Ste 12 | 2,580 SF | Negotiable | Upon Request Upon Request Upon Request Upon Request | Office/Retail | Full Build-Out | Now |
| 3rd Floor, Ste 300 | 4,487 SF | Negotiable | Upon Request Upon Request Upon Request Upon Request | Office | Full Build-Out | Now |
| 4th Floor, Ste 450 | 12,527 SF | Negotiable | Upon Request Upon Request Upon Request Upon Request | Office | Partial Build-Out | 60 Days |
| 5th Floor, Ste 500 | 2,672 SF | Negotiable | $57.86 CAD/SF/YR $4.82 CAD/SF/MO $154,589 CAD/YR $12,882 CAD/MO | Office | Full Build-Out | 30 Days |
| 5th Floor, Ste 530 | 3,076 SF | Negotiable | Upon Request Upon Request Upon Request Upon Request | Office | Partial Build-Out | Now |
1st Floor, Ste 1
| Size |
| 1,790 SF |
| Term |
| Negotiable |
| Rental Rate |
| Upon Request Upon Request Upon Request Upon Request |
| Space Use |
| Retail |
| Build-Out |
| Full Build-Out |
| Available |
| Now |
1st Floor, Ste 12
| Size |
| 2,580 SF |
| Term |
| Negotiable |
| Rental Rate |
| Upon Request Upon Request Upon Request Upon Request |
| Space Use |
| Office/Retail |
| Build-Out |
| Full Build-Out |
| Available |
| Now |
3rd Floor, Ste 300
| Size |
| 4,487 SF |
| Term |
| Negotiable |
| Rental Rate |
| Upon Request Upon Request Upon Request Upon Request |
| Space Use |
| Office |
| Build-Out |
| Full Build-Out |
| Available |
| Now |
4th Floor, Ste 450
| Size |
| 12,527 SF |
| Term |
| Negotiable |
| Rental Rate |
| Upon Request Upon Request Upon Request Upon Request |
| Space Use |
| Office |
| Build-Out |
| Partial Build-Out |
| Available |
| 60 Days |
5th Floor, Ste 500
| Size |
| 2,672 SF |
| Term |
| Negotiable |
| Rental Rate |
| $57.86 CAD/SF/YR $4.82 CAD/SF/MO $154,589 CAD/YR $12,882 CAD/MO |
| Space Use |
| Office |
| Build-Out |
| Full Build-Out |
| Available |
| 30 Days |
5th Floor, Ste 530
| Size |
| 3,076 SF |
| Term |
| Negotiable |
| Rental Rate |
| Upon Request Upon Request Upon Request Upon Request |
| Space Use |
| Office |
| Build-Out |
| Partial Build-Out |
| Available |
| Now |
1st Floor, Ste 1
| Size | 1,790 SF |
| Term | Negotiable |
| Rental Rate | Upon Request |
| Space Use | Retail |
| Build-Out | Full Build-Out |
| Available | Now |
Park Place is a 12+ acre mixed use development located in the heart of downtown Annapolis. Home to luxury condominiums and a 225 room full Service Westin Hotel, 158,000 SF of class A office space and up to 65,000 SF of unique ground level retail.
- Fully Built-Out as a Restaurant or Café Space
- Located in-line with other retail
1st Floor, Ste 12
| Size | 2,580 SF |
| Term | Negotiable |
| Rental Rate | Upon Request |
| Space Use | Office/Retail |
| Build-Out | Full Build-Out |
| Available | Now |
Park Place is a 12+ acre mixed use development located in the heart of downtown Annapolis. Home to luxury condominiums and a 225 room full Service Westin Hotel, 158,000 SF of class A office space and up to 65,000 SF of unique ground level retail. Located strategically on the corner of West Street and Taylor Avenue in Annapolis, MD.
- Fully Built-Out as Professional Services Office
- Mostly Open Floor Plan Layout
- Fits 7 - 21 People
3rd Floor, Ste 300
| Size | 4,487 SF |
| Term | Negotiable |
| Rental Rate | Upon Request |
| Space Use | Office |
| Build-Out | Full Build-Out |
| Available | Now |
Park Place is a 12+ acre mixed use development located in the heart of downtown Annapolis. Home to luxury condominiums and a 225 room full Service Westin Hotel, 158,000 SF of class A office space and up to 65,000 SF of unique ground level retail.
- Fully Built-Out as Standard Office
- Mostly Open Floor Plan Layout
- Fits 12 - 36 People
4th Floor, Ste 450
| Size | 12,527 SF |
| Term | Negotiable |
| Rental Rate | Upon Request |
| Space Use | Office |
| Build-Out | Partial Build-Out |
| Available | 60 Days |
- Partially Built-Out as Standard Office
- Mostly Open Floor Plan Layout
- Fits 32 - 101 People
- Space is in Excellent Condition
5th Floor, Ste 500
| Size | 2,672 SF |
| Term | Negotiable |
| Rental Rate | $57.86 CAD/SF/YR |
| Space Use | Office |
| Build-Out | Full Build-Out |
| Available | 30 Days |
Park Place is a 12+ acre mixed use development located in the heart of downtown Annapolis. Home to luxury condominiums and a 225 room full Service Westin Hotel, 158,000 SF of class A office space and up to 65,000 SF of unique ground level retail.
- Listed rate may not include certain utilities, building services and property expenses
- Fully Built-Out as Standard Office
- Mostly Open Floor Plan Layout
- Fits 7 - 22 People
5th Floor, Ste 530
| Size | 3,076 SF |
| Term | Negotiable |
| Rental Rate | Upon Request |
| Space Use | Office |
| Build-Out | Partial Build-Out |
| Available | Now |
- Partially Built-Out as Standard Office
- Mostly Open Floor Plan Layout
- Fits 8 - 25 People
- Space is in Excellent Condition
Features and Amenities
- 24 Hour Access
- Kitchen
- Central Heating
- High Ceilings
- Natural Light
- Wi-Fi
- Air Conditioning
Property Facts
Presented by
1 Park Pl
Hmm, there seems to have been an error sending your message. Please try again.
Thanks! Your message was sent.










