Your email has been sent.
1 Trowbridge Brg 1,875 - 15,000 SF of Flex Space Available in Bethel, CT 06801



Highlights
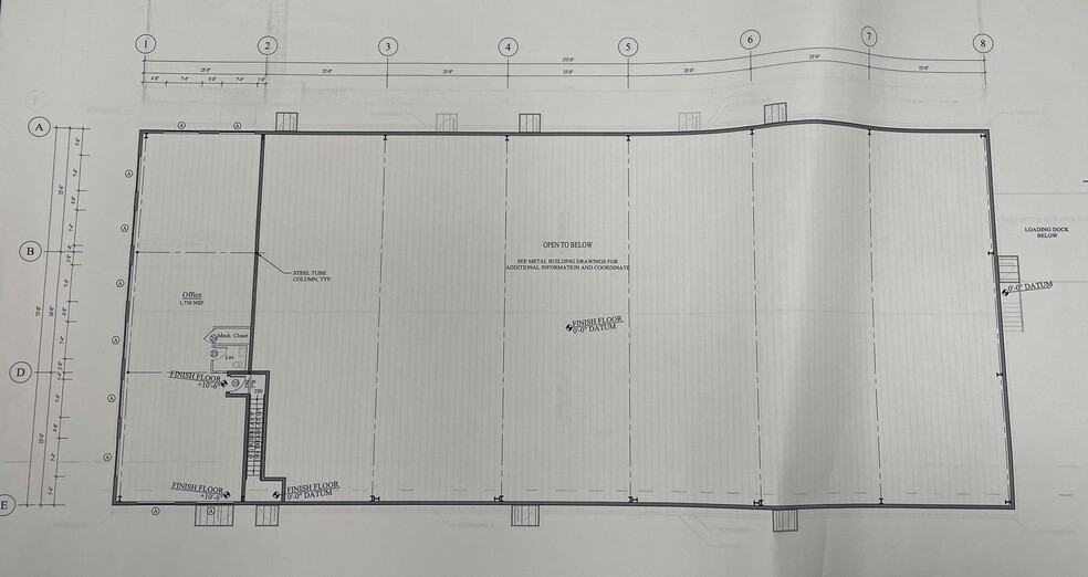
- Building with flexible set up - possible 3750sqft of office space + 11250 industrial/flexible space.....Can set up 13125sqft industrial space +1875sqf
Features
All Available Spaces(2)
Display Rental Rate as
- Space
- Size
- Term
- Rental Rate
- Space Use
- Build-Out
- Available
Building with flexible set up - possible 3750sqft of office space + 11250 industrial/flexible space.....Can set up 13125sqft industrial space +1875sqft office space....or can configure spaces starting at 1875sqft (75ft X 25ft with open spaces-no columns) - Excl parking and easy access to Rt 53, Rt 7 and I84...IP Zoning - Industrial park like offers and allows for a large range of uses - Flexible lease terms available - This new construction site offers 25ft high ceilings, public water and sewer and natural gas - Loading dock.
- Listed rate may not include certain utilities, building services and property expenses
- Space is in Excellent Condition
- Flexible layout options with multiple configuratio
- Includes 3,750 SF of dedicated office space
- Can be combined with additional space(s) for up to 15,000 SF of adjacent space
- Convenient access to Route 53, Route 7, and I-84
Building with flexible set up - possible 3750sqft of office space + 11250 industrial/flexible space.....Can set up 13125sqft industrial space +1875sqft office space....or can configure spaces starting at 1875sqft (75ft X 25ft with open spaces-no columns) - Excl parking and easy access to Rt 53, Rt 7 and I84...IP Zoning - Industrial park like offers and allows for a large range of uses - Flexible lease terms available - This new construction site offers 25ft high ceilings, public water and sewer and natural gas - Loading dock.
- Listed rate may not include certain utilities, building services and property expenses
- Space is in Excellent Condition
- Includes 3,750 SF of dedicated office space
- Can be combined with additional space(s) for up to 15,000 SF of adjacent space
| Space | Size | Term | Rental Rate | Space Use | Build-Out | Available |
| 1st Floor | 1,875-7,000 SF | Negotiable | $23.18 CAD/SF/YR $1.93 CAD/SF/MO $162,276 CAD/YR $13,523 CAD/MO | Flex | Partial Build-Out | 2026-10-01 |
| 2nd Floor | 1,875-8,000 SF | Negotiable | $23.18 CAD/SF/YR $1.93 CAD/SF/MO $185,458 CAD/YR $15,455 CAD/MO | Flex | Partial Build-Out | 2026-10-01 |
1st Floor
| Size |
| 1,875-7,000 SF |
| Term |
| Negotiable |
| Rental Rate |
| $23.18 CAD/SF/YR $1.93 CAD/SF/MO $162,276 CAD/YR $13,523 CAD/MO |
| Space Use |
| Flex |
| Build-Out |
| Partial Build-Out |
| Available |
| 2026-10-01 |
2nd Floor
| Size |
| 1,875-8,000 SF |
| Term |
| Negotiable |
| Rental Rate |
| $23.18 CAD/SF/YR $1.93 CAD/SF/MO $185,458 CAD/YR $15,455 CAD/MO |
| Space Use |
| Flex |
| Build-Out |
| Partial Build-Out |
| Available |
| 2026-10-01 |
1st Floor
| Size | 1,875-7,000 SF |
| Term | Negotiable |
| Rental Rate | $23.18 CAD/SF/YR |
| Space Use | Flex |
| Build-Out | Partial Build-Out |
| Available | 2026-10-01 |
Building with flexible set up - possible 3750sqft of office space + 11250 industrial/flexible space.....Can set up 13125sqft industrial space +1875sqft office space....or can configure spaces starting at 1875sqft (75ft X 25ft with open spaces-no columns) - Excl parking and easy access to Rt 53, Rt 7 and I84...IP Zoning - Industrial park like offers and allows for a large range of uses - Flexible lease terms available - This new construction site offers 25ft high ceilings, public water and sewer and natural gas - Loading dock.
- Listed rate may not include certain utilities, building services and property expenses
- Includes 3,750 SF of dedicated office space
- Space is in Excellent Condition
- Can be combined with additional space(s) for up to 15,000 SF of adjacent space
- Flexible layout options with multiple configuratio
- Convenient access to Route 53, Route 7, and I-84
2nd Floor
| Size | 1,875-8,000 SF |
| Term | Negotiable |
| Rental Rate | $23.18 CAD/SF/YR |
| Space Use | Flex |
| Build-Out | Partial Build-Out |
| Available | 2026-10-01 |
Building with flexible set up - possible 3750sqft of office space + 11250 industrial/flexible space.....Can set up 13125sqft industrial space +1875sqft office space....or can configure spaces starting at 1875sqft (75ft X 25ft with open spaces-no columns) - Excl parking and easy access to Rt 53, Rt 7 and I84...IP Zoning - Industrial park like offers and allows for a large range of uses - Flexible lease terms available - This new construction site offers 25ft high ceilings, public water and sewer and natural gas - Loading dock.
- Listed rate may not include certain utilities, building services and property expenses
- Includes 3,750 SF of dedicated office space
- Space is in Excellent Condition
- Can be combined with additional space(s) for up to 15,000 SF of adjacent space
Industrial Facility Facts
Presented by
Clearview Realty LLC
1 Trowbridge Brg
Hmm, there seems to have been an error sending your message. Please try again.
Thanks! Your message was sent.
