Your email has been sent.
Highlights
- Prime Corner Location Fronting Orange Ave & Church St
- Turnkey Office Space
- Secure Keycard Entry
- Each floor is ±6,100 SF & May Be Leased Together Or Separately
- Signage Available On Orange Ave & Church St
All Available Spaces(2)
Display Rental Rate as
- Space
- Size
- Term
- Rental Rate
- Space Use
- Build-Out
- Available
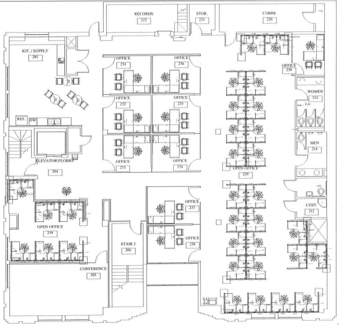
The second floor at 1 W Church St provides office tenants with a prestigious CBD address in an iconic building. Our 6k SF office is ideal for tenants looking to move in with minimal buildout. Double signage also available fronting Orange Ave & Church St.
- Lease rate does not include utilities, property expenses or building services
- Office intensive layout
- Conference Rooms
- Plug & Play
- Central Air and Heating
- Print/Copy Room
- After Hours HVAC Available
- Wheelchair Accessible
- Fully Built-Out as Standard Office
- Partitioned Offices
- Space is in Excellent Condition
- Can be combined with additional space(s) for up to 12,777 SF of adjacent space
- Reception Area
- Private Restrooms
- Accent Lighting
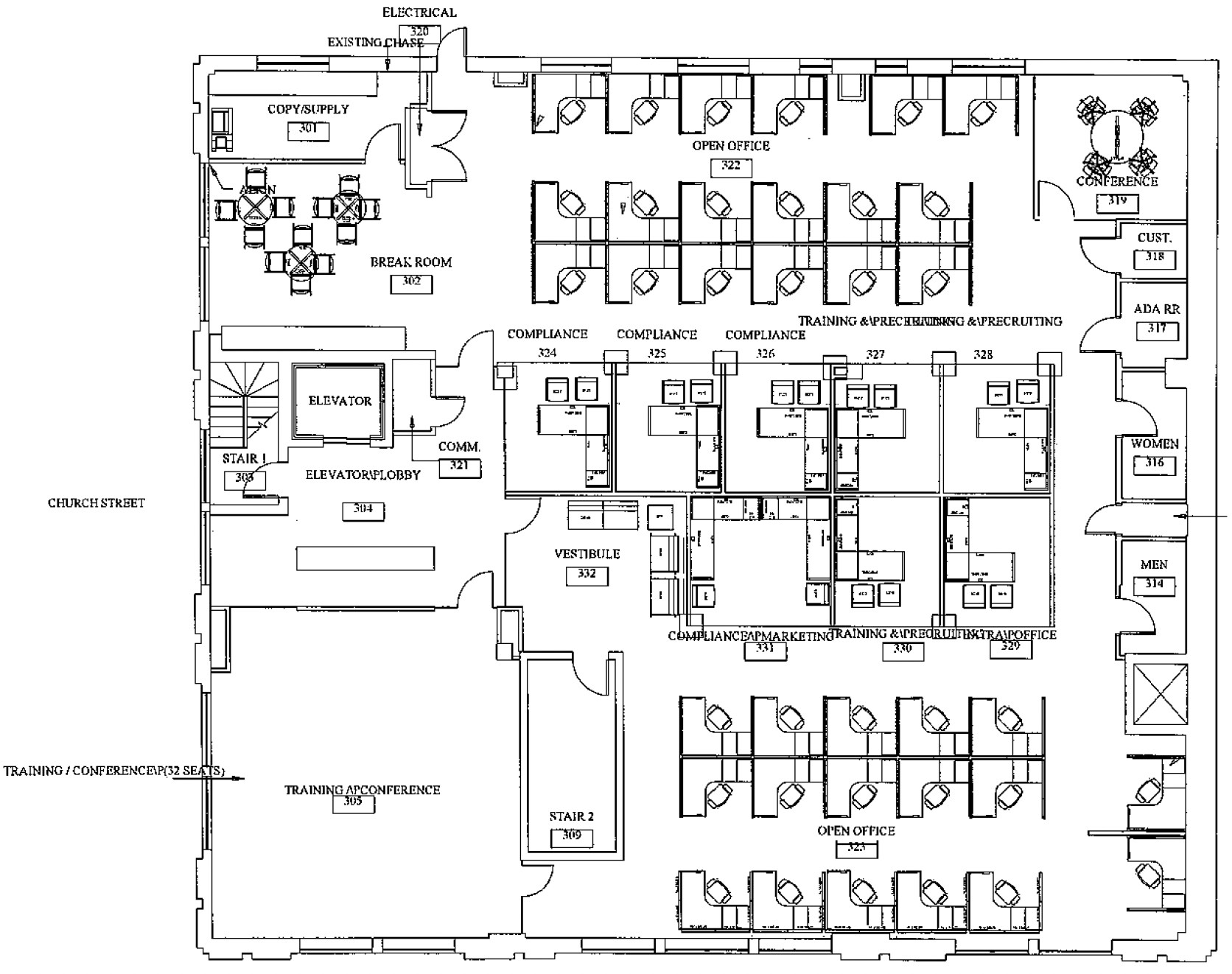
The third floor at 1 W Church St provides office tenants with a prestigious CBD address in an iconic building. Our 6k SF office is ideal for tenants looking to move in with minimal buildout. Double signage also available fronting Orange Ave & Church St!
- Lease rate does not include utilities, property expenses or building services
- Mostly Open Floor Plan Layout
- Conference Rooms
- Plug & Play
- Central Air Conditioning
- Print/Copy Room
- Natural Light
- Accent Lighting
- Fully Built-Out as Standard Office
- Partitioned Offices
- Space is in Excellent Condition
- Can be combined with additional space(s) for up to 12,777 SF of adjacent space
- Reception Area
- Private Restrooms
- After Hours HVAC Available
- Wheelchair Accessible
| Space | Size | Term | Rental Rate | Space Use | Build-Out | Available |
| 2nd Floor | 6,631 SF | Negotiable | Upon Request Upon Request Upon Request Upon Request | Office | Full Build-Out | Now |
| 3rd Floor | 6,146 SF | 1-5 Years | Upon Request Upon Request Upon Request Upon Request | Office | Full Build-Out | Now |
2nd Floor
| Size |
| 6,631 SF |
| Term |
| Negotiable |
| Rental Rate |
| Upon Request Upon Request Upon Request Upon Request |
| Space Use |
| Office |
| Build-Out |
| Full Build-Out |
| Available |
| Now |
3rd Floor
| Size |
| 6,146 SF |
| Term |
| 1-5 Years |
| Rental Rate |
| Upon Request Upon Request Upon Request Upon Request |
| Space Use |
| Office |
| Build-Out |
| Full Build-Out |
| Available |
| Now |
2nd Floor
| Size | 6,631 SF |
| Term | Negotiable |
| Rental Rate | Upon Request |
| Space Use | Office |
| Build-Out | Full Build-Out |
| Available | Now |
The second floor at 1 W Church St provides office tenants with a prestigious CBD address in an iconic building. Our 6k SF office is ideal for tenants looking to move in with minimal buildout. Double signage also available fronting Orange Ave & Church St.
- Lease rate does not include utilities, property expenses or building services
- Fully Built-Out as Standard Office
- Office intensive layout
- Partitioned Offices
- Conference Rooms
- Space is in Excellent Condition
- Plug & Play
- Can be combined with additional space(s) for up to 12,777 SF of adjacent space
- Central Air and Heating
- Reception Area
- Print/Copy Room
- Private Restrooms
- After Hours HVAC Available
- Accent Lighting
- Wheelchair Accessible
3rd Floor
| Size | 6,146 SF |
| Term | 1-5 Years |
| Rental Rate | Upon Request |
| Space Use | Office |
| Build-Out | Full Build-Out |
| Available | Now |
The third floor at 1 W Church St provides office tenants with a prestigious CBD address in an iconic building. Our 6k SF office is ideal for tenants looking to move in with minimal buildout. Double signage also available fronting Orange Ave & Church St!
- Lease rate does not include utilities, property expenses or building services
- Fully Built-Out as Standard Office
- Mostly Open Floor Plan Layout
- Partitioned Offices
- Conference Rooms
- Space is in Excellent Condition
- Plug & Play
- Can be combined with additional space(s) for up to 12,777 SF of adjacent space
- Central Air Conditioning
- Reception Area
- Print/Copy Room
- Private Restrooms
- Natural Light
- After Hours HVAC Available
- Accent Lighting
- Wheelchair Accessible
Property Overview
Position your business at one of downtown Orlando’s most recognizable intersections — Orange Avenue and Church Street — in this historic four-story landmark. The second and third floors, totaling ±12,777 SF (±6,100 SF each), offer the rare chance to secure a prominent, fully built-out office presence in the heart of the city’s central business district. Whether you need a single floor or both, this high-visibility location places you steps from the Plaza Towers, Kia Center, Inter&Co Stadium, Dr. Phillips Performing Arts Center, offering a synergistic environment.
- 24 Hour Access
- Controlled Access
- Security System
- Signage
- Wheelchair Accessible
- Storage Space
- Air Conditioning
- Smoke Detector
Property Facts
Select Tenants
- Floor
- Tenant Name
- Industry
- 4th
- FBC Mortgage, LLC
- Finance and Insurance
- Multiple
- Kymberly Group
- Professional, Scientific, and Technical Services
Presented by
1 W Church St
Hmm, there seems to have been an error sending your message. Please try again.
Thanks! Your message was sent.







