Your email has been sent.
Investment Highlights
- Allen, Tx population of 111,963
- Average household income is $150,270 according to worldpopulationreview.com
- MeDermott VPD average 27,000+
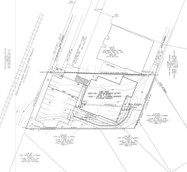
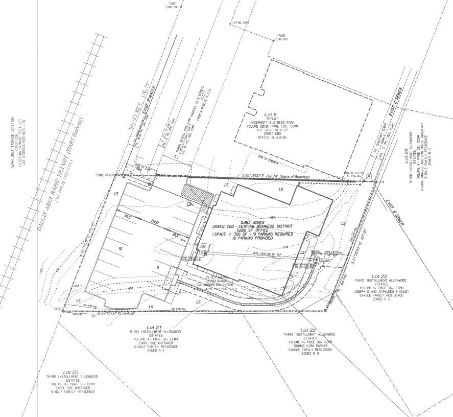
- .4889 acres / 21,296sf - source Collin CAD Prop ID: 2544669
Executive Summary
Alternative building sizes or uses are permitted in accordance with the City of Allen guidelines and McDermott Office Park regulations, offering flexibility for future development. Annual association dues are $3,600 with a building in place or $2,100 without a building.
Property Facts
1 Lot Available
Lot
| Price | $445,383 CAD | Lot Size | 0.49 AC |
| Price Per AC | $908,945.39 CAD |
| Price | $445,383 CAD |
| Price Per AC | $908,945.39 CAD |
| Lot Size | 0.49 AC |
.4889 acres / 21,296sf - source Collin CAD Prop ID: 2544669 Gently sloping cleared lot.
Description
Located within McDermott Business park this lot offers an excellent location in the heart of Allen with a huge demographic and traffic count. Current businesses within the office park primarily comprised of Medical and Professional uses. All buildings are same in appearance consisting of a Stone & Stucco facade. Association dues are very minimal per year with minimal restrictions & guidelines. Site is located approximately .50 miles off HWY 75 and surrounding by retail, restaurants, businesses & huge residential demographic. Lot can accomodate a building size of up to approximately 5,626sf.
Property Taxes
| Parcel Number | R-8723-00A-0050-1 | Improvements Assessment | $1,512,227 CAD |
| Land Assessment | $346,806 CAD | Total Assessment | $1,859,033 CAD |
Property Taxes
Presented by
10 E Mcdermott Dr - Lot B
Hmm, there seems to have been an error sending your message. Please try again.
Thanks! Your message was sent.



