Log In/Sign Up
Your email has been sent.
Investment Highlights
- Heavy traffic
- Strategic location
Executive Summary
Heavy traffic location.
Property Facts
| Sale Type | Investment | Proposed Use | Commercial |
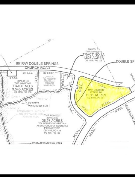
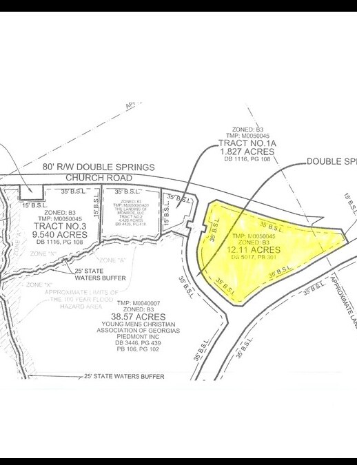
| No. Lots | 1 | Total Lot Size | 12.11 AC |
| Property Type | Land | Opportunity Zone |
Yes
|
| Property Subtype | Commercial | ||
| Zoning | B3 Commercial - Heavy Commercial | ||
| Sale Type | Investment |
| No. Lots | 1 |
| Property Type | Land |
| Property Subtype | Commercial |
| Proposed Use | Commercial |
| Total Lot Size | 12.11 AC |
| Opportunity Zone |
Yes |
| Zoning | B3 Commercial - Heavy Commercial |
1 Lot Available
Lot BOE1A
| Lot Size | 12.11 AC |
| Lot Size | 12.11 AC |
12.11 Acre B3 Commercial property in front of Walton BOE. Fronts GA Hwy 138. Road on 3 sides of property. Tax Opportunity Zone
Description
Property located in high traffic area. Ideal for office / business use.
Somewhat walkable
30/100
Exceptionally drivable
100/100
Somewhat bikeable
30/100
Property Taxes
| Parcel Number | M004000000003000 | Improvements Assessment | $0 CAD |
| Land Assessment | $555,769 CAD | Total Assessment | $555,769 CAD |
Property Taxes
Parcel Number
M004000000003000
Land Assessment
$555,769 CAD
Improvements Assessment
$0 CAD
Total Assessment
$555,769 CAD
1 of 5
Videos
Matterport 3D Exterior
Matterport 3D Tour
Photos
Street View
Street
Map
Presented by
100 Double Springs Church Rd - BOE 10
Already a member? Log In
Hmm, there seems to have been an error sending your message. Please try again.
Thanks! Your message was sent.




