Your email has been sent.
Memorial Medical Office Building 100 E 33rd St 1,938 - 15,567 SF of Medical Space Available in Vancouver, WA 98663



Highlights
- Easy access to freeways and public transportation lines.
- Conveniently located in downtown Vancouver.
- Active management team with dedicated maintenance staff.
- Modern medical office building close to emergency medical services.
- Ample free parking for staff and clients.
All Available Spaces(4)
Display Rental Rate as
- Space
- Size
- Term
- Rental Rate
- Space Use
- Build-Out
- Available
The property is conveniently connected to PeaceHealth Southwest Memorial Health Center, providing easy access to essential healthcare services. It offers excellent connectivity to freeways and public transportation lines, making commuting hassle-free for both staff and clients. Situated in downtown Vancouver, the location is central and accessible to various amenities. Additionally, there is ample free parking available for both staff and clients, ensuring convenience for all visitors. The property benefits from an active management team and a dedicated maintenance staff, ensuring smooth operations and a well-maintained environment.
- Fully Built-Out as Standard Medical Space
- Reception Area
- Easy access to freeways and public transportation
- Ample free parking for staff and clients
- Office intensive layout
- Connected to PeaceHealth Southwest Memorial Health
- Conveniently located in downtown Vancouver
- Active management team with dedicated maintenance
The property is conveniently connected to PeaceHealth Southwest Memorial Health Center, providing easy access to essential healthcare services. It offers excellent connectivity to freeways and public transportation lines, making commuting hassle-free for both staff and clients. Situated in downtown Vancouver, the location is central and accessible to various amenities. Additionally, there is ample free parking available for both staff and clients, ensuring convenience for all visitors. The property benefits from an active management team and a dedicated maintenance staff, ensuring smooth operations and a well-maintained environment.
- Lease rate does not include utilities, property expenses or building services
- Open Floor Plan Layout
- Connected to PeaceHealth Southwest Memorial Health
- Conveniently located in downtown Vancouver
- Active management team with dedicated maintenance
- Fully Built-Out as Standard Medical Space
- Reception Area
- Easy access to freeways and public transportation
- Ample free parking for staff and clients
- Partially Built-Out as Standard Medical Space
- Mostly Open Floor Plan Layout
The property is conveniently connected to PeaceHealth Southwest Memorial Health Center, providing easy access to essential healthcare services. It offers excellent connectivity to freeways and public transportation lines, making commuting hassle-free for both staff and clients. Situated in downtown Vancouver, the location is central and accessible to various amenities. Additionally, there is ample free parking available for both staff and clients, ensuring convenience for all visitors. The property benefits from an active management team and a dedicated maintenance staff, ensuring smooth operations and a well-maintained environment.
- Fully Built-Out as Standard Medical Space
- Reception Area
- Easy access to freeways and public transportation
- Ample free parking for staff and clients
- Mostly Open Floor Plan Layout
- Connected to PeaceHealth Southwest Memorial Health
- Conveniently located in downtown Vancouver
- Active management team with dedicated maintenance
| Space | Size | Term | Rental Rate | Space Use | Build-Out | Available |
| 1st Floor, Ste 101B | 1,938 SF | Negotiable | Upon Request Upon Request Upon Request Upon Request | Medical | Full Build-Out | Now |
| 2nd Floor, Ste 200 | 2,357 SF | Negotiable | Upon Request Upon Request Upon Request Upon Request | Medical | Full Build-Out | Now |
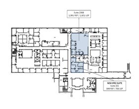
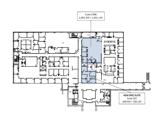
| 2nd Floor, Ste 202 | 2,819-5,636 SF | Negotiable | Upon Request Upon Request Upon Request Upon Request | Medical | Partial Build-Out | 2026-09-22 |
| 2nd Floor, Ste 208B | 2,817-5,636 SF | Negotiable | Upon Request Upon Request Upon Request Upon Request | Medical | Full Build-Out | Now |
1st Floor, Ste 101B
| Size |
| 1,938 SF |
| Term |
| Negotiable |
| Rental Rate |
| Upon Request Upon Request Upon Request Upon Request |
| Space Use |
| Medical |
| Build-Out |
| Full Build-Out |
| Available |
| Now |
2nd Floor, Ste 200
| Size |
| 2,357 SF |
| Term |
| Negotiable |
| Rental Rate |
| Upon Request Upon Request Upon Request Upon Request |
| Space Use |
| Medical |
| Build-Out |
| Full Build-Out |
| Available |
| Now |
2nd Floor, Ste 202
| Size |
| 2,819-5,636 SF |
| Term |
| Negotiable |
| Rental Rate |
| Upon Request Upon Request Upon Request Upon Request |
| Space Use |
| Medical |
| Build-Out |
| Partial Build-Out |
| Available |
| 2026-09-22 |
2nd Floor, Ste 208B
| Size |
| 2,817-5,636 SF |
| Term |
| Negotiable |
| Rental Rate |
| Upon Request Upon Request Upon Request Upon Request |
| Space Use |
| Medical |
| Build-Out |
| Full Build-Out |
| Available |
| Now |
1st Floor, Ste 101B
| Size | 1,938 SF |
| Term | Negotiable |
| Rental Rate | Upon Request |
| Space Use | Medical |
| Build-Out | Full Build-Out |
| Available | Now |
The property is conveniently connected to PeaceHealth Southwest Memorial Health Center, providing easy access to essential healthcare services. It offers excellent connectivity to freeways and public transportation lines, making commuting hassle-free for both staff and clients. Situated in downtown Vancouver, the location is central and accessible to various amenities. Additionally, there is ample free parking available for both staff and clients, ensuring convenience for all visitors. The property benefits from an active management team and a dedicated maintenance staff, ensuring smooth operations and a well-maintained environment.
- Fully Built-Out as Standard Medical Space
- Office intensive layout
- Reception Area
- Connected to PeaceHealth Southwest Memorial Health
- Easy access to freeways and public transportation
- Conveniently located in downtown Vancouver
- Ample free parking for staff and clients
- Active management team with dedicated maintenance
2nd Floor, Ste 200
| Size | 2,357 SF |
| Term | Negotiable |
| Rental Rate | Upon Request |
| Space Use | Medical |
| Build-Out | Full Build-Out |
| Available | Now |
The property is conveniently connected to PeaceHealth Southwest Memorial Health Center, providing easy access to essential healthcare services. It offers excellent connectivity to freeways and public transportation lines, making commuting hassle-free for both staff and clients. Situated in downtown Vancouver, the location is central and accessible to various amenities. Additionally, there is ample free parking available for both staff and clients, ensuring convenience for all visitors. The property benefits from an active management team and a dedicated maintenance staff, ensuring smooth operations and a well-maintained environment.
- Lease rate does not include utilities, property expenses or building services
- Fully Built-Out as Standard Medical Space
- Open Floor Plan Layout
- Reception Area
- Connected to PeaceHealth Southwest Memorial Health
- Easy access to freeways and public transportation
- Conveniently located in downtown Vancouver
- Ample free parking for staff and clients
- Active management team with dedicated maintenance
2nd Floor, Ste 202
| Size | 2,819-5,636 SF |
| Term | Negotiable |
| Rental Rate | Upon Request |
| Space Use | Medical |
| Build-Out | Partial Build-Out |
| Available | 2026-09-22 |
- Partially Built-Out as Standard Medical Space
- Mostly Open Floor Plan Layout
2nd Floor, Ste 208B
| Size | 2,817-5,636 SF |
| Term | Negotiable |
| Rental Rate | Upon Request |
| Space Use | Medical |
| Build-Out | Full Build-Out |
| Available | Now |
The property is conveniently connected to PeaceHealth Southwest Memorial Health Center, providing easy access to essential healthcare services. It offers excellent connectivity to freeways and public transportation lines, making commuting hassle-free for both staff and clients. Situated in downtown Vancouver, the location is central and accessible to various amenities. Additionally, there is ample free parking available for both staff and clients, ensuring convenience for all visitors. The property benefits from an active management team and a dedicated maintenance staff, ensuring smooth operations and a well-maintained environment.
- Fully Built-Out as Standard Medical Space
- Mostly Open Floor Plan Layout
- Reception Area
- Connected to PeaceHealth Southwest Memorial Health
- Easy access to freeways and public transportation
- Conveniently located in downtown Vancouver
- Ample free parking for staff and clients
- Active management team with dedicated maintenance
Property Overview
The Memorial Medical Office Building is a two-story, 50,575 square foot medical office building located on the PeaceHealth Memorial Health Center. Lease terms are negotiable and vary depending on length of lease term and tenant improvement allowance.
- Signage
Property Facts
Presented by
Memorial Medical Office Building | 100 E 33rd St
Hmm, there seems to have been an error sending your message. Please try again.
Thanks! Your message was sent.





