Log In/Sign Up
Your email has been sent.
Friendship Distribution Center Buford, GA 30519 101,660 - 373,820 SF of Industrial Space Available



Park Highlights
- New space, never previously occupied
- Front Loading docks available
- Close proximity to Lanier Highway
- Contains 2 drive ins and 28 loading docks
- Newly constructed industrial warehouse, available for lease.
- Close proximity to Lanier Parkway and E Jones Drive
Park Facts
| Total Space Available | 373,820 SF | Park Type | Industrial Park |
| Total Space Available | 373,820 SF |
| Park Type | Industrial Park |
All Available Spaces(2)
Display Rental Rate as
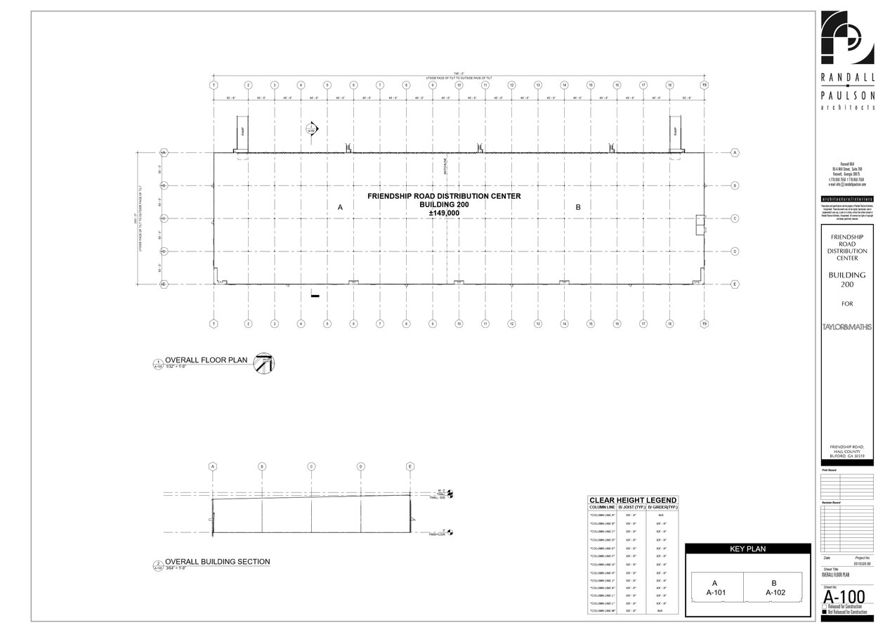
Friendship Distribution Center
4651 Distribution Pky
272,160 SF
|
Upon Request
Upon Request
Upon Request
Upon Request
Upon Request
Upon Request
Building Type/Class
Industrial/A
Building Subtype
Manufacturing
Building Size
272,160 SF
Lot Size
36.61 AC
Year Built
2021
Construction
Reinforced Concrete
Clear Height
32’
Column Spacing
54’ x 55’
Drive In Bays
2
Dock Doors
50
Sprinkler System
ESFR
Zoning
M-1 - Light Manufacturing
- Space
- Size
- Term
- Rental Rate
- Space Use
- Build-Out
- Available
Front load, 65 trailer spaces, 153 auto spaces, ESFR, 7" slab, 16 pits and 16 edge of docks
- Lease rate does not include utilities, property expenses or building services
- 2 Drive Ins
- 50 Loading Docks
- Includes 2,118 SF of dedicated office space
- Space is in Excellent Condition
| Space | Size | Term | Rental Rate | Space Use | Build-Out | Available |
| 1st Floor - 100 | 272,160 SF | 5 Years | Upon Request Upon Request Upon Request Upon Request | Industrial | Full Build-Out | 2026-08-01 |
Friendship Distribution Center
4651 Distribution Pky
272,160 SF
|
Upon Request
Upon Request
Upon Request
Upon Request
Upon Request
Upon Request
Building Type/Class
Industrial/A
Building Subtype
Manufacturing
Building Size
272,160 SF
Lot Size
36.61 AC
Year Built
2021
Construction
Reinforced Concrete
Clear Height
32’
Column Spacing
54’ x 55’
Drive In Bays
2
Dock Doors
50
Sprinkler System
ESFR
Zoning
M-1 - Light Manufacturing
4651 Distribution Pky - 1st Floor - 100
Size
272,160 SF
Term
5 Years
Rental Rate
Upon Request
Upon Request
Upon Request
Upon Request
Space Use
Industrial
Build-Out
Full Build-Out
Available
2026-08-01
Friendship Distribution Center
4646 Distribution Pky - Building 100
101,660 SF
|
Upon Request
Upon Request
Upon Request
Upon Request
Upon Request
Upon Request
Building Type/Class
Industrial/A
Building Subtype
Distribution
Building Size
101,660 SF
Lot Size
14.00 AC
Year Built
2021
Construction
Reinforced Concrete
Clear Height
30’
Column Spacing
40’ x 50’
Drive In Bays
2
Dock Doors
31
Sprinkler System
ESFR
Zoning
M-1 - Light Industrial
- Space
- Size
- Term
- Rental Rate
- Space Use
- Build-Out
- Available
Front load with trailer parking, 31 docks and 2,118sf office space
- Rate includes utilities, building services and property expenses
- 2 Drive Ins
- 31 Loading Docks
- Includes 2,118 SF of dedicated office space
- Space is in Excellent Condition
| Space | Size | Term | Rental Rate | Space Use | Build-Out | Available |
| 1st Floor - 100 | 101,660 SF | Negotiable | Upon Request Upon Request Upon Request Upon Request | Industrial | Partial Build-Out | 2026-08-01 |
Friendship Distribution Center
4646 Distribution Pky - Building 100
101,660 SF
|
Upon Request
Upon Request
Upon Request
Upon Request
Upon Request
Upon Request
Building Type/Class
Industrial/A
Building Subtype
Distribution
Building Size
101,660 SF
Lot Size
14.00 AC
Year Built
2021
Construction
Reinforced Concrete
Clear Height
30’
Column Spacing
40’ x 50’
Drive In Bays
2
Dock Doors
31
Sprinkler System
ESFR
Zoning
M-1 - Light Industrial
4646 Distribution Pky - 1st Floor - 100
Size
101,660 SF
Term
Negotiable
Rental Rate
Upon Request
Upon Request
Upon Request
Upon Request
Space Use
Industrial
Build-Out
Partial Build-Out
Available
2026-08-01
1 of 1
Videos
Matterport 3D Exterior
Matterport 3D Tour
Photos
Street View
Street
Map
4651 Distribution Pky - 1st Floor - 100
| Size | 272,160 SF |
| Term | 5 Years |
| Rental Rate | Upon Request |
| Space Use | Industrial |
| Build-Out | Full Build-Out |
| Available | 2026-08-01 |
Front load, 65 trailer spaces, 153 auto spaces, ESFR, 7" slab, 16 pits and 16 edge of docks
- Lease rate does not include utilities, property expenses or building services
- Includes 2,118 SF of dedicated office space
- 2 Drive Ins
- Space is in Excellent Condition
- 50 Loading Docks
4646 Distribution Pky - 1st Floor - 100
| Size | 101,660 SF |
| Term | Negotiable |
| Rental Rate | Upon Request |
| Space Use | Industrial |
| Build-Out | Partial Build-Out |
| Available | 2026-08-01 |
Front load with trailer parking, 31 docks and 2,118sf office space
- Rate includes utilities, building services and property expenses
- Includes 2,118 SF of dedicated office space
- 2 Drive Ins
- Space is in Excellent Condition
- 31 Loading Docks
Site Plan
Park Overview
Newly constructed industrial building, delivered in 2020. Contains 2 14X16 FT drive ins, 50 ext docks and is zoned M1. Lease rate does not include utilities, property expenses or building services
Somewhat walkable
30/100
Exceptionally drivable
100/100
Not bikeable
10/100
1 of 11
Videos
Matterport 3D Exterior
Matterport 3D Tour
Photos
Street View
Street
Map
Presented by
Friendship Distribution Center | Buford, GA 30519
Already a member? Log In
Hmm, there seems to have been an error sending your message. Please try again.
Thanks! Your message was sent.



