Your email has been sent.
100 N Green Valley Pky 4,184 - 24,675 SF of Office/Medical Space Available in Henderson, NV 89074



Highlights
- Strategically located in Henderson’s Green Valley submarket with high visibility from Interstate 215 and excellent accessibility.
All Available Spaces(3)
Display Rental Rate as
- Space
- Size
- Term
- Rental Rate
- Space Use
- Build-Out
- Available
Suite 110 (Available January 2027) • Space Available: 5,753 SF • Lease Rate: Call for Pricing • Lease Type: Call for Pricing • Suite Description: Former Urgent Care suite available for lease. 12 Exam Rooms. 4 Private Offices. Nurses' Station. 2 Restrooms. Lab. Breakroom. 2 Storage Rooms. Waiting Room. Reception/Admin. Floor Plan: https://medwestrealty.com/wp-content/uploads/2022/01/Suite-110.png Available January 2027
- Fully Built-Out as Standard Medical Space
- 4 Private Offices
Suite Description: 9 Exam Rooms 3 Doctors Offices 2 In-Suite Restrooms Nurses' Station Breakroom 3 Storage Rooms Waiting Room Reception/Admin
- Fully Built-Out as Standard Medical Space
- 3 Private Offices
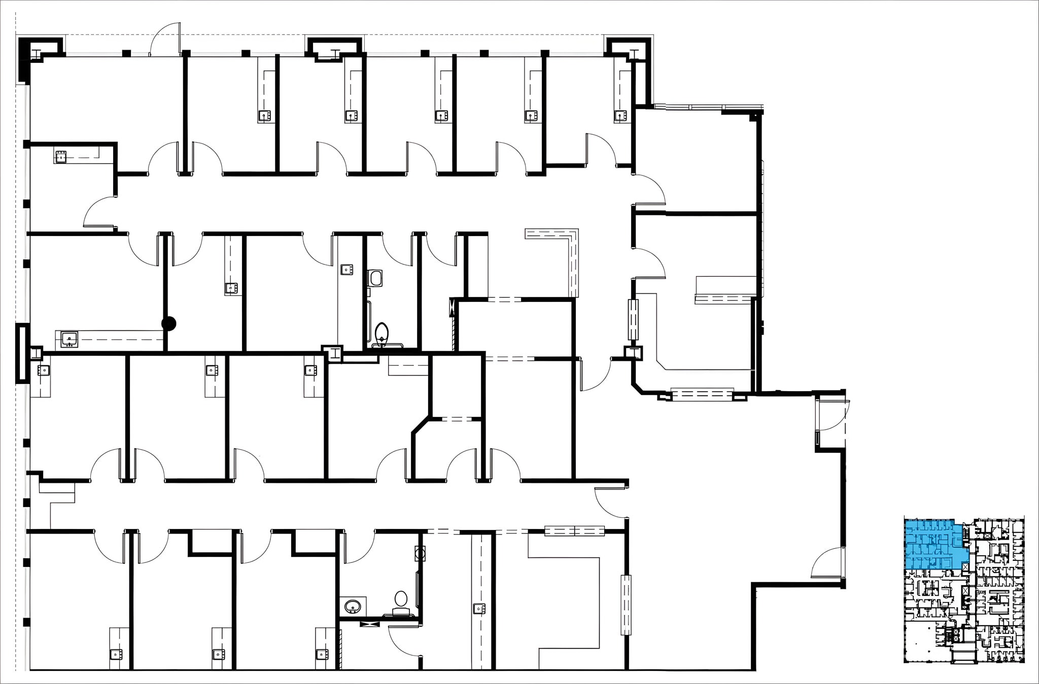
Suite 239 (Available in 60 Days) • Space Available: 5,280 SF (contiguous up to 9,461 RSF) • Lease Rate: Call for Pricing • Lease Type: Call for Pricing • Suite Description: Waiting Room. Reception/ Admin. 15 Exam Rooms. 2 In-Suite Restrooms. 3 Offices. Lab. Nurses' Station. Breakroom. Storage. Floor Plan: https://medwestrealty.com/wp-content/uploads/2022/01/Suite-239-scaled.jpg Available in 60 Days
- Fully Built-Out as Standard Medical Space
- Mostly Open Floor Plan Layout
| Space | Size | Term | Rental Rate | Space Use | Build-Out | Available |
| 1st Floor, Ste 110 | 5,753 SF | Negotiable | Upon Request Upon Request Upon Request Upon Request | Office/Medical | Full Build-Out | 2027-01-01 |
| 2nd Floor, Ste 235 | 4,184-9,461 SF | Negotiable | Upon Request Upon Request Upon Request Upon Request | Office/Medical | Full Build-Out | 2026-05-01 |
| 2nd Floor, Ste 239 | 5,280-9,461 SF | Negotiable | Upon Request Upon Request Upon Request Upon Request | Office/Medical | Full Build-Out | Now |
1st Floor, Ste 110
| Size |
| 5,753 SF |
| Term |
| Negotiable |
| Rental Rate |
| Upon Request Upon Request Upon Request Upon Request |
| Space Use |
| Office/Medical |
| Build-Out |
| Full Build-Out |
| Available |
| 2027-01-01 |
2nd Floor, Ste 235
| Size |
| 4,184-9,461 SF |
| Term |
| Negotiable |
| Rental Rate |
| Upon Request Upon Request Upon Request Upon Request |
| Space Use |
| Office/Medical |
| Build-Out |
| Full Build-Out |
| Available |
| 2026-05-01 |
2nd Floor, Ste 239
| Size |
| 5,280-9,461 SF |
| Term |
| Negotiable |
| Rental Rate |
| Upon Request Upon Request Upon Request Upon Request |
| Space Use |
| Office/Medical |
| Build-Out |
| Full Build-Out |
| Available |
| Now |
1st Floor, Ste 110
| Size | 5,753 SF |
| Term | Negotiable |
| Rental Rate | Upon Request |
| Space Use | Office/Medical |
| Build-Out | Full Build-Out |
| Available | 2027-01-01 |
Suite 110 (Available January 2027) • Space Available: 5,753 SF • Lease Rate: Call for Pricing • Lease Type: Call for Pricing • Suite Description: Former Urgent Care suite available for lease. 12 Exam Rooms. 4 Private Offices. Nurses' Station. 2 Restrooms. Lab. Breakroom. 2 Storage Rooms. Waiting Room. Reception/Admin. Floor Plan: https://medwestrealty.com/wp-content/uploads/2022/01/Suite-110.png Available January 2027
- Fully Built-Out as Standard Medical Space
- 4 Private Offices
2nd Floor, Ste 235
| Size | 4,184-9,461 SF |
| Term | Negotiable |
| Rental Rate | Upon Request |
| Space Use | Office/Medical |
| Build-Out | Full Build-Out |
| Available | 2026-05-01 |
Suite Description: 9 Exam Rooms 3 Doctors Offices 2 In-Suite Restrooms Nurses' Station Breakroom 3 Storage Rooms Waiting Room Reception/Admin
- Fully Built-Out as Standard Medical Space
- 3 Private Offices
2nd Floor, Ste 239
| Size | 5,280-9,461 SF |
| Term | Negotiable |
| Rental Rate | Upon Request |
| Space Use | Office/Medical |
| Build-Out | Full Build-Out |
| Available | Now |
Suite 239 (Available in 60 Days) • Space Available: 5,280 SF (contiguous up to 9,461 RSF) • Lease Rate: Call for Pricing • Lease Type: Call for Pricing • Suite Description: Waiting Room. Reception/ Admin. 15 Exam Rooms. 2 In-Suite Restrooms. 3 Offices. Lab. Nurses' Station. Breakroom. Storage. Floor Plan: https://medwestrealty.com/wp-content/uploads/2022/01/Suite-239-scaled.jpg Available in 60 Days
- Fully Built-Out as Standard Medical Space
- Mostly Open Floor Plan Layout
Property Overview
Parkway Medical Plaza 100 North Green Valley Parkway, Henderson, NV 89074 Parkway Medical Plaza, in the Green Valley submarket of Henderson, Nevada, is a best-in-class medical outpatient building and home to a diverse group of medical providers. The building is anchored by a large ambulatory surgery center which is a joint venture between Dignity Health and United Surgical Partners. The property has on-site urgent care and imaging services for the community as well as Ob-Gyn, physical therapy, and family medicine among other providers. Parked at 5 cars per 1,000 square feet and adjacent to the 215 Freeway at Green Valley Parkway, the building provides an easy patient experience to see their provider. Adjacent retail (Smith’s, Starbucks, banks, etc.) add to the draw from the community and fantastic convenience for physicians and staff. Parkway Medical Plaza is a one-of-a-kind offering. ------------------------ Property Features: PROMINENT LOCATION & ACCESSIBILITY • 3-Story, Class A Medical Building • Building Area 88,958 SF • Abundant Surface and Covered Parking at 5 stalls per 1,000 SF IDEAL MARKET AND SITE LOCATION • Visible from Interstate 215 • 3 Miles from Dignity Health, St. Rose Dominican Siena Hospital • Prime Location, Excellent Demographics FLEXIBLE SUITE OPPORTUNITIES • Signage Opportunities • Built-out Suites • Views of Las Vegas Strip • Corner Location
- 24 Hour Access
- Bus Line
- Signage
Property Facts
Select Tenants
- Floor
- Tenant Name
- Industry
- 2nd
- Carelon Health
- Finance and Insurance
- 2nd
- Henderson myGeneration Senior Clinic
- Health Care and Social Assistance
- 3rd
- Jackson Physical Therapy and Sports Medicine
- Health Care and Social Assistance
- 2nd
- Naked MD
- Services
- 2nd
- P3 Health Partners
- Health Care and Social Assistance
- 3rd
- Parkway Recovery Care Center
- Health Care and Social Assistance
- 1st
- Parkway Surgery Center
- Health Care and Social Assistance
- 1st
- Pubelo Imaging
- Health Care and Social Assistance
- 3rd
- Regenexx
- Health Care and Social Assistance
- 2nd
- Vera Whole Health
- Health Care and Social Assistance
Presented by
100 N Green Valley Pky
Hmm, there seems to have been an error sending your message. Please try again.
Thanks! Your message was sent.






