Your email has been sent.
Suffolk Downs 100 Salt St 31,000 - 265,560 SF of 4-Star Space Available in Revere, MA 02151



Highlights
- State-of-the-art life science complex offering market-leading laboratory, biomanufacturing, and office/research and development space.
- Offering subgrade and surface parking, nine loading bays, approximately 104,000 SF of open floor and ground floor retail/restaurant space.
- Comprising two WiredScore Platinum and LEED Gold Certifiable contiguous buildings within the vibrant Suffolk Downs mixed-use development.
- Anticipated Spring 2024 delivery with convenient access via Route 1A, two stops on the MBTA Blue Line, and a 10-minute drive to Downtown Boston.
All Available Spaces(5)
Display Rental Rate as
- Space
- Size
- Term
- Rental Rate
- Space Use
- Build-Out
- Available
- Can be combined with additional space(s) for up to 265,560 SF of adjacent space
- Can be combined with additional space(s) for up to 265,560 SF of adjacent space
- Fits 149 - 475 People
- Can be combined with additional space(s) for up to 265,560 SF of adjacent space
- Fits 149 - 475 People
- Can be combined with additional space(s) for up to 265,560 SF of adjacent space
- Fits 147 - 470 People
- Can be combined with additional space(s) for up to 265,560 SF of adjacent space
| Space | Size | Term | Rental Rate | Space Use | Build-Out | Available |
| 1st Floor | 31,000 SF | Negotiable | Upon Request Upon Request Upon Request Upon Request | Flex | - | 30 Days |
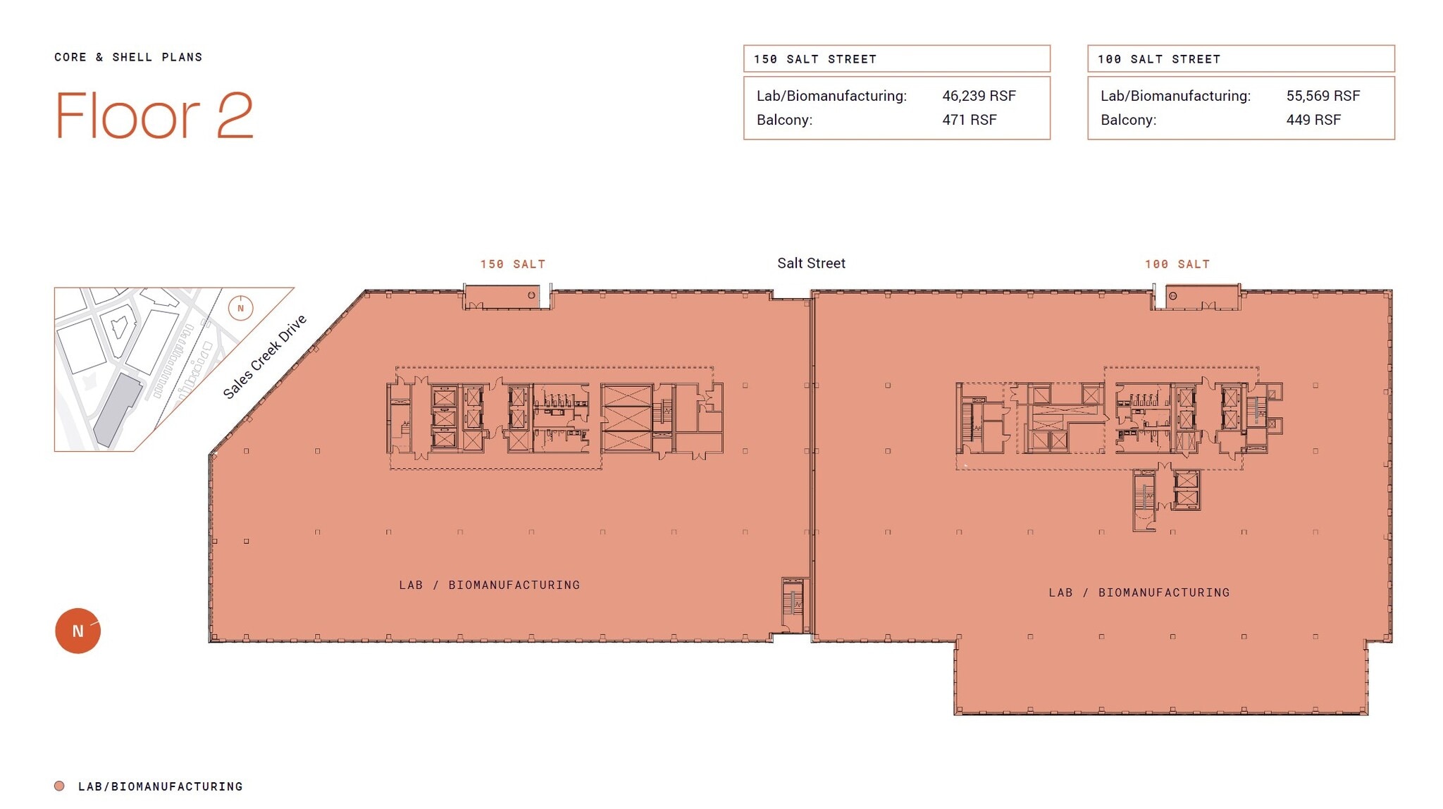
| 2nd Floor | 57,140 SF | Negotiable | Upon Request Upon Request Upon Request Upon Request | Flex | - | 30 Days |
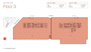
| 3rd Floor | 59,360 SF | Negotiable | Upon Request Upon Request Upon Request Upon Request | Office | Spec Suite | 30 Days |
| 4th Floor | 59,360 SF | Negotiable | Upon Request Upon Request Upon Request Upon Request | Office | Spec Suite | 30 Days |
| 5th Floor | 58,700 SF | Negotiable | Upon Request Upon Request Upon Request Upon Request | Office | Spec Suite | 30 Days |
1st Floor
| Size |
| 31,000 SF |
| Term |
| Negotiable |
| Rental Rate |
| Upon Request Upon Request Upon Request Upon Request |
| Space Use |
| Flex |
| Build-Out |
| - |
| Available |
| 30 Days |
2nd Floor
| Size |
| 57,140 SF |
| Term |
| Negotiable |
| Rental Rate |
| Upon Request Upon Request Upon Request Upon Request |
| Space Use |
| Flex |
| Build-Out |
| - |
| Available |
| 30 Days |
3rd Floor
| Size |
| 59,360 SF |
| Term |
| Negotiable |
| Rental Rate |
| Upon Request Upon Request Upon Request Upon Request |
| Space Use |
| Office |
| Build-Out |
| Spec Suite |
| Available |
| 30 Days |
4th Floor
| Size |
| 59,360 SF |
| Term |
| Negotiable |
| Rental Rate |
| Upon Request Upon Request Upon Request Upon Request |
| Space Use |
| Office |
| Build-Out |
| Spec Suite |
| Available |
| 30 Days |
5th Floor
| Size |
| 58,700 SF |
| Term |
| Negotiable |
| Rental Rate |
| Upon Request Upon Request Upon Request Upon Request |
| Space Use |
| Office |
| Build-Out |
| Spec Suite |
| Available |
| 30 Days |
1st Floor
| Size | 31,000 SF |
| Term | Negotiable |
| Rental Rate | Upon Request |
| Space Use | Flex |
| Build-Out | - |
| Available | 30 Days |
- Can be combined with additional space(s) for up to 265,560 SF of adjacent space
2nd Floor
| Size | 57,140 SF |
| Term | Negotiable |
| Rental Rate | Upon Request |
| Space Use | Flex |
| Build-Out | - |
| Available | 30 Days |
- Can be combined with additional space(s) for up to 265,560 SF of adjacent space
3rd Floor
| Size | 59,360 SF |
| Term | Negotiable |
| Rental Rate | Upon Request |
| Space Use | Office |
| Build-Out | Spec Suite |
| Available | 30 Days |
- Fits 149 - 475 People
- Can be combined with additional space(s) for up to 265,560 SF of adjacent space
4th Floor
| Size | 59,360 SF |
| Term | Negotiable |
| Rental Rate | Upon Request |
| Space Use | Office |
| Build-Out | Spec Suite |
| Available | 30 Days |
- Fits 149 - 475 People
- Can be combined with additional space(s) for up to 265,560 SF of adjacent space
5th Floor
| Size | 58,700 SF |
| Term | Negotiable |
| Rental Rate | Upon Request |
| Space Use | Office |
| Build-Out | Spec Suite |
| Available | 30 Days |
- Fits 147 - 470 People
- Can be combined with additional space(s) for up to 265,560 SF of adjacent space
Property Overview
100 Salt Street is part of a two-building life science complex in the premier Suffolk Downs mixed-use development in Revere, Massachusetts. The state-of-the-art buildings are currently under construction and will offer a combined 519,478 square feet of biomanufacturing, laboratory, office/research and development, and ground floor retail/restaurant space when delivered in Spring 2024. The buildings are comprised of two biomanufacturing and laboratory floors, three floors dedicated to office/research and development use, and two mechanical levels for maximum tenant equipment flexibility. Between the two buildings, experience ample surface and subgrade parking space, nine loading bays sized for WB-50 trucks, up to 47-foot by 33-foot column spans, and large open floor plates based around an off-center core. The complex is WiredScore Platinum and LEED Gold Certifiable, meeting exceptional infrastructure and sustainability standards. 100 Salt Street is an integral component of Beachmont Square, the first phase of the brand-new 161-acre Suffolk Downs mixed-use development that features a collection of life science and incubator spaces, residences, hotels, boutiques, and neighborhood retail options, and outdoor spaces. The development site sits on the border of East Boston and is accessible via the Revere Beach Parkway, Route 1A, and two stops on the MBTA Blue Line. Conveniently reach the Boston Logan International Airport within a five-minute drive, Seaport and Downtown Boston within a ten-minute drive, and east Cambridge within a 15-minute drive. 100 Salt Street offers a unique capacity for research, development, and biomanufacturing inside one market-leading complex.
- 24 Hour Access
- Controlled Access
- Courtyard
- Fitness Center
- Kitchen
Property Facts
Presented by
Suffolk Downs | 100 Salt St
Hmm, there seems to have been an error sending your message. Please try again.
Thanks! Your message was sent.











