Log In/Sign Up
Your email has been sent.
1000-1010 University Ave W
Saint Paul, MN 55104
Office Property For Lease
·
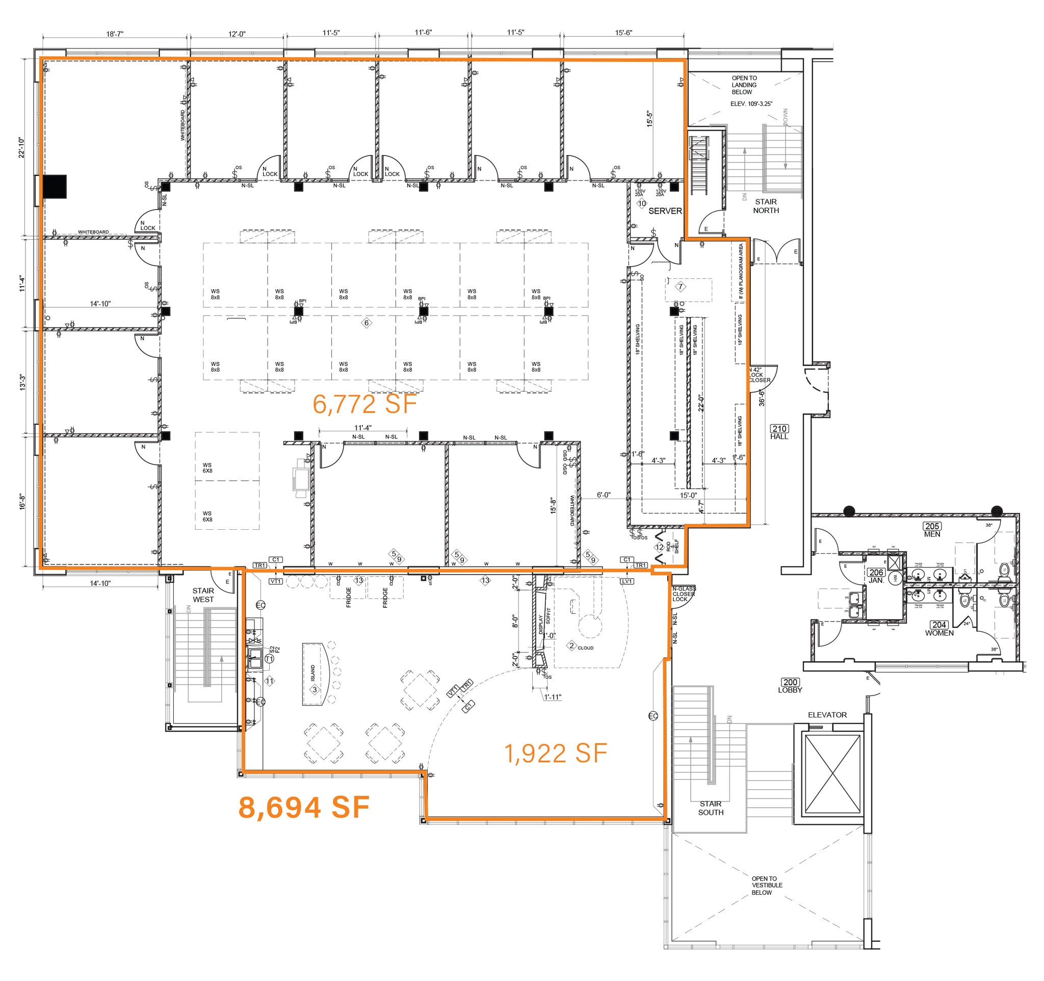
12,769 SF


Highlights
- Light rail service available 2 blocks west at Lexington Avenue.
- Rooftop deck.
- Passenger elevator.
- Off-street and underground parking.
- Easy access to I-94.
- Historical architecture featuring exposed brick, timber posts and beams.
Property Overview
1000 University is an office complex in the Midway Neighborhood of Saint Paul. The property was originally a manufacturing plant with a battery shop in the back lot. Much of the building’s original brickwork can be seen throughout the interior as a tribute to its 100-year-old history. Powered by renewable energy/solar panels.
- Bus Line
- Signage
Property Facts
Building Type
Office
Year Built/Renovated
1913/2014
Building Height
2 Stories
Building Size
54,526 SF
Building Class
B
Typical Floor Size
16,000 SF
Unfinished Ceiling Height
12’
Parking
99 Surface Parking Spaces
Covered Parking
1 of 12
Videos
Matterport 3D Exterior
Matterport 3D Tour
Photos
Street View
Street
Map
