Log In/Sign Up
Your email has been sent.
Investment Highlights
- Walking distance to Courthouses
- Efficient Floorplan
- Open Work Areas
- 7 Private Spacious offices
- Private office bathroom
- Perfect Location for Attorney's office
Executive Summary
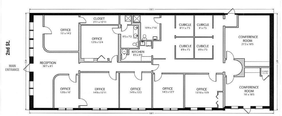
This office space for sale at 1000 2nd St, Albuquerque, New Mexico, offers an excellent opportunity for professionals looking to establish themselves in a prime location. Strategically situated just a short distance from the courthouse, this property provides convenient access for legal practitioners and businesses needing to collaborate with judicial services.
The office features a modern layout with seven private offices, two conference rooms, two bathrooms, a kitchenette, and four cubicles. The ample natural light and professional atmosphere make it ideal for various uses. With the curb cut on the south side of the building the possibility to add a roll up door and convert the conference rooms to warehouse/shop space creates a fantastic opportunity for someone needing some office/warehouse space downtown. Its proximity to the courthouse enhances its appeal, offering the potential for increased foot traffic and networking opportunities with legal professionals and clients alike.
In addition to its prime location near key government buildings, the surrounding area boasts a variety of amenities, including restaurants, cafes, and public transportation options, making it a convenient spot for both employees and clients. This combination of accessibility and vibrant surroundings makes 1000 2nd St a compelling choice for anyone looking to invest in commercial real estate in Albuquerque
The office features a modern layout with seven private offices, two conference rooms, two bathrooms, a kitchenette, and four cubicles. The ample natural light and professional atmosphere make it ideal for various uses. With the curb cut on the south side of the building the possibility to add a roll up door and convert the conference rooms to warehouse/shop space creates a fantastic opportunity for someone needing some office/warehouse space downtown. Its proximity to the courthouse enhances its appeal, offering the potential for increased foot traffic and networking opportunities with legal professionals and clients alike.
In addition to its prime location near key government buildings, the surrounding area boasts a variety of amenities, including restaurants, cafes, and public transportation options, making it a convenient spot for both employees and clients. This combination of accessibility and vibrant surroundings makes 1000 2nd St a compelling choice for anyone looking to invest in commercial real estate in Albuquerque
Taxes & Operating Expenses (Actual - 2024) Click Here to Access |
Annual (CAD) | Annual Per SF (CAD) |
|---|---|---|
| Taxes |
-
|
-
|
| Operating Expenses |
-
|
-
|
| Total Expenses |
$99,999
|
$9.99
|
Taxes & Operating Expenses (Actual - 2024) Click Here to Access
| Taxes (CAD) | |
|---|---|
| Annual | - |
| Annual Per SF | - |
| Operating Expenses (CAD) | |
|---|---|
| Annual | - |
| Annual Per SF | - |
| Total Expenses (CAD) | |
|---|---|
| Annual | $99,999 |
| Annual Per SF | $9.99 |
Property Facts
Sale Type
Owner User
Property Type
Office
Building Size
4,000 SF
Building Class
C
Year Built
1948
Price
$1,016,359 CAD
Price Per SF
$254.09 CAD
Tenancy
Multiple
Building Height
1 Story
Typical Floor Size
4,000 SF
Building FAR
0.83
Lot Size
0.11 AC
Opportunity Zone
Yes
Zoning
MX-M - Mixed-Use - Moderate Intensity
1 1
Moderately walkable
70/100
Moderately drivable
70/100
Some public transit
40/100
Moderately bikeable
60/100
Property Taxes
| Parcel Number | 1-014-058-297194-4-35-01 | Improvements Assessment | $132,335 CAD (2025) |
| Land Assessment | $13,727 CAD (2025) | Total Assessment | $146,062 CAD (2025) |
Property Taxes
Parcel Number
1-014-058-297194-4-35-01
Land Assessment
$13,727 CAD (2025)
Improvements Assessment
$132,335 CAD (2025)
Total Assessment
$146,062 CAD (2025)
1 of 5
Videos
Matterport 3D Exterior
Matterport 3D Tour
Photos
Street View
Street
Map
1 of 1
Presented by
1000 2nd St NW
Already a member? Log In
Hmm, there seems to have been an error sending your message. Please try again.
Thanks! Your message was sent.



