Your email has been sent.
University Trails Medical 1000 W University Dr 1,446 - 7,987 SF of Office Space Available in Rochester, MI 48307



Highlights
- Ample Parking For Both Patients and Employees
- Stand-Alone Facility in Neighborhood Setting with Surrounding Residential Area and Strong Demographics
All Available Spaces(3)
Display Rental Rate as
- Space
- Size
- Term
- Rental Rate
- Space Use
- Build-Out
- Available
Medical Space Available from 1,446 to 5,780 SF Full Renovation Completed, Including: Landscaping, Front Entrance, Lighting, Parking, Canopy, & Common Areas Close Proximity to Downtown Rochester, Rochester High School and Retail Stores Ample Parking for Patients and Employees Stand-Alone Facility in Neighborhood Setting with Surrounding Residential Area and Strong Demographics Turnkey Build-Outs Available
- Partially Built-Out as Standard Office
- Fits 11 - 35 People
- Can be combined with additional space(s) for up to 5,780 SF of adjacent space
- Stand Alone Facility in Neighborhood Setting
- Mostly Open Floor Plan Layout
- Finished Ceilings: 8’
- Ample Parking for Patients and Employees
Medical Space Available from 1,446 to 5,780 SF Full Renovation Completed, Including: Landscaping, Front Entrance, Lighting, Parking, Canopy, & Common Areas Close Proximity to Downtown Rochester, Rochester High School and Retail Stores Ample Parking for Patients and Employees Stand-Alone Facility in Neighborhood Setting with Surrounding Residential Area and Strong Demographics Turnkey Build-Outs Available
- Partially Built-Out as Standard Office
- Fits 4 - 12 People
- Can be combined with additional space(s) for up to 5,780 SF of adjacent space
- Stand Alone Facility in Neighborhood Setting
- Mostly Open Floor Plan Layout
- Finished Ceilings: 8’
- Ample Parking for Patients and Employees
Medical Space Available from 1,446 to 5,780 SF Full Renovation Completed, Including: Landscaping, Front Entrance, Lighting, Parking, Canopy, & Common Areas Close Proximity to Downtown Rochester, Rochester High School and Retail Stores Ample Parking for Patients and Employees Stand-Alone Facility in Neighborhood Setting with Surrounding Residential Area and Strong Demographics Turnkey Build-Outs Available
- Fully Built-Out as Standard Office
- Fits 6 - 18 People
- Mostly Open Floor Plan Layout
- Finished Ceilings: 8’
| Space | Size | Term | Rental Rate | Space Use | Build-Out | Available |
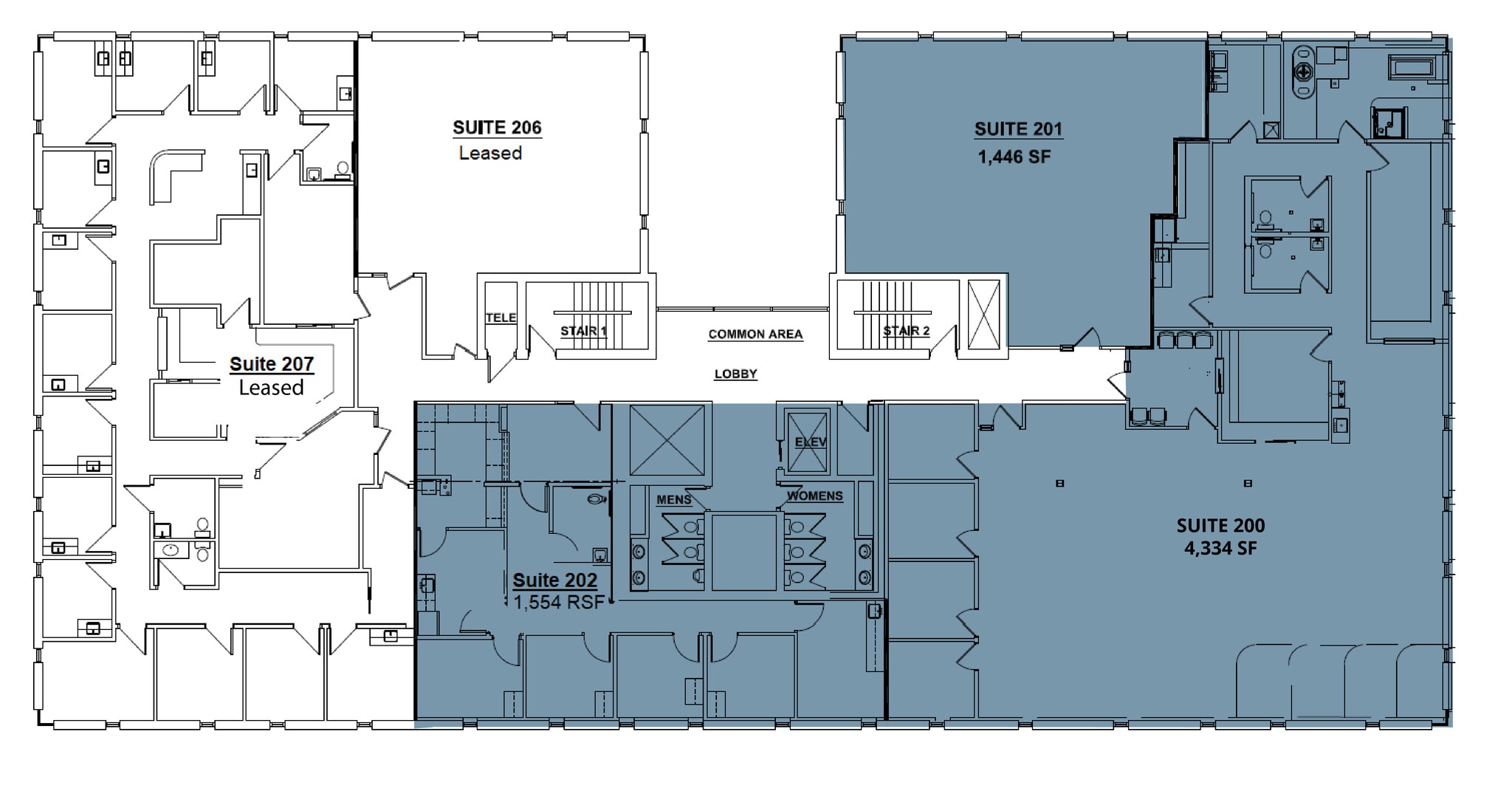
| 2nd Floor, Ste 200 | 4,334 SF | Negotiable | Upon Request Upon Request Upon Request Upon Request | Office | Partial Build-Out | Now |
| 2nd Floor, Ste 201 | 1,446 SF | Negotiable | Upon Request Upon Request Upon Request Upon Request | Office | Partial Build-Out | Now |
| 3rd Floor, Ste 316 | 2,207 SF | Negotiable | Upon Request Upon Request Upon Request Upon Request | Office | Full Build-Out | Now |
2nd Floor, Ste 200
| Size |
| 4,334 SF |
| Term |
| Negotiable |
| Rental Rate |
| Upon Request Upon Request Upon Request Upon Request |
| Space Use |
| Office |
| Build-Out |
| Partial Build-Out |
| Available |
| Now |
2nd Floor, Ste 201
| Size |
| 1,446 SF |
| Term |
| Negotiable |
| Rental Rate |
| Upon Request Upon Request Upon Request Upon Request |
| Space Use |
| Office |
| Build-Out |
| Partial Build-Out |
| Available |
| Now |
3rd Floor, Ste 316
| Size |
| 2,207 SF |
| Term |
| Negotiable |
| Rental Rate |
| Upon Request Upon Request Upon Request Upon Request |
| Space Use |
| Office |
| Build-Out |
| Full Build-Out |
| Available |
| Now |
2nd Floor, Ste 200
| Size | 4,334 SF |
| Term | Negotiable |
| Rental Rate | Upon Request |
| Space Use | Office |
| Build-Out | Partial Build-Out |
| Available | Now |
Medical Space Available from 1,446 to 5,780 SF Full Renovation Completed, Including: Landscaping, Front Entrance, Lighting, Parking, Canopy, & Common Areas Close Proximity to Downtown Rochester, Rochester High School and Retail Stores Ample Parking for Patients and Employees Stand-Alone Facility in Neighborhood Setting with Surrounding Residential Area and Strong Demographics Turnkey Build-Outs Available
- Partially Built-Out as Standard Office
- Mostly Open Floor Plan Layout
- Fits 11 - 35 People
- Finished Ceilings: 8’
- Can be combined with additional space(s) for up to 5,780 SF of adjacent space
- Ample Parking for Patients and Employees
- Stand Alone Facility in Neighborhood Setting
2nd Floor, Ste 201
| Size | 1,446 SF |
| Term | Negotiable |
| Rental Rate | Upon Request |
| Space Use | Office |
| Build-Out | Partial Build-Out |
| Available | Now |
Medical Space Available from 1,446 to 5,780 SF Full Renovation Completed, Including: Landscaping, Front Entrance, Lighting, Parking, Canopy, & Common Areas Close Proximity to Downtown Rochester, Rochester High School and Retail Stores Ample Parking for Patients and Employees Stand-Alone Facility in Neighborhood Setting with Surrounding Residential Area and Strong Demographics Turnkey Build-Outs Available
- Partially Built-Out as Standard Office
- Mostly Open Floor Plan Layout
- Fits 4 - 12 People
- Finished Ceilings: 8’
- Can be combined with additional space(s) for up to 5,780 SF of adjacent space
- Ample Parking for Patients and Employees
- Stand Alone Facility in Neighborhood Setting
3rd Floor, Ste 316
| Size | 2,207 SF |
| Term | Negotiable |
| Rental Rate | Upon Request |
| Space Use | Office |
| Build-Out | Full Build-Out |
| Available | Now |
Medical Space Available from 1,446 to 5,780 SF Full Renovation Completed, Including: Landscaping, Front Entrance, Lighting, Parking, Canopy, & Common Areas Close Proximity to Downtown Rochester, Rochester High School and Retail Stores Ample Parking for Patients and Employees Stand-Alone Facility in Neighborhood Setting with Surrounding Residential Area and Strong Demographics Turnkey Build-Outs Available
- Fully Built-Out as Standard Office
- Mostly Open Floor Plan Layout
- Fits 6 - 18 People
- Finished Ceilings: 8’
Property Overview
Medical Space Available from 1,446 to 5,780 SF Full Renovation Completed, Including: Landscaping, Front Entrance, Lighting, Parking, Canopy, & Common Areas Close Proximity to Downtown Rochester, Rochester High School and Retail Stores Ample Parking for Patients and Employees Stand-Alone Facility in Neighborhood Setting with Surrounding Residential Area and Strong Demographics Turnkey Build-Outs Available
- Signage
Property Facts
Select Tenants
- Floor
- Tenant Name
- Industry
- 3rd
- Bernard Schwartz and Associates
- Health Care and Social Assistance
Presented by
University Trails Medical | 1000 W University Dr
Hmm, there seems to have been an error sending your message. Please try again.
Thanks! Your message was sent.



