Your email has been sent.
Parkside Towers 1001-1051 E Hillsdale Blvd 7,772 - 70,444 SF of 4-Star Office Space Available in Foster City, CA 94404



Highlights
- Parkside Towers integrates a beautiful park-like environment with a vital commercial center.
- Five floors of office space above three levels of mostly covered parking.
- Great corner location at East Hillsdale Blvd. and Shell Blvd.
All Available Spaces(3)
Display Rental Rate as
- Space
- Size
- Term
- Rental Rate
- Space Use
- Build-Out
- Available
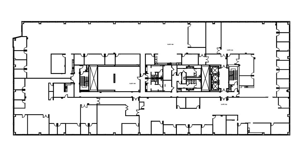
Located on the fifth floor, this plug-and-play suite offers immediate occupancy. The layout includes a high-end kitchen area, exposed ceilings, and a double-door entry off the elevator lobby. The configuration supports approximately 78 workstations, promoting a collaborative, open feel complemented by modern finishes.
- Lease rate does not include utilities, property expenses or building services
- Mostly Open Floor Plan Layout
- Plug & Play
- Elevator Access
- Natural Light
- 3,000 SF Exclusive Rooftop Deck
- Double-door entry off elevator lobby
- Fully Built-Out as Standard Office
- 78 Workstations
- Kitchen
- Exposed Ceiling
- Plug-and-play configuration
- High-end kitchen and exposed ceilings
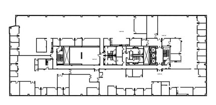
Occupying a full floor, this space delivers expansive layout options suitable for large teams or enterprise users. It offers immediate availability and is positioned for flexible customization to accommodate a range of business requirements.
- Lease rate does not include utilities, property expenses or building services
- Mostly Open Floor Plan Layout
- 9 Conference Rooms
- Full-floor availability on the fifth floor
- Fully Built-Out as Standard Office
- 27 Private Offices
- Private Restrooms
- Design flexibility for large-scale occupancy
Situated on the seventh floor, this suite features an open floor plan allowing for efficient space planning and natural light throughout. The location provides unobstructed views of the surrounding area, enhancing the overall work environment.
- Lease rate does not include utilities, property expenses or building services
- Open Floor Plan Layout
- 3 Conference Rooms
- Open-Plan
- Exceptional natural light and scenic views
- Fully Built-Out as Standard Office
- 11 Private Offices
- Natural Light
- Open floor layout provides flexibility
| Space | Size | Term | Rental Rate | Space Use | Build-Out | Available |
| 5th Floor, Ste 1001- 550 | 7,772 SF | Negotiable | $69.76 CAD/SF/YR $5.81 CAD/SF/MO $542,173 CAD/YR $45,181 CAD/MO | Office | Full Build-Out | Now |
| 5th Floor, Ste 1051-5 Flr | 43,030 SF | Negotiable | $69.76 CAD/SF/YR $5.81 CAD/SF/MO $3,001,766 CAD/YR $250,147 CAD/MO | Office | Full Build-Out | Now |
| 7th Floor, Ste 1051-710 | 19,642 SF | Negotiable | $69.76 CAD/SF/YR $5.81 CAD/SF/MO $1,370,223 CAD/YR $114,185 CAD/MO | Office | Full Build-Out | Now |
5th Floor, Ste 1001- 550
| Size |
| 7,772 SF |
| Term |
| Negotiable |
| Rental Rate |
| $69.76 CAD/SF/YR $5.81 CAD/SF/MO $542,173 CAD/YR $45,181 CAD/MO |
| Space Use |
| Office |
| Build-Out |
| Full Build-Out |
| Available |
| Now |
5th Floor, Ste 1051-5 Flr
| Size |
| 43,030 SF |
| Term |
| Negotiable |
| Rental Rate |
| $69.76 CAD/SF/YR $5.81 CAD/SF/MO $3,001,766 CAD/YR $250,147 CAD/MO |
| Space Use |
| Office |
| Build-Out |
| Full Build-Out |
| Available |
| Now |
7th Floor, Ste 1051-710
| Size |
| 19,642 SF |
| Term |
| Negotiable |
| Rental Rate |
| $69.76 CAD/SF/YR $5.81 CAD/SF/MO $1,370,223 CAD/YR $114,185 CAD/MO |
| Space Use |
| Office |
| Build-Out |
| Full Build-Out |
| Available |
| Now |
5th Floor, Ste 1001- 550
| Size | 7,772 SF |
| Term | Negotiable |
| Rental Rate | $69.76 CAD/SF/YR |
| Space Use | Office |
| Build-Out | Full Build-Out |
| Available | Now |
Located on the fifth floor, this plug-and-play suite offers immediate occupancy. The layout includes a high-end kitchen area, exposed ceilings, and a double-door entry off the elevator lobby. The configuration supports approximately 78 workstations, promoting a collaborative, open feel complemented by modern finishes.
- Lease rate does not include utilities, property expenses or building services
- Fully Built-Out as Standard Office
- Mostly Open Floor Plan Layout
- 78 Workstations
- Plug & Play
- Kitchen
- Elevator Access
- Exposed Ceiling
- Natural Light
- Plug-and-play configuration
- 3,000 SF Exclusive Rooftop Deck
- High-end kitchen and exposed ceilings
- Double-door entry off elevator lobby
5th Floor, Ste 1051-5 Flr
| Size | 43,030 SF |
| Term | Negotiable |
| Rental Rate | $69.76 CAD/SF/YR |
| Space Use | Office |
| Build-Out | Full Build-Out |
| Available | Now |
Occupying a full floor, this space delivers expansive layout options suitable for large teams or enterprise users. It offers immediate availability and is positioned for flexible customization to accommodate a range of business requirements.
- Lease rate does not include utilities, property expenses or building services
- Fully Built-Out as Standard Office
- Mostly Open Floor Plan Layout
- 27 Private Offices
- 9 Conference Rooms
- Private Restrooms
- Full-floor availability on the fifth floor
- Design flexibility for large-scale occupancy
7th Floor, Ste 1051-710
| Size | 19,642 SF |
| Term | Negotiable |
| Rental Rate | $69.76 CAD/SF/YR |
| Space Use | Office |
| Build-Out | Full Build-Out |
| Available | Now |
Situated on the seventh floor, this suite features an open floor plan allowing for efficient space planning and natural light throughout. The location provides unobstructed views of the surrounding area, enhancing the overall work environment.
- Lease rate does not include utilities, property expenses or building services
- Fully Built-Out as Standard Office
- Open Floor Plan Layout
- 11 Private Offices
- 3 Conference Rooms
- Natural Light
- Open-Plan
- Open floor layout provides flexibility
- Exceptional natural light and scenic views
Property Overview
Parkside Towers is a Class A, 400,000 square foot office campus. The project was developed as a joint venture by Woodstock Development & Investments and Foster Enterprises, and constructed by Webcor. Located in close proximity to Highways 101, 92, 280 and the San Mateo Bridge. Property located on the north/east corner of Shell Blvd. and E. Hillsdale. Public transportation via Samtrans and it links to CalTrain and BART. 3 International airports within a 30-minute drive, with SFO less than 10 minutes away. Some of the amenities include: 17,000 SF of retail bottom floor, 5 floors of office over 3 levels of mostly covered parking, 9 to 10 foot ceiling heights, 48 foot clear column spacing, approximately 1 acre park on-site, 4 loading stalls (2 dock high) with freight elevators, private balconies on the 5th, 7th and 8th floors, on-site 24 hour/7 day a week security, card key access for after hours and elevator access, 4-story "Sky-Lobby" entrance, over 40,000 square feet of assembly occupancy capacity and the following: Power: - 8,000 Amp 480 volt (4,000 Amps per Tower) - 1,600-Amp riser busway in each tower - 5.0 Watts per RSF service - Green power provided via PG&E systems State of the art systems in place including: - Fiber optics stubbed to the site - Rooftop ready for satellite and other equipment - Inter-tower connectivity via 4-inch conduits Telecommunications: - Dual entrances for multiple carriers - Point of entry fiber ready - Riser telecom closets sized for 200-pair copper per floor Abundant HVAC systems: Tower/370-ton West Tower - Additional condenser water loop for spot cooling and 24-hour requirements - Direct digital control energy management control system
- 24 Hour Access
- Conferencing Facility
- Fitness Center
- Food Service
- Metro/Subway
- Energy Star Labeled
- Car Charging Station
- Bicycle Storage
- Shower Facilities
- Outdoor Seating
Property Facts
Sustainability
Sustainability
ENERGY STAR® Energy Star is a program run by the U.S. Environmental Protection Agency (EPA) and U.S. Department of Energy (DOE) that promotes energy efficiency and provides simple, credible, and unbiased information that consumers and businesses rely on to make well-informed decisions. Thousands of industrial, commercial, utility, state, and local organizations partner with the EPA to deliver cost-saving energy efficiency solutions that protect the climate while improving air quality and protecting public health. The Energy Star score compares a building’s energy performance to similar buildings nationwide and accounts for differences in operating conditions, regional weather data, and other important considerations. Certification is given on an annual basis, so a building must maintain its high performance to be certified year to year. To be eligible for Energy Star certification, a building must earn a score of 75 or higher on EPA’s 1 – 100 scale, indicating that it performs better than at least 75 percent of similar buildings nationwide. This 1 – 100 Energy Star score is based on the actual, measured energy use of a building and is calculated within EPA’s Energy Star Portfolio Manager tool.
Presented by
Parkside Towers | 1001-1051 E Hillsdale Blvd
Hmm, there seems to have been an error sending your message. Please try again.
Thanks! Your message was sent.







