Log In/Sign Up
Your email has been sent.
1002 Walnut St
Boulder, CO 80302
Walnut Court · Office Property For Sale
·
23,535 SF


1 Unit Available
Unit 300
| Unit Size | 4,948 SF | Sale Type | Owner User |
| Condo Use | Office | No. Parking Spaces | 5 |
| Unit Size | 4,948 SF |
| Condo Use | Office |
| Sale Type | Owner User |
| No. Parking Spaces | 5 |
Description
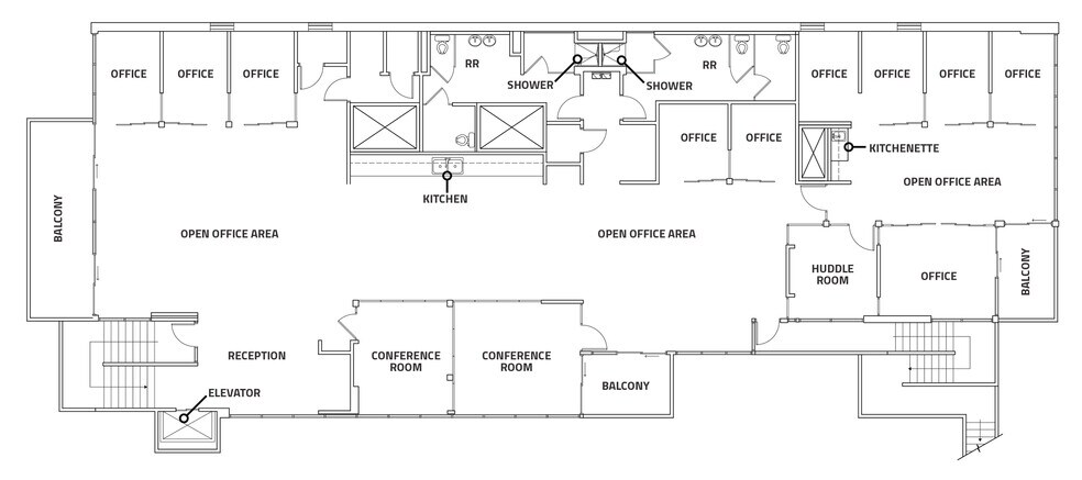
Discover an exceptional 4,948 SF office penthouse suite in the heart of Downtown Boulder. Located on the third floor of 1002 Walnut Street, this premier workspace combines sophisticated contemporary finishes with an unparalleled location. Offering expansive views of Boulder’s vibrant cityscape as well, as Flatiron views from the office (!!), this private suite is designed for productivity and prestige. With exclusive access to the entire space and premium amenities, this office is a distinguished choice for businesses seeking a dynamic and inspiring environment.
1002-Walnut-Street_FloorPlan_09-02-2025-Suite300
1 of 1
Videos
Matterport 3D Exterior
Matterport 3D Tour
Photos
Street View
Street
Map
Property Facts
The following property facts apply to the entire building. Details for individual condo units may vary and are listed in the unit information above.
| Total Building Size | 23,535 SF | Typical Floor Size | 7,845 SF |
| Property Type | Office (Condo) | Year Built | 1979 |
| Building Class | B | Lot Size | 0.32 AC |
| Floors | 3 | ||
| Zoning | DT-5 - Downtown 5 | ||
| Total Building Size | 23,535 SF |
| Property Type | Office (Condo) |
| Building Class | B |
| Floors | 3 |
| Typical Floor Size | 7,845 SF |
| Year Built | 1979 |
| Lot Size | 0.32 AC |
| Zoning | DT-5 - Downtown 5 |
1 of 22
Videos
Matterport 3D Exterior
Matterport 3D Tour
Photos
Street View
Street
Map

