Your email has been sent.
PNC Center 101-115 W Washington St 1,236 - 175,968 SF of 4-Star Office Space Available in Indianapolis, IN 46204

Highlights
- Connected to Circle Centre
- 2,500 covered spaces nearby
- Abundant Amenities
- 40,000 SF floor plates
- Best Connected Building in Downtown Indy
All Available Spaces(22)
Display Rental Rate as
- Space
- Size
- Term
- Rental Rate
- Space Use
- Build-Out
- Available
6,732 square feet of office space available for lease.
- Rate includes utilities, building services and property expenses
- Mostly Open Floor Plan Layout
- Partially Built-Out as Standard Office
1,846 square feet of office space available for lease.
- Rate includes utilities, building services and property expenses
- Mostly Open Floor Plan Layout
- Partially Built-Out as Standard Office
6,016 square feet of office space available for lease.
- Fully Built-Out as Standard Office
- Office intensive layout
20,752 square feet of office space available for lease.
- Rate includes utilities, building services and property expenses
- Mostly Open Floor Plan Layout
- Partially Built-Out as Standard Office
15,297 square feet of office space available for lease.
- Rate includes utilities, building services and property expenses
- Mostly Open Floor Plan Layout
- Partially Built-Out as Standard Office
8,120 square feet of office space available for lease.
- Rate includes utilities, building services and property expenses
- Mostly Open Floor Plan Layout
- Partially Built-Out as Standard Office
5,335 square feet of office space available for lease.
- Rate includes utilities, building services and property expenses
- Mostly Open Floor Plan Layout
- Partially Built-Out as Standard Office
5,069 square feet of office space available for lease.
3,343 square feet of office space available for lease.
- Rate includes utilities, building services and property expenses
3,485 square feet of office space available for lease.
- Rate includes utilities, building services and property expenses
- Mostly Open Floor Plan Layout
- Partially Built-Out as Standard Office
2,230 square feet of office space available for lease.
- Rate includes utilities, building services and property expenses
- Mostly Open Floor Plan Layout
- Partially Built-Out as Standard Office
10,868 square feet of office space available for lease.
- Rate includes utilities, building services and property expenses
- Office intensive layout
- Fully Built-Out as Standard Office
5,715 square feet of office space available for lease.
- Rate includes utilities, building services and property expenses
- Mostly Open Floor Plan Layout
- Partially Built-Out as Standard Office
2,424 square feet of office space available for lease.
- Fully Built-Out as Standard Office
- Office intensive layout
5,768 square feet of office space available for lease.
- Rate includes utilities, building services and property expenses
- Mostly Open Floor Plan Layout
- Partially Built-Out as Standard Office
3,439 square feet of office space available for lease.
- Fully Built-Out as Standard Office
- Office intensive layout
6,030 square feet of office space available for lease.
3,565 square feet of office space available for lease.
- Fully Built-Out as Standard Office
- Office intensive layout
21,945 square feet of office space available for lease.
- Fully Built-Out as Standard Office
- Office intensive layout
14,529 square feet of office space available for lease.
- Rate includes utilities, building services and property expenses
- Office intensive layout
- Fully Built-Out as Standard Office
1,236 square feet of office space available for lease.
- Rate includes utilities, building services and property expenses
- Office intensive layout
- Fully Built-Out as Standard Office
22,251 square feet of office space available for lease.
- Rate includes utilities, building services and property expenses
- Mostly Open Floor Plan Layout
- Partially Built-Out as Standard Office
| Space | Size | Term | Rental Rate | Space Use | Build-Out | Available |
| 4th Floor, Ste 450 South | 6,732 SF | Negotiable | $23.30 CAD/SF/YR $1.94 CAD/SF/MO $156,835 CAD/YR $13,070 CAD/MO | Office | Partial Build-Out | Now |
| 4th Floor, Ste 475 South | 1,846 SF | Negotiable | $30.83 CAD/SF/YR $2.57 CAD/SF/MO $56,920 CAD/YR $4,743 CAD/MO | Office | Partial Build-Out | Now |
| 4th Floor, Ste 480 South | 6,016 SF | Negotiable | Upon Request Upon Request Upon Request Upon Request | Office | Full Build-Out | Now |
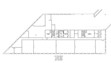
| 5th Floor, Ste 500 South | 20,725 SF | Negotiable | $30.83 CAD/SF/YR $2.57 CAD/SF/MO $639,039 CAD/YR $53,253 CAD/MO | Office | Partial Build-Out | Now |
| 7th Floor, Ste 700 East | 15,297 SF | Negotiable | $30.83 CAD/SF/YR $2.57 CAD/SF/MO $471,671 CAD/YR $39,306 CAD/MO | Office | Partial Build-Out | Now |
| 9th Floor, Ste 990 South | 8,120 SF | Negotiable | $30.83 CAD/SF/YR $2.57 CAD/SF/MO $250,374 CAD/YR $20,864 CAD/MO | Office | Partial Build-Out | Now |
| 10th Floor, Ste 1025 East | 5,335 SF | Negotiable | $30.83 CAD/SF/YR $2.57 CAD/SF/MO $164,501 CAD/YR $13,708 CAD/MO | Office | Partial Build-Out | Now |
| 10th Floor, Ste 1050 East | 5,069 SF | Negotiable | Upon Request Upon Request Upon Request Upon Request | Office | - | Now |
| 11th Floor, Ste 1100 East | 3,343 SF | Negotiable | $30.83 CAD/SF/YR $2.57 CAD/SF/MO $103,079 CAD/YR $8,590 CAD/MO | Office | - | Now |
| 11th Floor, Ste 1110 South | 3,485 SF | Negotiable | $30.83 CAD/SF/YR $2.57 CAD/SF/MO $107,457 CAD/YR $8,955 CAD/MO | Office | Partial Build-Out | Now |
| 11th Floor, Ste 1140 East | 2,230 SF | Negotiable | $30.83 CAD/SF/YR $2.57 CAD/SF/MO $68,760 CAD/YR $5,730 CAD/MO | Office | Partial Build-Out | Now |
| 11th Floor, Ste 1170 East | 10,868 SF | Negotiable | $30.83 CAD/SF/YR $2.57 CAD/SF/MO $335,106 CAD/YR $27,926 CAD/MO | Office | Full Build-Out | Now |
| 11th Floor, Ste 1175 South | 5,715 SF | Negotiable | $30.83 CAD/SF/YR $2.57 CAD/SF/MO $176,218 CAD/YR $14,685 CAD/MO | Office | Partial Build-Out | Now |
| 12th Floor, Ste 1200 South | 2,424 SF | Negotiable | Upon Request Upon Request Upon Request Upon Request | Office | Full Build-Out | Now |
| 12th Floor, Ste 1210 East | 5,768 SF | Negotiable | $30.83 CAD/SF/YR $2.57 CAD/SF/MO $177,852 CAD/YR $14,821 CAD/MO | Office | Partial Build-Out | Now |
| 12th Floor, Ste 1220 South | 3,439 SF | Negotiable | Upon Request Upon Request Upon Request Upon Request | Office | Full Build-Out | Now |
| 12th Floor, Ste 1250 East Tower | 6,030 SF | Negotiable | Upon Request Upon Request Upon Request Upon Request | Office | - | 2026-07-01 |
| 12th Floor, Ste 1250 South | 3,565 SF | Negotiable | Upon Request Upon Request Upon Request Upon Request | Office | Full Build-Out | Now |
| 13th Floor, Ste 1300 East | 21,945 SF | Negotiable | Upon Request Upon Request Upon Request Upon Request | Office | Full Build-Out | Now |
| 13th Floor, Ste 1368 South | 14,529 SF | Negotiable | $30.83 CAD/SF/YR $2.57 CAD/SF/MO $447,990 CAD/YR $37,333 CAD/MO | Office | Full Build-Out | Now |
| 13th Floor, Ste 1370 South | 1,236 SF | Negotiable | $30.83 CAD/SF/YR $2.57 CAD/SF/MO $38,111 CAD/YR $3,176 CAD/MO | Office | Full Build-Out | Now |
| 14th Floor, Ste 1400 East | 22,251 SF | Negotiable | $30.83 CAD/SF/YR $2.57 CAD/SF/MO $686,092 CAD/YR $57,174 CAD/MO | Office | Partial Build-Out | Now |
4th Floor, Ste 450 South
| Size |
| 6,732 SF |
| Term |
| Negotiable |
| Rental Rate |
| $23.30 CAD/SF/YR $1.94 CAD/SF/MO $156,835 CAD/YR $13,070 CAD/MO |
| Space Use |
| Office |
| Build-Out |
| Partial Build-Out |
| Available |
| Now |
4th Floor, Ste 475 South
| Size |
| 1,846 SF |
| Term |
| Negotiable |
| Rental Rate |
| $30.83 CAD/SF/YR $2.57 CAD/SF/MO $56,920 CAD/YR $4,743 CAD/MO |
| Space Use |
| Office |
| Build-Out |
| Partial Build-Out |
| Available |
| Now |
4th Floor, Ste 480 South
| Size |
| 6,016 SF |
| Term |
| Negotiable |
| Rental Rate |
| Upon Request Upon Request Upon Request Upon Request |
| Space Use |
| Office |
| Build-Out |
| Full Build-Out |
| Available |
| Now |
5th Floor, Ste 500 South
| Size |
| 20,725 SF |
| Term |
| Negotiable |
| Rental Rate |
| $30.83 CAD/SF/YR $2.57 CAD/SF/MO $639,039 CAD/YR $53,253 CAD/MO |
| Space Use |
| Office |
| Build-Out |
| Partial Build-Out |
| Available |
| Now |
7th Floor, Ste 700 East
| Size |
| 15,297 SF |
| Term |
| Negotiable |
| Rental Rate |
| $30.83 CAD/SF/YR $2.57 CAD/SF/MO $471,671 CAD/YR $39,306 CAD/MO |
| Space Use |
| Office |
| Build-Out |
| Partial Build-Out |
| Available |
| Now |
9th Floor, Ste 990 South
| Size |
| 8,120 SF |
| Term |
| Negotiable |
| Rental Rate |
| $30.83 CAD/SF/YR $2.57 CAD/SF/MO $250,374 CAD/YR $20,864 CAD/MO |
| Space Use |
| Office |
| Build-Out |
| Partial Build-Out |
| Available |
| Now |
10th Floor, Ste 1025 East
| Size |
| 5,335 SF |
| Term |
| Negotiable |
| Rental Rate |
| $30.83 CAD/SF/YR $2.57 CAD/SF/MO $164,501 CAD/YR $13,708 CAD/MO |
| Space Use |
| Office |
| Build-Out |
| Partial Build-Out |
| Available |
| Now |
10th Floor, Ste 1050 East
| Size |
| 5,069 SF |
| Term |
| Negotiable |
| Rental Rate |
| Upon Request Upon Request Upon Request Upon Request |
| Space Use |
| Office |
| Build-Out |
| - |
| Available |
| Now |
11th Floor, Ste 1100 East
| Size |
| 3,343 SF |
| Term |
| Negotiable |
| Rental Rate |
| $30.83 CAD/SF/YR $2.57 CAD/SF/MO $103,079 CAD/YR $8,590 CAD/MO |
| Space Use |
| Office |
| Build-Out |
| - |
| Available |
| Now |
11th Floor, Ste 1110 South
| Size |
| 3,485 SF |
| Term |
| Negotiable |
| Rental Rate |
| $30.83 CAD/SF/YR $2.57 CAD/SF/MO $107,457 CAD/YR $8,955 CAD/MO |
| Space Use |
| Office |
| Build-Out |
| Partial Build-Out |
| Available |
| Now |
11th Floor, Ste 1140 East
| Size |
| 2,230 SF |
| Term |
| Negotiable |
| Rental Rate |
| $30.83 CAD/SF/YR $2.57 CAD/SF/MO $68,760 CAD/YR $5,730 CAD/MO |
| Space Use |
| Office |
| Build-Out |
| Partial Build-Out |
| Available |
| Now |
11th Floor, Ste 1170 East
| Size |
| 10,868 SF |
| Term |
| Negotiable |
| Rental Rate |
| $30.83 CAD/SF/YR $2.57 CAD/SF/MO $335,106 CAD/YR $27,926 CAD/MO |
| Space Use |
| Office |
| Build-Out |
| Full Build-Out |
| Available |
| Now |
11th Floor, Ste 1175 South
| Size |
| 5,715 SF |
| Term |
| Negotiable |
| Rental Rate |
| $30.83 CAD/SF/YR $2.57 CAD/SF/MO $176,218 CAD/YR $14,685 CAD/MO |
| Space Use |
| Office |
| Build-Out |
| Partial Build-Out |
| Available |
| Now |
12th Floor, Ste 1200 South
| Size |
| 2,424 SF |
| Term |
| Negotiable |
| Rental Rate |
| Upon Request Upon Request Upon Request Upon Request |
| Space Use |
| Office |
| Build-Out |
| Full Build-Out |
| Available |
| Now |
12th Floor, Ste 1210 East
| Size |
| 5,768 SF |
| Term |
| Negotiable |
| Rental Rate |
| $30.83 CAD/SF/YR $2.57 CAD/SF/MO $177,852 CAD/YR $14,821 CAD/MO |
| Space Use |
| Office |
| Build-Out |
| Partial Build-Out |
| Available |
| Now |
12th Floor, Ste 1220 South
| Size |
| 3,439 SF |
| Term |
| Negotiable |
| Rental Rate |
| Upon Request Upon Request Upon Request Upon Request |
| Space Use |
| Office |
| Build-Out |
| Full Build-Out |
| Available |
| Now |
12th Floor, Ste 1250 East Tower
| Size |
| 6,030 SF |
| Term |
| Negotiable |
| Rental Rate |
| Upon Request Upon Request Upon Request Upon Request |
| Space Use |
| Office |
| Build-Out |
| - |
| Available |
| 2026-07-01 |
12th Floor, Ste 1250 South
| Size |
| 3,565 SF |
| Term |
| Negotiable |
| Rental Rate |
| Upon Request Upon Request Upon Request Upon Request |
| Space Use |
| Office |
| Build-Out |
| Full Build-Out |
| Available |
| Now |
13th Floor, Ste 1300 East
| Size |
| 21,945 SF |
| Term |
| Negotiable |
| Rental Rate |
| Upon Request Upon Request Upon Request Upon Request |
| Space Use |
| Office |
| Build-Out |
| Full Build-Out |
| Available |
| Now |
13th Floor, Ste 1368 South
| Size |
| 14,529 SF |
| Term |
| Negotiable |
| Rental Rate |
| $30.83 CAD/SF/YR $2.57 CAD/SF/MO $447,990 CAD/YR $37,333 CAD/MO |
| Space Use |
| Office |
| Build-Out |
| Full Build-Out |
| Available |
| Now |
13th Floor, Ste 1370 South
| Size |
| 1,236 SF |
| Term |
| Negotiable |
| Rental Rate |
| $30.83 CAD/SF/YR $2.57 CAD/SF/MO $38,111 CAD/YR $3,176 CAD/MO |
| Space Use |
| Office |
| Build-Out |
| Full Build-Out |
| Available |
| Now |
14th Floor, Ste 1400 East
| Size |
| 22,251 SF |
| Term |
| Negotiable |
| Rental Rate |
| $30.83 CAD/SF/YR $2.57 CAD/SF/MO $686,092 CAD/YR $57,174 CAD/MO |
| Space Use |
| Office |
| Build-Out |
| Partial Build-Out |
| Available |
| Now |
4th Floor, Ste 450 South
| Size | 6,732 SF |
| Term | Negotiable |
| Rental Rate | $23.30 CAD/SF/YR |
| Space Use | Office |
| Build-Out | Partial Build-Out |
| Available | Now |
6,732 square feet of office space available for lease.
- Rate includes utilities, building services and property expenses
- Partially Built-Out as Standard Office
- Mostly Open Floor Plan Layout
4th Floor, Ste 475 South
| Size | 1,846 SF |
| Term | Negotiable |
| Rental Rate | $30.83 CAD/SF/YR |
| Space Use | Office |
| Build-Out | Partial Build-Out |
| Available | Now |
1,846 square feet of office space available for lease.
- Rate includes utilities, building services and property expenses
- Partially Built-Out as Standard Office
- Mostly Open Floor Plan Layout
4th Floor, Ste 480 South
| Size | 6,016 SF |
| Term | Negotiable |
| Rental Rate | Upon Request |
| Space Use | Office |
| Build-Out | Full Build-Out |
| Available | Now |
6,016 square feet of office space available for lease.
- Fully Built-Out as Standard Office
- Office intensive layout
5th Floor, Ste 500 South
| Size | 20,725 SF |
| Term | Negotiable |
| Rental Rate | $30.83 CAD/SF/YR |
| Space Use | Office |
| Build-Out | Partial Build-Out |
| Available | Now |
20,752 square feet of office space available for lease.
- Rate includes utilities, building services and property expenses
- Partially Built-Out as Standard Office
- Mostly Open Floor Plan Layout
7th Floor, Ste 700 East
| Size | 15,297 SF |
| Term | Negotiable |
| Rental Rate | $30.83 CAD/SF/YR |
| Space Use | Office |
| Build-Out | Partial Build-Out |
| Available | Now |
15,297 square feet of office space available for lease.
- Rate includes utilities, building services and property expenses
- Partially Built-Out as Standard Office
- Mostly Open Floor Plan Layout
9th Floor, Ste 990 South
| Size | 8,120 SF |
| Term | Negotiable |
| Rental Rate | $30.83 CAD/SF/YR |
| Space Use | Office |
| Build-Out | Partial Build-Out |
| Available | Now |
8,120 square feet of office space available for lease.
- Rate includes utilities, building services and property expenses
- Partially Built-Out as Standard Office
- Mostly Open Floor Plan Layout
10th Floor, Ste 1025 East
| Size | 5,335 SF |
| Term | Negotiable |
| Rental Rate | $30.83 CAD/SF/YR |
| Space Use | Office |
| Build-Out | Partial Build-Out |
| Available | Now |
5,335 square feet of office space available for lease.
- Rate includes utilities, building services and property expenses
- Partially Built-Out as Standard Office
- Mostly Open Floor Plan Layout
10th Floor, Ste 1050 East
| Size | 5,069 SF |
| Term | Negotiable |
| Rental Rate | Upon Request |
| Space Use | Office |
| Build-Out | - |
| Available | Now |
5,069 square feet of office space available for lease.
11th Floor, Ste 1100 East
| Size | 3,343 SF |
| Term | Negotiable |
| Rental Rate | $30.83 CAD/SF/YR |
| Space Use | Office |
| Build-Out | - |
| Available | Now |
3,343 square feet of office space available for lease.
- Rate includes utilities, building services and property expenses
11th Floor, Ste 1110 South
| Size | 3,485 SF |
| Term | Negotiable |
| Rental Rate | $30.83 CAD/SF/YR |
| Space Use | Office |
| Build-Out | Partial Build-Out |
| Available | Now |
3,485 square feet of office space available for lease.
- Rate includes utilities, building services and property expenses
- Partially Built-Out as Standard Office
- Mostly Open Floor Plan Layout
11th Floor, Ste 1140 East
| Size | 2,230 SF |
| Term | Negotiable |
| Rental Rate | $30.83 CAD/SF/YR |
| Space Use | Office |
| Build-Out | Partial Build-Out |
| Available | Now |
2,230 square feet of office space available for lease.
- Rate includes utilities, building services and property expenses
- Partially Built-Out as Standard Office
- Mostly Open Floor Plan Layout
11th Floor, Ste 1170 East
| Size | 10,868 SF |
| Term | Negotiable |
| Rental Rate | $30.83 CAD/SF/YR |
| Space Use | Office |
| Build-Out | Full Build-Out |
| Available | Now |
10,868 square feet of office space available for lease.
- Rate includes utilities, building services and property expenses
- Fully Built-Out as Standard Office
- Office intensive layout
11th Floor, Ste 1175 South
| Size | 5,715 SF |
| Term | Negotiable |
| Rental Rate | $30.83 CAD/SF/YR |
| Space Use | Office |
| Build-Out | Partial Build-Out |
| Available | Now |
5,715 square feet of office space available for lease.
- Rate includes utilities, building services and property expenses
- Partially Built-Out as Standard Office
- Mostly Open Floor Plan Layout
12th Floor, Ste 1200 South
| Size | 2,424 SF |
| Term | Negotiable |
| Rental Rate | Upon Request |
| Space Use | Office |
| Build-Out | Full Build-Out |
| Available | Now |
2,424 square feet of office space available for lease.
- Fully Built-Out as Standard Office
- Office intensive layout
12th Floor, Ste 1210 East
| Size | 5,768 SF |
| Term | Negotiable |
| Rental Rate | $30.83 CAD/SF/YR |
| Space Use | Office |
| Build-Out | Partial Build-Out |
| Available | Now |
5,768 square feet of office space available for lease.
- Rate includes utilities, building services and property expenses
- Partially Built-Out as Standard Office
- Mostly Open Floor Plan Layout
12th Floor, Ste 1220 South
| Size | 3,439 SF |
| Term | Negotiable |
| Rental Rate | Upon Request |
| Space Use | Office |
| Build-Out | Full Build-Out |
| Available | Now |
3,439 square feet of office space available for lease.
- Fully Built-Out as Standard Office
- Office intensive layout
12th Floor, Ste 1250 East Tower
| Size | 6,030 SF |
| Term | Negotiable |
| Rental Rate | Upon Request |
| Space Use | Office |
| Build-Out | - |
| Available | 2026-07-01 |
6,030 square feet of office space available for lease.
12th Floor, Ste 1250 South
| Size | 3,565 SF |
| Term | Negotiable |
| Rental Rate | Upon Request |
| Space Use | Office |
| Build-Out | Full Build-Out |
| Available | Now |
3,565 square feet of office space available for lease.
- Fully Built-Out as Standard Office
- Office intensive layout
13th Floor, Ste 1300 East
| Size | 21,945 SF |
| Term | Negotiable |
| Rental Rate | Upon Request |
| Space Use | Office |
| Build-Out | Full Build-Out |
| Available | Now |
21,945 square feet of office space available for lease.
- Fully Built-Out as Standard Office
- Office intensive layout
13th Floor, Ste 1368 South
| Size | 14,529 SF |
| Term | Negotiable |
| Rental Rate | $30.83 CAD/SF/YR |
| Space Use | Office |
| Build-Out | Full Build-Out |
| Available | Now |
14,529 square feet of office space available for lease.
- Rate includes utilities, building services and property expenses
- Fully Built-Out as Standard Office
- Office intensive layout
13th Floor, Ste 1370 South
| Size | 1,236 SF |
| Term | Negotiable |
| Rental Rate | $30.83 CAD/SF/YR |
| Space Use | Office |
| Build-Out | Full Build-Out |
| Available | Now |
1,236 square feet of office space available for lease.
- Rate includes utilities, building services and property expenses
- Fully Built-Out as Standard Office
- Office intensive layout
14th Floor, Ste 1400 East
| Size | 22,251 SF |
| Term | Negotiable |
| Rental Rate | $30.83 CAD/SF/YR |
| Space Use | Office |
| Build-Out | Partial Build-Out |
| Available | Now |
22,251 square feet of office space available for lease.
- Rate includes utilities, building services and property expenses
- Partially Built-Out as Standard Office
- Mostly Open Floor Plan Layout
Property Overview
Sixteen story, two-tower building connected to the Hyatt Hotel; Nexus Tenant Lounge including dry cleaning drop-off/pick-up and shoe shine; Prime downtown location, Located adjacent to Circle Centre Mall on Northwest corner of Illinois and Maryland; Building located on full block between Capital, Maryland, Washington, and Illinois
- Atrium
- Banking
- Conferencing Facility
- Food Service
- Property Manager on Site
- Restaurant
- Energy Star Labeled
- Reception
Property Facts
Sustainability
Sustainability
LEED Certification Developed by the U.S. Green Building Council (USGBC), the Leadership in Energy and Environmental Design (LEED) is a green building certification program focused on the design, construction, operation, and maintenance of green buildings, homes, and neighborhoods, which aims to help building owners and operators be environmentally responsible and use resources efficiently. LEED certification is a globally recognized symbol of sustainability achievement and leadership. To achieve LEED certification, a project earns points by adhering to prerequisites and credits that address carbon, energy, water, waste, transportation, materials, health and indoor environmental quality. Projects go through a verification and review process and are awarded points that correspond to a level of LEED certification: Platinum (80+ points) Gold (60-79 points) Silver (50-59 points) Certified (40-49 points)
Presented by
PNC Center | 101-115 W Washington St
Hmm, there seems to have been an error sending your message. Please try again.
Thanks! Your message was sent.


