Your email has been sent.
101 Cantera way - Cantera Way 2.11 Acres of Commercial Land in Georgetown, TX 78628



Investment Highlights
- Strategic Georgetown location near key arterial roads
Executive Summary
Property Facts
1 Lot Available
Lot 101
| Lot Size | 2.11 AC |
| Lot Size | 2.11 AC |
Commercial lot with excellent access and visibility in the Cantera Way/Highway 29 corridor. Level site surrounded by professional office and retail uses.
Description
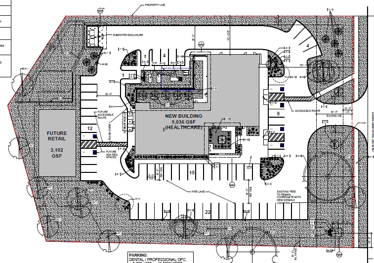
All land uses need to be verified by the buyer. Property Highlights Architecture plans completed for mixed use retail and medical totaling 12,000 sq ft. Partially submitted to the City of Georgetown. Civil Engineering completed and submitted to city for review. Septic plan also available. This is the last lot available in the Cantera Business Park and is on highway 29 frontage. Excellent visibility and accessibility Flexible layout suitable for office, medical, retail, or professional use Strong surrounding growth and demographics Ideal for owner-user or investment Address: 101 Cantera Way, Georgetown, TX 78628 Zoning: Commercial Lot Size: 2.11 acres Investment / Owner-User Advantages Georgetown continues to be one of the fastest-growing cities in Texas Strong demand for medical, professional office, and service-based businesses Convenient access to IH-35, SH-130, and surrounding retail centers Favorable business climate and long-term appreciation potential Ideal Uses Medical / Dental Professional Office Retail / Service Owner-Occupied Business Investment Property
Property Taxes
| Parcel Number | R513787 | Improvements Assessment | $0 CAD |
| Land Assessment | $744,104 CAD | Total Assessment | $744,104 CAD |
Property Taxes
Presented by
Gtown Holdings LLC
101 Cantera way - Cantera Way
Hmm, there seems to have been an error sending your message. Please try again.
Thanks! Your message was sent.
