Your email has been sent.
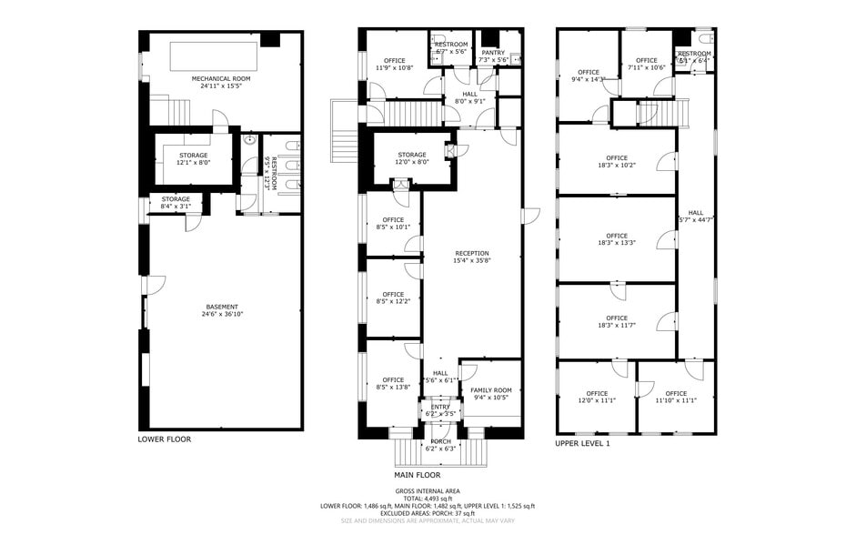
101 E Jefferson St 3,380 SF 60% Leased Office Building Winterset, IA 50273 $613,343 CAD ($181.46 CAD/SF)



Investment Highlights
- Historic 1913 building with modern updates. Newer furnaces and A/c
- Just 30 minutes to Des Moines
- Private parking lot on Winterset's bustling and charming town square
Executive Summary
Current rental income is $2150/ mo with tenants on a month-to-month lease. Additional space is available.
Financial Summary (Actual - 2025) |
Annual (CAD) | Annual Per SF (CAD) |
|---|---|---|
| Gross Rental Income |
$2,934
|
$0.87
|
| Other Income |
-
|
-
|
| Vacancy Loss |
-
|
-
|
| Effective Gross Income |
$2,934
|
$0.87
|
| Net Operating Income |
-
|
-
|
Financial Summary (Actual - 2025)
| Gross Rental Income (CAD) | |
|---|---|
| Annual | $2,934 |
| Annual Per SF | $0.87 |
| Other Income (CAD) | |
|---|---|
| Annual | - |
| Annual Per SF | - |
| Vacancy Loss (CAD) | |
|---|---|
| Annual | - |
| Annual Per SF | - |
| Effective Gross Income (CAD) | |
|---|---|
| Annual | $2,934 |
| Annual Per SF | $0.87 |
| Net Operating Income (CAD) | |
|---|---|
| Annual | - |
| Annual Per SF | - |
Property Facts
Amenities
- 24 Hour Access
- Reception
- Storage Space
- Air Conditioning
Major Tenants
- Tenant
- Industry
- SF Occupied
- Rent/SF
- Lease End
Ils sont l'un des plus grands franchiseurs du monde dans l'industrie de l'immobilier. Ils franchisent les maisons de courtage immobilier à l'échelle mondiale sous la marque RE/MAXMD et les maisons de courtage hypothécaires aux États-Unis sous la marque Motto® Mortgage. Ils vendent également des produits et services auxiliaires à leurs réseaux de franchises et ils vendent ces offres à l'extérieur de leurs réseaux de franchises. RE/MAX, fondée en 1973, compte plus de 140 000 agents et est présente dans plus de 110 pays. Motto Mortgage figure parmi les franchises ayant connu la croissance la plus rapide et compte plus de 200 bureaux ouverts depuis sa création en 2016. RE/MAX et Motto Mortgage sont franchisés à 100 % — ils ne possèdent aucune des maisons de courtage qui exercent leurs activités sous ces marques. Ils mettent l'accent sur la réussite de leurs réseaux en offrant une éducation de qualité et un marketing précieux pour renforcer la force des marques RE/MAX et Motto Mortgage.
- Winterset Fire Department
- Public Administration
- -
- -
- -
| Tenant | Industry | SF Occupied | Rent/SF | Lease End | ||
|
|
Real Estate | - | - | - | ||
| Winterset Fire Department | Public Administration | - | - | - |
Property Taxes
| Parcel Numbers | Improvements Assessment | $537,250 CAD | |
| Land Assessment | $85,960 CAD | Total Assessment | $623,210 CAD |
Property Taxes
Presented by
101 E Jefferson St
Hmm, there seems to have been an error sending your message. Please try again.
Thanks! Your message was sent.

