Log In/Sign Up
Your email has been sent.
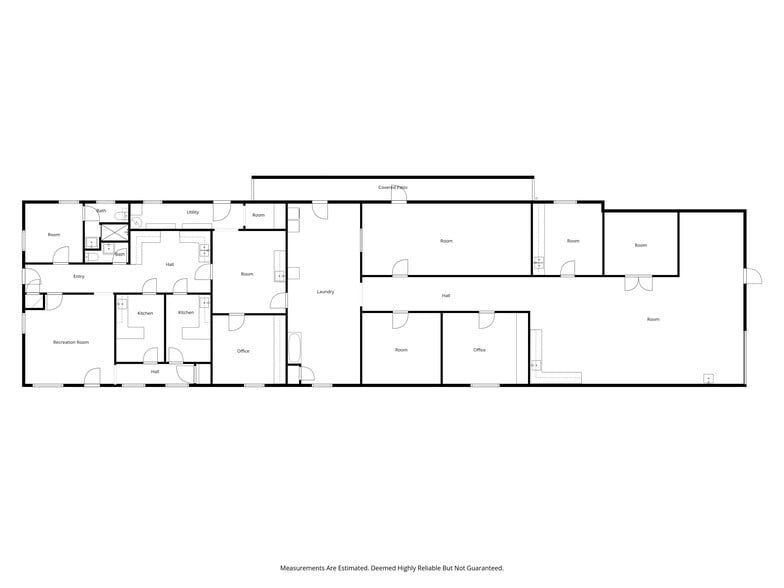
101 Lea Rd 4,125 SF Health Care Building Offered at $205,456 CAD in Kenbridge, VA 23944



Investment Highlights
- FRONTING BUSY HWY 40 / MAIN STREET WITH HIGH TRAFFIC COUNT
- NO OTHER VETERINARY CLINIC IN COUNTY
- ENTERPRISE ZONE
Executive Summary
PUBLIC REAL ESTATE AUCTION EVENT
ONLINE ONLY BIDDING!!
Please bid early and often & understand the online only bidding begins to close on Wednesday, May 27, 2026 @ 12:00 PM NOON (Eastern).
Property Tours: Wednesday, May 6, Saturday, May 9 & Friday, May 15, 2026 from 12:00-1:00 pm (Feel free to bring your inspector/contractor). Please contact Sid Smyth for more information (434-955-0708)
Prime Commercial Opportunity w/High Visibility & Road Frontage --BID NOW!! ONLINE ONLY BIDDING!!
Zoned M-2 - General Industrial District
M-2 in Kenbridge = highest-intensity industrial zoning
It’s meant for full-scale industrial activity, with broader permitted uses and fewer restrictions than light industrial, but still subject to standard development controls.
4,125 +/- sf. commercial brick building on 1.25 +/- acres -- Located in the Enterprise Zone -- Previously operated as a veterinary clinic & is ready for immediate reuse or converted to medical offices, professional services or retail -- Fenced area -- Located adjacent to the Kenbridge industrial corridor, 5 miles from Victoria, 12 miles from Blackstone, 18.5 miles from I-85, and a short drive to South Hill, Petersburg, Emporia & NC Line!!
Only $150,000 Starting Bid!! Online Only Bidding Closes Wednesday, May 27, 2026 @ 12:00 PM NOON (Eastern)
visit www.nichollsauction.com for more info
ONLINE ONLY BIDDING!!
Please bid early and often & understand the online only bidding begins to close on Wednesday, May 27, 2026 @ 12:00 PM NOON (Eastern).
Property Tours: Wednesday, May 6, Saturday, May 9 & Friday, May 15, 2026 from 12:00-1:00 pm (Feel free to bring your inspector/contractor). Please contact Sid Smyth for more information (434-955-0708)
Prime Commercial Opportunity w/High Visibility & Road Frontage --BID NOW!! ONLINE ONLY BIDDING!!
Zoned M-2 - General Industrial District
M-2 in Kenbridge = highest-intensity industrial zoning
It’s meant for full-scale industrial activity, with broader permitted uses and fewer restrictions than light industrial, but still subject to standard development controls.
4,125 +/- sf. commercial brick building on 1.25 +/- acres -- Located in the Enterprise Zone -- Previously operated as a veterinary clinic & is ready for immediate reuse or converted to medical offices, professional services or retail -- Fenced area -- Located adjacent to the Kenbridge industrial corridor, 5 miles from Victoria, 12 miles from Blackstone, 18.5 miles from I-85, and a short drive to South Hill, Petersburg, Emporia & NC Line!!
Only $150,000 Starting Bid!! Online Only Bidding Closes Wednesday, May 27, 2026 @ 12:00 PM NOON (Eastern)
visit www.nichollsauction.com for more info
Property Facts
| Price | $205,456 CAD | Building Class | C |
| Price Per Bed | $205,456 CAD | Building Size | 4,125 SF |
| Sale Type | Investment or Owner User | No. Beds | 1 |
| Property Type | Health Care | No. Stories | 1 |
| Property Subtype | Rehabilitation Center | Year Built | 1991 |
| Zoning | M-2 - M-2 in Kenbridge = highest-intensity industrial zoning It’s meant for full-scale industrial activity with broader permitted uses w/ fewer restrictions | ||
| Price | $205,456 CAD |
| Price Per Bed | $205,456 CAD |
| Sale Type | Investment or Owner User |
| Property Type | Health Care |
| Property Subtype | Rehabilitation Center |
| Building Class | C |
| Building Size | 4,125 SF |
| No. Beds | 1 |
| No. Stories | 1 |
| Year Built | 1991 |
| Zoning | M-2 - M-2 in Kenbridge = highest-intensity industrial zoning It’s meant for full-scale industrial activity with broader permitted uses w/ fewer restrictions |
Room Mix Information
| Description | No. Beds |
|---|---|
| - | 2 |
1 1
Not walkable
10/100
Exceptionally drivable
90/100
Not bikeable
10/100
1 of 51
Videos
Matterport 3D Exterior
Matterport 3D Tour
Photos
Street View
Street
Map
1 of 1
Presented by
101 Lea Rd
Already a member? Log In
Hmm, there seems to have been an error sending your message. Please try again.
Thanks! Your message was sent.
