Your email has been sent.
10150 York Rd 178,286 SF 62% Leased Office Building Hunt Valley, MD 21030 For Sale



Executive Summary
- Value-Add Opportunity
- Main & Main Location
- Future Development Potential
Property Facts
Amenities
- Natural Light
Major Tenants Click Here to Access
- Tenant
- Industry
- SF Occupied
- Rent/SF
- Lease End
Founded in 1982, Diamond Comic Distributors resides at the Nexus of Comics and Pop-Culture with a multi-channel platform of publishing, marketing and fulfillment services, coupled with an unparalleled global distribution network for its retailers, publishers and vendors. What started as one man’s hobby, with only a single warehouse and 17 retail customers, has evolved into the Diamond of today: the world’s largest distributor of English-language comics, graphic novels and pop-culture related merchandise. Their mission is simple: to provide their wholesale customers the best in products, price, and personalized service. That's why they bring their customers the merchandise they want at a fair price and deliver it to them quickly, accurately and reliably.
RT Specialty is a wholesale insurance brokerage firm that provides specialized risk management and insurance solutions to retail agents and brokers. The company focuses on complex and hard-to-place risks across multiple sectors, including property, casualty, professional liability, transportation, and environmental coverage. RT Specialty operates as part of Ryan Specialty, a global organization serving the wholesale distribution and underwriting management markets. The firm leverages its expertise to deliver customized insurance programs, access to specialty carriers, and innovative risk transfer strategies. Its services include binding authority, brokerage, and program administration, enabling clients to address unique exposures and regulatory requirements. RT Specialty maintains a nationwide presence through numerous offices, supporting a broad network of retail partners. The company continues to expand its capabilities through strategic acquisitions and organic growth.
| Tenant | Industry | SF Occupied | Rent/SF | Lease End | ||
|
Retailer | - | - | Jan 0000 | ||
|
Finance and Insurance | - | - | Jan 0000 |
Space Availability
- Space
- Size
- Space Use
- Build-Out
- Available
- 3rd Fl-Ste 310
- 7,512 SF
- Office
- -
- Now
- 3rd Fl-Ste 320
- 13,538 SF
- Office
- -
- Now
- 4th Fl-Ste 409
- 5,614 SF
- Office
- -
- Now
- 4th Fl-Ste 410
- 3,965 SF
- Office
- -
- Now
| Space | Size | Space Use | Build-Out | Available |
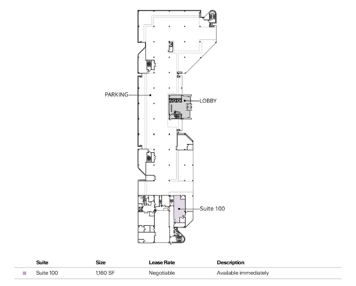
| 1st Fl-Ste 100 | 1,610 SF | Office | - | Now |
| 2nd Fl-Ste 250 | 7,565 SF | Office | - | Now |
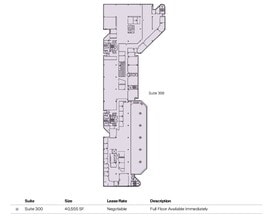
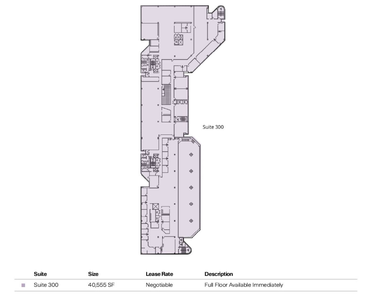
| 3rd Fl-Ste 300 | 19,505 SF | Office | - | Now |
| 3rd Fl-Ste 310 | 7,512 SF | Office | - | Now |
| 3rd Fl-Ste 320 | 13,538 SF | Office | - | Now |
| 4th Fl-Ste 400 | 8,227 SF | Office | - | Now |
| 4th Fl-Ste 409 | 5,614 SF | Office | - | Now |
| 4th Fl-Ste 410 | 3,965 SF | Office | - | Now |
1st Fl-Ste 100
| Size |
| 1,610 SF |
| Space Use |
| Office |
| Build-Out |
| - |
| Available |
| Now |
2nd Fl-Ste 250
| Size |
| 7,565 SF |
| Space Use |
| Office |
| Build-Out |
| - |
| Available |
| Now |
3rd Fl-Ste 300
| Size |
| 19,505 SF |
| Space Use |
| Office |
| Build-Out |
| - |
| Available |
| Now |
3rd Fl-Ste 310
| Size |
| 7,512 SF |
| Space Use |
| Office |
| Build-Out |
| - |
| Available |
| Now |
3rd Fl-Ste 320
| Size |
| 13,538 SF |
| Space Use |
| Office |
| Build-Out |
| - |
| Available |
| Now |
4th Fl-Ste 400
| Size |
| 8,227 SF |
| Space Use |
| Office |
| Build-Out |
| - |
| Available |
| Now |
4th Fl-Ste 409
| Size |
| 5,614 SF |
| Space Use |
| Office |
| Build-Out |
| - |
| Available |
| Now |
4th Fl-Ste 410
| Size |
| 3,965 SF |
| Space Use |
| Office |
| Build-Out |
| - |
| Available |
| Now |
1st Fl-Ste 100
| Size | 1,610 SF |
| Space Use | Office |
| Build-Out | - |
| Available | Now |
2nd Fl-Ste 250
| Size | 7,565 SF |
| Space Use | Office |
| Build-Out | - |
| Available | Now |
3rd Fl-Ste 300
| Size | 19,505 SF |
| Space Use | Office |
| Build-Out | - |
| Available | Now |
4th Fl-Ste 400
| Size | 8,227 SF |
| Space Use | Office |
| Build-Out | - |
| Available | Now |
Property Taxes
| Parcel Number | 08-2300002562 | Improvements Assessment | $16,118,615 CAD |
| Land Assessment | $7,934,274 CAD | Total Assessment | $24,052,889 CAD |
Property Taxes
Presented by
10150 York Rd
Hmm, there seems to have been an error sending your message. Please try again.
Thanks! Your message was sent.









