Log In/Sign Up
Your email has been sent.
Jericho 5+ Acres M-2 1019 Jericho Rd 18,128 SF 100% Leased Industrial Building Aurora, IL 60506 $5,538,000 CAD ($305.49 CAD/SF)



INVESTMENT HIGHLIGHTS
- While currently leased for school bus operations, the land has potential for other industrial uses or redevelopment in the future.
- Zoning (M-2): The M-2 zoning for general manufacturing
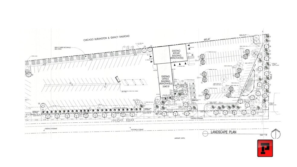
- Land Size: +/- 5 Acres of land is a significant asset, especially for parking, storage, and potential future expansion.
EXECUTIVE SUMMARY
Property Condition and Features
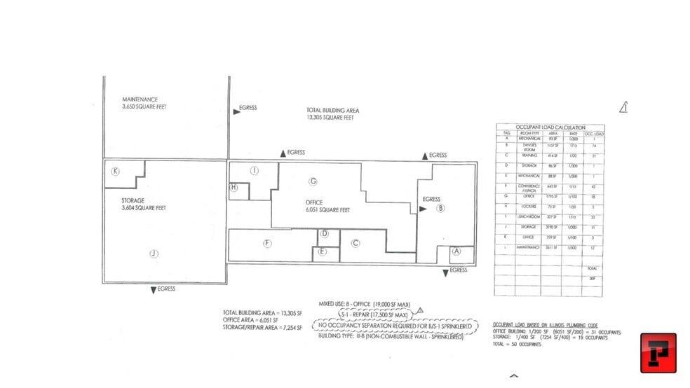
There is a office structure, terminal facility, and maintenance shop (totaling 18,128 sq ft)
Land Size: +/- 5 Acres of land is a significant asset, especially for parking, storage, and potential future expansion.
Zoning (M-2): The M-2 zoning for general manufacturing is generally considered favorable for industrial uses, but understanding the specific permitted and conditional uses in Aurora's ordinance is important for potential future flexibility.
While currently leased for school bus operations, the land has potential for other industrial uses or redevelopment in the future.
The information provided herein was obtained from sources believed reliable; however, Peter J. Poulos Real Estate makes no guarantees, warranties or representations as to the completeness or accuracy thereof. The presentation of this property is submitted subject to errors, omissions, change of price or conditions, prior sale or lease, or withdrawal without notice.
The property is currently leased please DO NOT DISTURB THE TENANTS.
There is a office structure, terminal facility, and maintenance shop (totaling 18,128 sq ft)
Land Size: +/- 5 Acres of land is a significant asset, especially for parking, storage, and potential future expansion.
Zoning (M-2): The M-2 zoning for general manufacturing is generally considered favorable for industrial uses, but understanding the specific permitted and conditional uses in Aurora's ordinance is important for potential future flexibility.
While currently leased for school bus operations, the land has potential for other industrial uses or redevelopment in the future.
The information provided herein was obtained from sources believed reliable; however, Peter J. Poulos Real Estate makes no guarantees, warranties or representations as to the completeness or accuracy thereof. The presentation of this property is submitted subject to errors, omissions, change of price or conditions, prior sale or lease, or withdrawal without notice.
The property is currently leased please DO NOT DISTURB THE TENANTS.
DATA ROOM Click Here to Access
- Market Information
- Investigations
PROPERTY FACTS
| Price | $5,538,000 CAD | Rentable Building Area | 18,128 SF |
| Price Per SF | $305.49 CAD | No. Stories | 1 |
| Sale Type | Investment or Owner User | Year Built | 1957 |
| Property Type | Industrial | Parking Ratio | 2.48/1,000 SF |
| Property Subtype | Warehouse | Clear Ceiling Height | 13’ |
| Building Class | C | No. Drive In / Grade-Level Doors | 6 |
| Lot Size | 5.20 AC | ||
| Zoning | M-2, Aurora - Zoning (M-2): The M-2 zoning for general manufacturing is generally considered favorable for industrial uses any use should be confirmed. | ||
| Price | $5,538,000 CAD |
| Price Per SF | $305.49 CAD |
| Sale Type | Investment or Owner User |
| Property Type | Industrial |
| Property Subtype | Warehouse |
| Building Class | C |
| Lot Size | 5.20 AC |
| Rentable Building Area | 18,128 SF |
| No. Stories | 1 |
| Year Built | 1957 |
| Parking Ratio | 2.48/1,000 SF |
| Clear Ceiling Height | 13’ |
| No. Drive In / Grade-Level Doors | 6 |
| Zoning | M-2, Aurora - Zoning (M-2): The M-2 zoning for general manufacturing is generally considered favorable for industrial uses any use should be confirmed. |
UTILITIES
- Water - City
- Sewer - City
1 1
PROPERTY TAXES
| Parcel Numbers | Improvements Assessment | $627,822 CAD | |
| Land Assessment | $231,410 CAD | Total Assessment | $859,232 CAD |
PROPERTY TAXES
Parcel Numbers
Land Assessment
$231,410 CAD
Improvements Assessment
$627,822 CAD
Total Assessment
$859,232 CAD
1 of 4
VIDEOS
MATTERPORT 3D EXTERIOR
MATTERPORT 3D TOUR
PHOTOS
STREET VIEW
STREET
MAP
1 of 1
Presented by
Jericho 5+ Acres M-2 | 1019 Jericho Rd
Already a member? Log In
Hmm, there seems to have been an error sending your message. Please try again.
Thanks! Your message was sent.
