Log In/Sign Up
Your email has been sent.
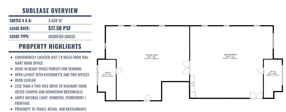
Sublease Highlights
- Conveniently located just 1.8 miles from Walmart Home Office.
- Ample natural light, windows, storefront/frontage.
- Move-in ready space perfect for vendors.
- Less than a two-mile drive to Walmart Home Campus and Downtown Bentonville.
- Proximity to trails, retail, and restaurant.
- Open layout with kitchenette, two offices and dock lever.
All Available Space(1)
Display Rental Rate as
- Space
- Size
- Term
- Rental Rate
- Space Use
- Build-Out
- Available
Move-in ready space perfect for vendors. Open layout with kitchenette and two offices. Dock lever.
- Sublease space available from current tenant
- Fully Built-Out as Standard Office
- 2 Private Offices
- Listed rate may not include certain utilities, building services and property expenses
- Mostly Open Floor Plan Layout
- Space is in Excellent Condition
| Space | Size | Term | Rental Rate | Space Use | Build-Out | Available |
| 1st Floor, Ste 4 & 6 | 3,438 SF | Negotiable | $23.87 CAD/SF/YR $1.99 CAD/SF/MO $82,080 CAD/YR $6,840 CAD/MO | Office | Full Build-Out | Now |
1st Floor, Ste 4 & 6
| Size |
| 3,438 SF |
| Term |
| Negotiable |
| Rental Rate |
| $23.87 CAD/SF/YR $1.99 CAD/SF/MO $82,080 CAD/YR $6,840 CAD/MO |
| Space Use |
| Office |
| Build-Out |
| Full Build-Out |
| Available |
| Now |
1st Floor, Ste 4 & 6
| Size | 3,438 SF |
| Term | Negotiable |
| Rental Rate | $23.87 CAD/SF/YR |
| Space Use | Office |
| Build-Out | Full Build-Out |
| Available | Now |
Move-in ready space perfect for vendors. Open layout with kitchenette and two offices. Dock lever.
- Sublease space available from current tenant
- Listed rate may not include certain utilities, building services and property expenses
- Fully Built-Out as Standard Office
- Mostly Open Floor Plan Layout
- 2 Private Offices
- Space is in Excellent Condition
Features and Amenities
- Signage
Property Facts
Building Type
Office
Year Built
2003
Building Height
1 Story
Building Size
6,656 SF
Building Class
C
Typical Floor Size
6,656 SF
Parking
15 Surface Parking Spaces
1 1
Fairly walkable
40/100
Exceptionally drivable
90/100
Fairly bikeable
50/100
1 of 19
Videos
Matterport 3D Exterior
Matterport 3D Tour
Photos
Street View
Street
Map
1 of 1
Presented by
102 Executive Dr
Already a member? Log In
Hmm, there seems to have been an error sending your message. Please try again.
Thanks! Your message was sent.



