Log In/Sign Up
Your email has been sent.
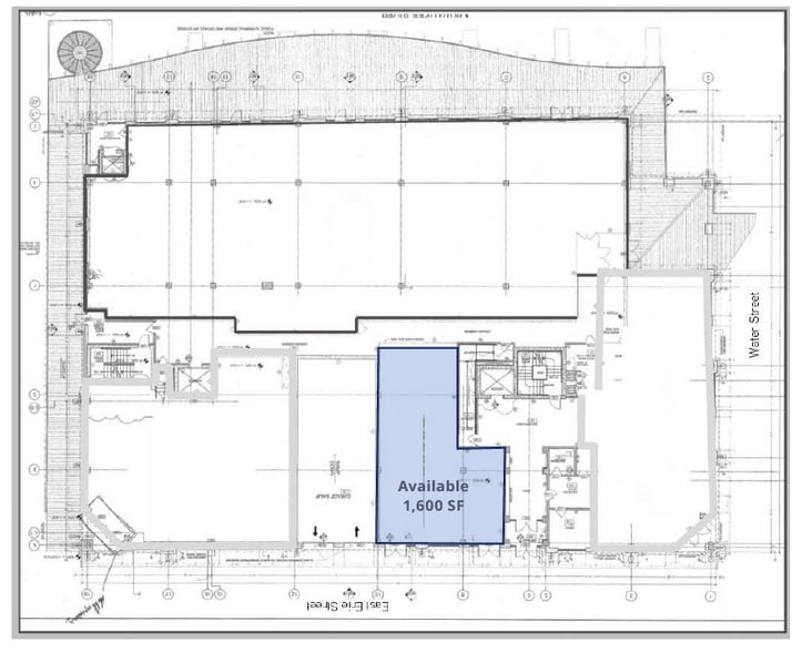
102 N Water St
Milwaukee, WI 53202
River Renaissance · Retail Property For Lease


Highlights
- Densely populated with strong walkability.
- Close proximity to Skylight Theater, MIAD, The Kimpton, Milwaukee Public Market and more.
Property Facts
| Total Space Available | 1,600 SF | Apartment Style | Mid-Rise |
| No. Units | 79 | Building Size | 80,000 SF |
| Property Type | Multifamily | Year Built | 2007 |
| Property Subtype | Apartment |
| Total Space Available | 1,600 SF |
| No. Units | 79 |
| Property Type | Multifamily |
| Property Subtype | Apartment |
| Apartment Style | Mid-Rise |
| Building Size | 80,000 SF |
| Year Built | 2007 |
1 of 10
Videos
Matterport 3D Exterior
Matterport 3D Tour
Photos
Street View
Street
Map
