Your email has been sent.
Flexible office space / After school activity 10247 Warren Pky 1,500 - 5,000 SF of Office Space Available in Frisco, TX 75035



Highlights
- Available: ±5000.00 Sqft
- High quality and move in ready build out which includes specialized classrooms, and indoor play gym
- Spacious and well-maintained outdoor playground
- Strategically situated in the rapidly growing and affluent communities of Frisco, TX surrounded by high income residential neighborhoods
- Renovated in 2018, with a new roof from 2022
- Ample parking for staff and parents
Space Availability (1)
Display Rental Rate as
- Space
- Size
- Term
- Rental Rate
- Rent Type
| Space | Size | Term | Rental Rate | Rent Type | ||
| 1st Floor | 1,500-5,000 SF | Negotiable | $40.97 CAD/SF/YR $3.41 CAD/SF/MO $204,849 CAD/YR $17,071 CAD/MO | Triple Net (NNN) |
1st Floor
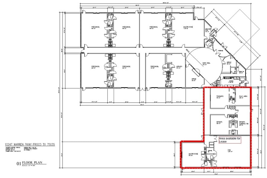
Rooms Breakdown: Gym: 1,250 SF Multipurpose Room: 600 SF Infants Sleeping Room: 420 SF Infants Room: 408 SF Toddlers Room: 415 SF Play Area: 280 SF Washroom attached to all the rooms. Flexible Layout: Open design allows easy customization Private Access: Separate entry/exit for independence and privacy Turnkey Ready: Minimal build-out required Parking & Access: Convenient parking and safe drop-off area Location: High-traffic Frisco corridor with strong visibility and growing demographics
- Lease rate does not include utilities, property expenses or building services
- Fully Built-Out as Standard Office
- Office intensive layout
- Space is in Excellent Condition
Rent Types
The rent amount and type that the tenant (lessee) will be responsible to pay to the landlord (lessor) throughout the lease term is negotiated prior to both parties signing a lease agreement. The rent type will vary depending upon the services provided. For example, triple net rents are typically lower than full service rents due to additional expenses the tenant is required to pay in addition to the base rent. Contact the listing broker for a full understanding of any associated costs or additional expenses for each rent type.
1. Full Service: A rental rate that includes normal building standard services as provided by the landlord within a base year rental.
2. Double Net (NN): Tenant pays for only two of the building expenses; the landlord and tenant determine the specific expenses prior to signing the lease agreement.
3. Triple Net (NNN): A lease in which the tenant is responsible for all expenses associated with their proportional share of occupancy of the building.
4. Modified Gross: Modified Gross is a general type of lease rate where typically the tenant will be responsible for their proportional share of one or more of the expenses. The landlord will pay the remaining expenses. See the below list of common Modified Gross rental rate structures: 4. Plus All Utilities: A type of Modified Gross Lease where the tenant is responsible for their proportional share of utilities in addition to the rent. 4. Plus Cleaning: A type of Modified Gross Lease where the tenant is responsible for their proportional share of cleaning in addition to the rent. 4. Plus Electric: A type of Modified Gross Lease where the tenant is responsible for their proportional share of the electrical cost in addition to the rent. 4. Plus Electric & Cleaning: A type of Modified Gross Lease where the tenant is responsible for their proportional share of the electrical and cleaning cost in addition to the rent. 4. Plus Utilities and Char: A type of Modified Gross Lease where the tenant is responsible for their proportional share of the utilities and cleaning cost in addition to the rent. 4. Industrial Gross: A type of Modified Gross lease where the tenant pays one or more of the expenses in addition to the rent. The landlord and tenant determine these prior to signing the lease agreement.
5. Tenant Electric: The landlord pays for all services and the tenant is responsible for their usage of lights and electrical outlets in the space they occupy.
6. Negotiable or Upon Request: Used when the leasing contact does not provide the rent or service type.
7. TBD: To be determined; used for buildings for which no rent or service type is known, commonly utilized when the buildings are not yet built.
Select Tenants at Flexible office space / After school activity
- Tenant
- Description
- US Locations
- Reach
- Pinnacle Montessori
- Educational Services
- -
- -
| Tenant | Description | US Locations | Reach |
| Pinnacle Montessori | Educational Services | - | - |
Property Facts
| Total Space Available | 5,000 SF | Property Subtype | Day Care Center |
| Min. Divisible | 1,500 SF | Gross Leasable Area | 5,000 SF |
| Property Type | Retail | Year Built | 2003 |
| Total Space Available | 5,000 SF |
| Min. Divisible | 1,500 SF |
| Property Type | Retail |
| Property Subtype | Day Care Center |
| Gross Leasable Area | 5,000 SF |
| Year Built | 2003 |
About the Property
Discover a prime leasing opportunity at 10247 Warren Pkwy, Frisco, TX 75035. This 17,500 sq ft purpose-built facility offers a dedicated wing with separate entry/exit, featuring a large open gym, multipurpose room, infants and toddlers rooms, and a play area, each with attached restrooms having 5000 sq ft available for lease. The space is highly flexible, ideal for medical offices, therapy centers, daycare extensions, tutoring programs, co-working suites, or other specialty educational programs. The wing can be leased as a single-tenant unit or divided to accommodate multiple tenants, making it perfect for organizations of any size. Located on the east side of the building, the rest of the property will soon host a new Pinnacle Montessori Daycare, creating a dynamic, child-focused environment. With turnkey-ready condition, ample parking, separate access, and high visibility in a growing Frisco corridor, the Frisco Adaptive Wing offers a versatile, move-in-ready space in one of North Texas’ most desirable markets.
Nearby Major Retailers
Presented by
Flexible office space / After school activity | 10247 Warren Pky
Hmm, there seems to have been an error sending your message. Please try again.
Thanks! Your message was sent.



