Log In/Sign Up
Your email has been sent.
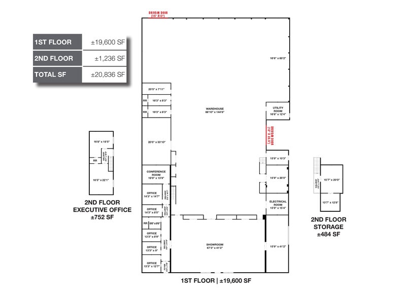
103 Railroad Avenue SW 20,836 SF 100% Leased Industrial Building Brunson, SC 29911 $746,644 CAD ($35.83 CAD/SF)



Investment Highlights
- ±20,836 SF warehouse with ample office and showroom space
- ±2,264 SF office space including executive office on 2nd floor
- (1) 12’ x 22.5’ & (1) 15’ x 12’ drive-in doors
- ±18,572 SF warehouse/showroom/storage space
- ±22.5' clear height & clear span column spacing
- 800 Amp | 3-Phase power
Executive Summary
Positioned in Brunson, SC, 103 Railroad Avenue SW offers a versatile ±20,836 SF industrial facility on ±0.7 acres, well-suited for manufacturing, warehousing, or distribution operations. The building features ±22.5’ clear height, large showroom at the front of the building, a large clear span warehouse area in the center and rear of the building, 800-amp 3-phase power, and two drive-in doors (12’ x 22.5’ & 15' x 12’) for efficient access and functionality. Office space includes ±1,512 SF on the first floor and a ±752 SF second-floor executive office suite, providing a balanced mix of administrative and operational areas. Served by Dominion Energy and Lowcountry Regional Water System utilities, this property is available for $539,000, presenting a cost-effective opportunity for owner-users or investors.
Property Facts
Amenities
- Reception
- Air Conditioning
- Breakroom
Utilities
- Lighting - Fluorescent
- Gas - Natural
- Water
- Sewer
1 1
Not walkable
10/100
Exceptionally drivable
100/100
Somewhat bikeable
30/100
Property Taxes
| Parcel Number | 079-02-13-003 | Improvements Assessment | $9,974 CAD |
| Land Assessment | $1,219 CAD | Total Assessment | $11,193 CAD |
Property Taxes
Parcel Number
079-02-13-003
Land Assessment
$1,219 CAD
Improvements Assessment
$9,974 CAD
Total Assessment
$11,193 CAD
1 of 15
Videos
Matterport 3D Exterior
Matterport 3D Tour
Photos
Street View
Street
Map
1 of 1
Presented by
103 Railroad Avenue SW
Already a member? Log In
Hmm, there seems to have been an error sending your message. Please try again.
Thanks! Your message was sent.
