Log In/Sign Up
Your email has been sent.
1038-1040 Jacarandah Dr - 1040 Jacarandah Drive Newmarket 1.1 Acres of Residential Land Offered at $6,250,000 CAD in Newmarket, ON L3Y 3G8



Executive Summary
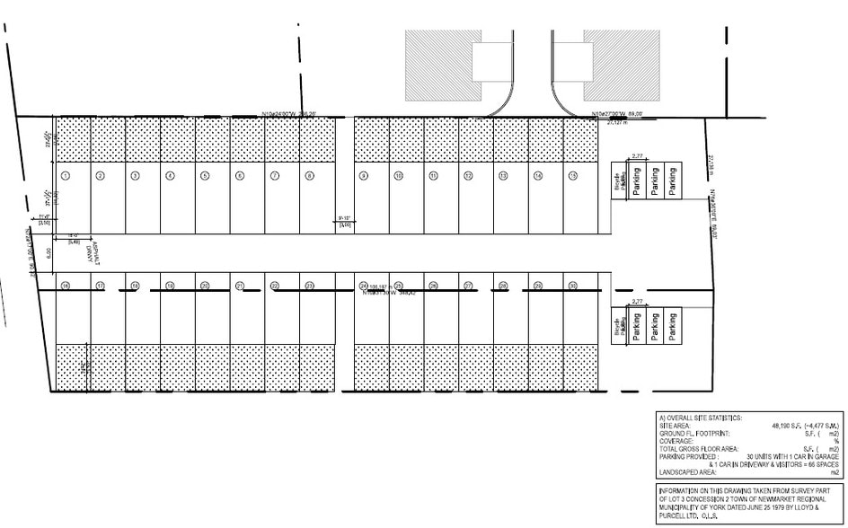
Power of Sale opportunity. Exceptional opportunity to acquire a residential development site in the heart of Newmarket. Draft plan approved for a 23-unit low-rise project (20 semi-detached and 3 detached homes) with 46,091 SF GFA. Can be converted to rentals using ARU Bylaws, with the potential for 51 units. Zoning By-law Amendment approved and Draft Plan of Subdivision approved subject to conditions. Situated within an established low-density neighbourhood with limited remaining development parcels. Ideally located just minutes to Newmarket GO, East Gwillimbury GO, and the Hwy 404/Davis Dr. interchange, offering excellent commuter access. For a limited time, Vendor is offering to cover Land Transfer Tax and provide a 70% VTB to qualified purchasers, including 0% interest in year one. Full address: 1038-1040 Jacarandah Drive.
Property Facts
| Price | $6,250,000 CAD | Property Type | Land |
| Sale Type | Investment | Property Subtype | Residential |
| No. Lots | 1 | Total Lot Size | 1.10 AC |
| Zoning | ICBL | ||
| Price | $6,250,000 CAD |
| Sale Type | Investment |
| No. Lots | 1 |
| Property Type | Land |
| Property Subtype | Residential |
| Total Lot Size | 1.10 AC |
| Zoning | ICBL |
1 Lot Available
Lot
| Price | $6,250,000 CAD | Lot Size | 1.10 AC |
| Price Per AC | $5,681,818.18 CAD |
| Price | $6,250,000 CAD |
| Price Per AC | $5,681,818.18 CAD |
| Lot Size | 1.10 AC |
1.1 acres approved for 23 unit low rise project.
1 1
Fairly walkable
50/100
Exceptionally drivable
100/100
Limited public transit
30/100
Fairly bikeable
50/100
1 of 6
Videos
Matterport 3D Exterior
Matterport 3D Tour
Photos
Street View
Street
Map
1 of 1
Presented by
1038-1040 Jacarandah Dr - 1040 Jacarandah Drive Newmarket
Already a member? Log In
Hmm, there seems to have been an error sending your message. Please try again.
Thanks! Your message was sent.
