Log In/Sign Up
Your email has been sent.
104-110 E 40th St
New York, NY 10016
Grand Park Condominiums · Office Property For Sale
·
52,909 SF


Investment Highlights
- Modernized attended lobby with elevators.
- All office uses will be considered.
Executive Summary
Renovated building with 24 hour security. Two blocks south of Grand Central Station.
1 Unit Available
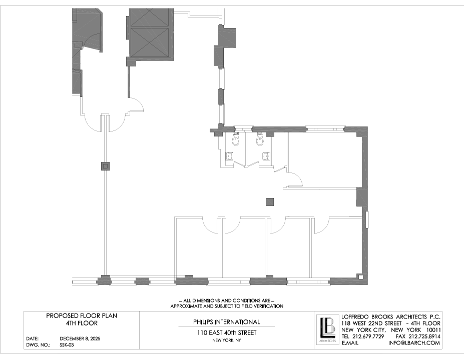
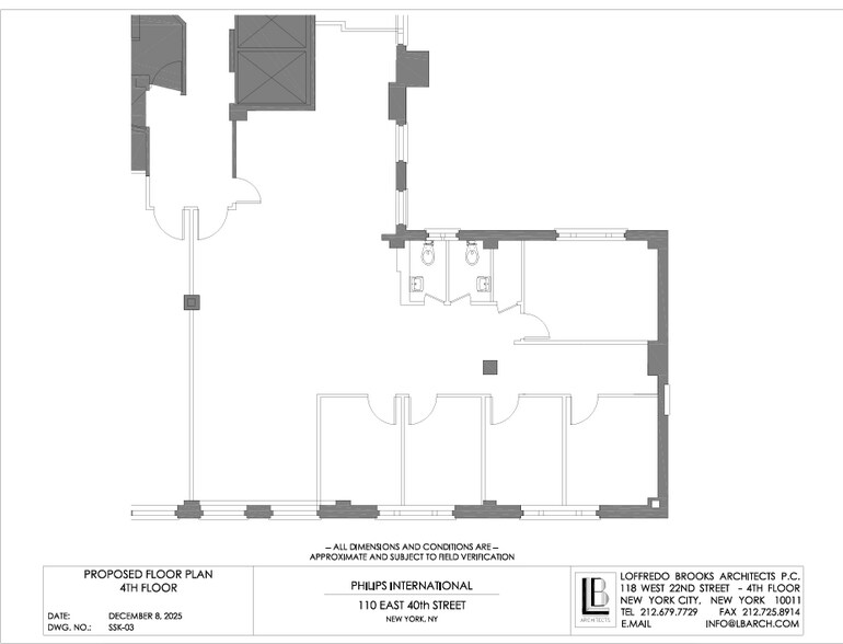
Unit 402
| Unit Size | 2,430 SF | Sale Type | Investment or Owner User |
| Condo Use | Office/Medical |
| Unit Size | 2,430 SF |
| Condo Use | Office/Medical |
| Sale Type | Investment or Owner User |
Sale Notes
This is currently built medical office space with four exam rooms with sinks, reception, waiting area, file area, storage room, two private restroom, doctors office and two workstations.
Floor Plan
Floor Elevator Cabs
Interior Photo
Interior Photo
Interior Photo
Interior Photo
Interior Photo
Interior Photo
Interior Photo
1 of 9
Videos
Matterport 3D Exterior
Matterport 3D Tour
Photos
Street View
Street
Map
Property Facts
The following property facts and amenities apply to the entire building. Details for individual condo units may vary and are listed in the unit information above.
| Total Building Size | 52,909 SF | Typical Floor Size | 5,878 SF |
| Property Type | Office (Condo) | Year Built | 1915 |
| Property Subtype | Medical | Lot Size | 0.22 AC |
| Building Class | B | Parking Ratio | 10/1,000 SF |
| Floors | 9 | ||
| Zoning | C5-2.5 - Central Commercial District. | ||
| Total Building Size | 52,909 SF |
| Property Type | Office (Condo) |
| Property Subtype | Medical |
| Building Class | B |
| Floors | 9 |
| Typical Floor Size | 5,878 SF |
| Year Built | 1915 |
| Lot Size | 0.22 AC |
| Parking Ratio | 10/1,000 SF |
| Zoning | C5-2.5 - Central Commercial District. |
Amenities
- 24 Hour Access
- Metro/Subway
- Kitchen
- Accent Lighting
- Reception
- Central Heating
- Natural Light
- Partitioned Offices
- Reception
- Recessed Lighting
- Drop Ceiling
- Air Conditioning
1 of 21
Videos
Matterport 3D Exterior
Matterport 3D Tour
Photos
Street View
Street
Map

