Your email has been sent.
104 E Main St 944 - 13,224 SF of Office Space Available in Bozeman, MT 59715



Highlights
- Located in the heart of downtown
- Variety of sizes and layouts to fit many needs
- Complete renovation underway to become the premier office building Downtown
All Available Spaces(6)
Display Rental Rate as
- Space
- Size
- Term
- Rental Rate
- Space Use
- Build-Out
- Available
Suite 3A is located on the third floor, and will have five private offices, a reception area and shared restrooms.
- Lease rate does not include utilities, property expenses or building services
- Fits 7 - 20 People
- Space is in Excellent Condition
- Reception area
- Fully Built-Out as Standard Office
- 5 Private Offices
- Reception Area
Suite 3B is located on the third floor, and will have four private offices, a reception area, bullpen and open space for conference room or additional work space. Shared restrooms.
- Lease rate does not include utilities, property expenses or building services
- Mostly Open Floor Plan Layout
- 4 Private Offices
- Space is in Excellent Condition
- bullpen
- Fully Built-Out as Standard Office
- Fits 6 - 17 People
- 1 Conference Room
- Reception Area
Suite 3D is located on the third floor, and will have two private offices and common restrooms.
- Lease rate does not include utilities, property expenses or building services
- Fits 3 - 8 People
- Space is in Excellent Condition
- Fully Built-Out as Standard Office
- 2 Private Offices
- two private offices
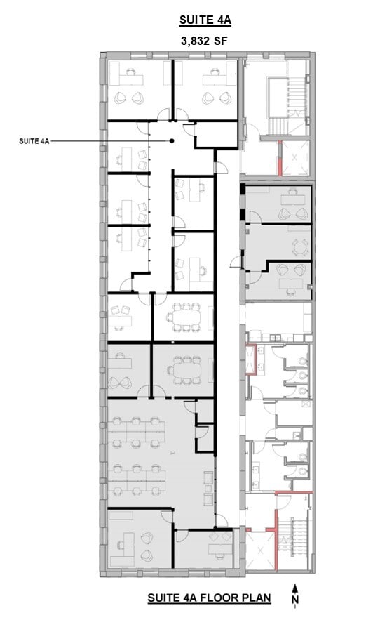
Suite 4A is located on the fourth floor, and will have nine private offices, a reception area and common restrooms.
- Lease rate does not include utilities, property expenses or building services
- Fits 10 - 31 People
- Space is in Excellent Condition
- Reception area
- Fully Built-Out as Standard Office
- 9 Private Offices
- Reception Area
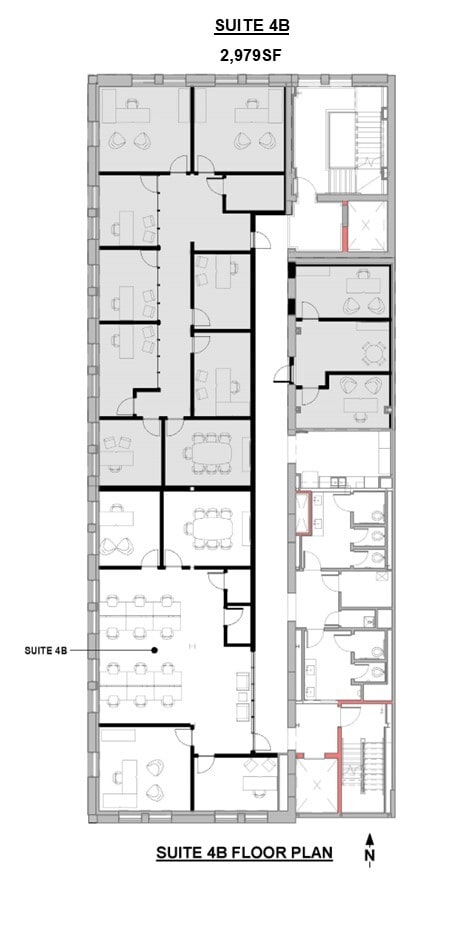
Suite 4B is located on the fourth floor, and will have four private offices, a large open space and common restrooms.
- Lease rate does not include utilities, property expenses or building services
- Open Floor Plan Layout
- 4 Private Offices
- large open space
- Fully Built-Out as Standard Office
- Fits 8 - 24 People
- Space is in Excellent Condition
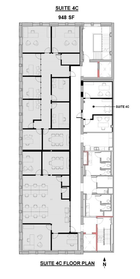
Suite 4C is located on the fourth floor, and will have one private office plus small open space and shared restrooms.
- Lease rate does not include utilities, property expenses or building services
- Fits 3 - 8 People
- Space is in Excellent Condition
- Fully Built-Out as Standard Office
- 1 Private Office
- small open space
| Space | Size | Term | Rental Rate | Space Use | Build-Out | Available |
| 3rd Floor, Ste 3A | 2,473 SF | Negotiable | $48.08 CAD/SF/YR $4.01 CAD/SF/MO $118,903 CAD/YR $9,909 CAD/MO | Office | Full Build-Out | Now |
| 3rd Floor, Ste 3B | 2,048 SF | Negotiable | $48.08 CAD/SF/YR $4.01 CAD/SF/MO $98,469 CAD/YR $8,206 CAD/MO | Office | Full Build-Out | Now |
| 3rd Floor, Ste 3D | 944 SF | Negotiable | $48.08 CAD/SF/YR $4.01 CAD/SF/MO $45,388 CAD/YR $3,782 CAD/MO | Office | Full Build-Out | Now |
| 4th Floor, Ste 4A | 3,832 SF | Negotiable | $48.08 CAD/SF/YR $4.01 CAD/SF/MO $184,245 CAD/YR $15,354 CAD/MO | Office | Full Build-Out | Now |
| 4th Floor, Ste 4B | 2,979 SF | Negotiable | $48.08 CAD/SF/YR $4.01 CAD/SF/MO $143,232 CAD/YR $11,936 CAD/MO | Office | Full Build-Out | Now |
| 4th Floor, Ste 4C | 948 SF | Negotiable | $48.08 CAD/SF/YR $4.01 CAD/SF/MO $45,580 CAD/YR $3,798 CAD/MO | Office | Full Build-Out | Now |
3rd Floor, Ste 3A
| Size |
| 2,473 SF |
| Term |
| Negotiable |
| Rental Rate |
| $48.08 CAD/SF/YR $4.01 CAD/SF/MO $118,903 CAD/YR $9,909 CAD/MO |
| Space Use |
| Office |
| Build-Out |
| Full Build-Out |
| Available |
| Now |
3rd Floor, Ste 3B
| Size |
| 2,048 SF |
| Term |
| Negotiable |
| Rental Rate |
| $48.08 CAD/SF/YR $4.01 CAD/SF/MO $98,469 CAD/YR $8,206 CAD/MO |
| Space Use |
| Office |
| Build-Out |
| Full Build-Out |
| Available |
| Now |
3rd Floor, Ste 3D
| Size |
| 944 SF |
| Term |
| Negotiable |
| Rental Rate |
| $48.08 CAD/SF/YR $4.01 CAD/SF/MO $45,388 CAD/YR $3,782 CAD/MO |
| Space Use |
| Office |
| Build-Out |
| Full Build-Out |
| Available |
| Now |
4th Floor, Ste 4A
| Size |
| 3,832 SF |
| Term |
| Negotiable |
| Rental Rate |
| $48.08 CAD/SF/YR $4.01 CAD/SF/MO $184,245 CAD/YR $15,354 CAD/MO |
| Space Use |
| Office |
| Build-Out |
| Full Build-Out |
| Available |
| Now |
4th Floor, Ste 4B
| Size |
| 2,979 SF |
| Term |
| Negotiable |
| Rental Rate |
| $48.08 CAD/SF/YR $4.01 CAD/SF/MO $143,232 CAD/YR $11,936 CAD/MO |
| Space Use |
| Office |
| Build-Out |
| Full Build-Out |
| Available |
| Now |
4th Floor, Ste 4C
| Size |
| 948 SF |
| Term |
| Negotiable |
| Rental Rate |
| $48.08 CAD/SF/YR $4.01 CAD/SF/MO $45,580 CAD/YR $3,798 CAD/MO |
| Space Use |
| Office |
| Build-Out |
| Full Build-Out |
| Available |
| Now |
3rd Floor, Ste 3A
| Size | 2,473 SF |
| Term | Negotiable |
| Rental Rate | $48.08 CAD/SF/YR |
| Space Use | Office |
| Build-Out | Full Build-Out |
| Available | Now |
Suite 3A is located on the third floor, and will have five private offices, a reception area and shared restrooms.
- Lease rate does not include utilities, property expenses or building services
- Fully Built-Out as Standard Office
- Fits 7 - 20 People
- 5 Private Offices
- Space is in Excellent Condition
- Reception Area
- Reception area
3rd Floor, Ste 3B
| Size | 2,048 SF |
| Term | Negotiable |
| Rental Rate | $48.08 CAD/SF/YR |
| Space Use | Office |
| Build-Out | Full Build-Out |
| Available | Now |
Suite 3B is located on the third floor, and will have four private offices, a reception area, bullpen and open space for conference room or additional work space. Shared restrooms.
- Lease rate does not include utilities, property expenses or building services
- Fully Built-Out as Standard Office
- Mostly Open Floor Plan Layout
- Fits 6 - 17 People
- 4 Private Offices
- 1 Conference Room
- Space is in Excellent Condition
- Reception Area
- bullpen
3rd Floor, Ste 3D
| Size | 944 SF |
| Term | Negotiable |
| Rental Rate | $48.08 CAD/SF/YR |
| Space Use | Office |
| Build-Out | Full Build-Out |
| Available | Now |
Suite 3D is located on the third floor, and will have two private offices and common restrooms.
- Lease rate does not include utilities, property expenses or building services
- Fully Built-Out as Standard Office
- Fits 3 - 8 People
- 2 Private Offices
- Space is in Excellent Condition
- two private offices
4th Floor, Ste 4A
| Size | 3,832 SF |
| Term | Negotiable |
| Rental Rate | $48.08 CAD/SF/YR |
| Space Use | Office |
| Build-Out | Full Build-Out |
| Available | Now |
Suite 4A is located on the fourth floor, and will have nine private offices, a reception area and common restrooms.
- Lease rate does not include utilities, property expenses or building services
- Fully Built-Out as Standard Office
- Fits 10 - 31 People
- 9 Private Offices
- Space is in Excellent Condition
- Reception Area
- Reception area
4th Floor, Ste 4B
| Size | 2,979 SF |
| Term | Negotiable |
| Rental Rate | $48.08 CAD/SF/YR |
| Space Use | Office |
| Build-Out | Full Build-Out |
| Available | Now |
Suite 4B is located on the fourth floor, and will have four private offices, a large open space and common restrooms.
- Lease rate does not include utilities, property expenses or building services
- Fully Built-Out as Standard Office
- Open Floor Plan Layout
- Fits 8 - 24 People
- 4 Private Offices
- Space is in Excellent Condition
- large open space
4th Floor, Ste 4C
| Size | 948 SF |
| Term | Negotiable |
| Rental Rate | $48.08 CAD/SF/YR |
| Space Use | Office |
| Build-Out | Full Build-Out |
| Available | Now |
Suite 4C is located on the fourth floor, and will have one private office plus small open space and shared restrooms.
- Lease rate does not include utilities, property expenses or building services
- Fully Built-Out as Standard Office
- Fits 3 - 8 People
- 1 Private Office
- Space is in Excellent Condition
- small open space
Property Overview
The National Building is located on the corner of East Main and Black Street, right in the middle of Downtown Bozeman. This historic Bozeman landmark was built in 1920 for Commercial National Bank, and when complete, US Bank will occupy the first floor and a portion of the second floor. A major renovation is currently underway to bring the exterior to its original look, and the interior is being completely renovated. When completed in Ssummer 2024, The National will be the premier class A office building in Downtown Bozeman. The 4 additional floors of offices will feature a variety of layouts and sizes to fit the needs of many different users with great access to all of the amenities Downtown Bozeman has to offer. The basement will feature a common conference room, tenant fitness center, and tenant storage.
Property Facts
Presented by
104 E Main St
Hmm, there seems to have been an error sending your message. Please try again.
Thanks! Your message was sent.
















