Your email has been sent.
All Available Spaces(2)
Display Rental Rate as
- Space
- Size
- Term
- Rental Rate
- Space Use
- Build-Out
- Available
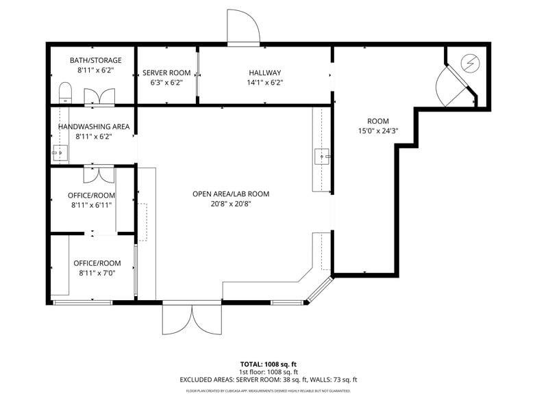
Suite 106 was previously utilized as a laboratory. The attached floorplan reflects the former layout, which is currently being opened up as the landlord removes walls to allow flexible reconfiguration for future tenant needs. Ideally situated between Loop 1604 and North Central Baptist Hospital, the property offers excellent visibility and accessibility for a variety of professional users. For those requiring additional space, Suite 108 is also available and may be combined. Reserved employee parking and ample customer parking are provided. Lease Breakdown: $20.00/SF+10.60NNN ($1,633.33/Month Base Rent + $865.67NNN = $2,499.00/Month)+$250/month for CPS Electric Bill.
- Lease rate does not include utilities, property expenses or building services
- Laboratory
- Space In Need of Renovation
- Wi-Fi Connectivity
Suite 108 offers a functional layout with a reception area, multiple private offices, a conference room, kitchenette, and single restroom. Reserved employee parking and ample customer parking are available. For those requiring additional or specialized space, Suite 106 is also available in the building and was previously used as a lab. The suite can be combined or reconfigured to accommodate tenant needs, subject to terms and approvals. Lease Breakdown: $20.00/sf/yr+10.60NNN/yr= ($2,583.33/Monthly Base Rent + $1,369.17 NNN = $3,952.50/Month) +$250/month for CPS Electric Bill
- Lease rate does not include utilities, property expenses or building services
- Central Air and Heating
- Wi-Fi Connectivity
- Natural Light
- Wheelchair Accessible
- Conference Rooms
- Reception Area
- Private Restrooms
- Smoke Detector
| Space | Size | Term | Rental Rate | Space Use | Build-Out | Available |
| 1st Floor, Ste 106 | 980 SF | 2-3 Years | $27.36 CAD/SF/YR $2.28 CAD/SF/MO $26,810 CAD/YR $2,234 CAD/MO | Office | - | Now |
| 1st Floor, Ste 108 | 1,550 SF | 2-3 Years | $27.36 CAD/SF/YR $2.28 CAD/SF/MO $42,403 CAD/YR $3,534 CAD/MO | Office | - | Now |
1st Floor, Ste 106
| Size |
| 980 SF |
| Term |
| 2-3 Years |
| Rental Rate |
| $27.36 CAD/SF/YR $2.28 CAD/SF/MO $26,810 CAD/YR $2,234 CAD/MO |
| Space Use |
| Office |
| Build-Out |
| - |
| Available |
| Now |
1st Floor, Ste 108
| Size |
| 1,550 SF |
| Term |
| 2-3 Years |
| Rental Rate |
| $27.36 CAD/SF/YR $2.28 CAD/SF/MO $42,403 CAD/YR $3,534 CAD/MO |
| Space Use |
| Office |
| Build-Out |
| - |
| Available |
| Now |
1st Floor, Ste 106
| Size | 980 SF |
| Term | 2-3 Years |
| Rental Rate | $27.36 CAD/SF/YR |
| Space Use | Office |
| Build-Out | - |
| Available | Now |
Suite 106 was previously utilized as a laboratory. The attached floorplan reflects the former layout, which is currently being opened up as the landlord removes walls to allow flexible reconfiguration for future tenant needs. Ideally situated between Loop 1604 and North Central Baptist Hospital, the property offers excellent visibility and accessibility for a variety of professional users. For those requiring additional space, Suite 108 is also available and may be combined. Reserved employee parking and ample customer parking are provided. Lease Breakdown: $20.00/SF+10.60NNN ($1,633.33/Month Base Rent + $865.67NNN = $2,499.00/Month)+$250/month for CPS Electric Bill.
- Lease rate does not include utilities, property expenses or building services
- Space In Need of Renovation
- Laboratory
- Wi-Fi Connectivity
1st Floor, Ste 108
| Size | 1,550 SF |
| Term | 2-3 Years |
| Rental Rate | $27.36 CAD/SF/YR |
| Space Use | Office |
| Build-Out | - |
| Available | Now |
Suite 108 offers a functional layout with a reception area, multiple private offices, a conference room, kitchenette, and single restroom. Reserved employee parking and ample customer parking are available. For those requiring additional or specialized space, Suite 106 is also available in the building and was previously used as a lab. The suite can be combined or reconfigured to accommodate tenant needs, subject to terms and approvals. Lease Breakdown: $20.00/sf/yr+10.60NNN/yr= ($2,583.33/Monthly Base Rent + $1,369.17 NNN = $3,952.50/Month) +$250/month for CPS Electric Bill
- Lease rate does not include utilities, property expenses or building services
- Conference Rooms
- Central Air and Heating
- Reception Area
- Wi-Fi Connectivity
- Private Restrooms
- Natural Light
- Smoke Detector
- Wheelchair Accessible
Property Overview
Located in the heart of Stone Oak/Sonterra, this professional medical office space offers prominent monument signage and excellent visibility. The well-established building sits at the corner of Stone Oak Parkway and Gallery Circle. Multiple medical tenants, such as Alamo Specialty Pharmacy and Stone Oak Urgent Care Family Practice, create a strong healthcare presence in the building. Reserved employee parking and ample customer parking are available. Ideally situated between Loop 1604 and North Central Baptist Hospital, this property offers excellent visibility and accessibility for a variety of professional users.
- Bus Line
- Signage
Property Facts
Select Tenants
- Floor
- Tenant Name
- Industry
- 1st
- Alamo Specialty Pharmacy
- Health Care and Social Assistance
- 1st
- Stone Oak Urgent Care & Family Practice
- Health Care and Social Assistance
Presented by
104 Gallery Cir
Hmm, there seems to have been an error sending your message. Please try again.
Thanks! Your message was sent.










