Your email has been sent.
Park Highlights
- Climate-controlled warehouse areas for operational efficiency.
- Grade-level loading doors for easy access.
- Professional business park environment with modern finishes.
- Suite sizes starting at 550 SF
- Central San Diego location near I-5.
- Minutes from La Jolla and Sorrento Valley.
Park Facts
Features and Amenities
- 24 Hour Access
- Air Conditioning
All Available Spaces(4)
Display Rental Rate as
- Space
- Size
- Term
- Rental Rate
- Space Use
- Build-Out
- Available
Open office, (1) restroom, balance warehouse. (1) grade level door. Available 5/15/2026.
- Listed rate may not include certain utilities, building services and property expenses
- Private Restrooms
- Grade-level loading door access
- 1 Drive Bay
- Open office with restroom
| Space | Size | Term | Rental Rate | Space Use | Build-Out | Available |
| 1st Floor | 800 SF | Negotiable | $37.65 CAD/SF/YR $3.14 CAD/SF/MO $30,122 CAD/YR $2,510 CAD/MO | Industrial | Partial Build-Out | 2026-05-15 |
10461-10475 Roselle St - 1st Floor
- Space
- Size
- Term
- Rental Rate
- Space Use
- Build-Out
- Available
Reception/open office, (2) private offices, break area, (2) restrooms, balance warehouse. (1) grade level door. Available with 30 days’ notice. *Can be combined with Suite 2 for 10,110 SF.
- Listed rate may not include certain utilities, building services and property expenses
- Can be combined with additional space(s) for up to 10,110 SF of adjacent space
- Two private offices included
- 1 Drive Bay
- Private Restrooms
- Grade-level loading door access
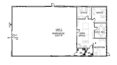
Reception/open office, (2) private offices, conference room, (2) restrooms, balance warehouse. (1) grade level door. Available with 30 days’ notice. *Can be combined with Suite 1 for 10,110 SF.
- Listed rate may not include certain utilities, building services and property expenses
- Can be combined with additional space(s) for up to 10,110 SF of adjacent space
- Two private offices included
- 1 Drive Bay
- Private Restrooms
- Grade-level loading door access
| Space | Size | Term | Rental Rate | Space Use | Build-Out | Available |
| 1st Floor - 1 | 5,172 SF | Negotiable | $31.92 CAD/SF/YR $2.66 CAD/SF/MO $165,107 CAD/YR $13,759 CAD/MO | Industrial | Partial Build-Out | 30 Days |
| 1st Floor - 2 | 4,938 SF | Negotiable | $31.92 CAD/SF/YR $2.66 CAD/SF/MO $157,637 CAD/YR $13,136 CAD/MO | Industrial | Partial Build-Out | 30 Days |
10449 Roselle St - 1st Floor - 1
10449 Roselle St - 1st Floor - 2
- Space
- Size
- Term
- Rental Rate
- Space Use
- Build-Out
- Available
100% climate controlled. Office are features a reception area, (4) private offices, conference room, open office area, break room, (2) restrooms, balance warehouse. (1) grade level door. 300 amps at 120/208V
- Listed rate may not include certain utilities, building services and property expenses
- Central Air Conditioning
- 100% climate controlled
- 300 amps at 120/208V
- 1 Drive Bay
- Private Restrooms
- (4) private offices
- 1 MONTH FREE-RENT PER YEAR
| Space | Size | Term | Rental Rate | Space Use | Build-Out | Available |
| 1st Floor - 300 | 5,401 SF | Negotiable | $31.92 CAD/SF/YR $2.66 CAD/SF/MO $172,417 CAD/YR $14,368 CAD/MO | Industrial | Partial Build-Out | Now |
10451-10455 Roselle St - 1st Floor - 300
10461-10475 Roselle St - 1st Floor
| Size | 800 SF |
| Term | Negotiable |
| Rental Rate | $37.65 CAD/SF/YR |
| Space Use | Industrial |
| Build-Out | Partial Build-Out |
| Available | 2026-05-15 |
Open office, (1) restroom, balance warehouse. (1) grade level door. Available 5/15/2026.
- Listed rate may not include certain utilities, building services and property expenses
- 1 Drive Bay
- Private Restrooms
- Open office with restroom
- Grade-level loading door access
10449 Roselle St - 1st Floor - 1
| Size | 5,172 SF |
| Term | Negotiable |
| Rental Rate | $31.92 CAD/SF/YR |
| Space Use | Industrial |
| Build-Out | Partial Build-Out |
| Available | 30 Days |
Reception/open office, (2) private offices, break area, (2) restrooms, balance warehouse. (1) grade level door. Available with 30 days’ notice. *Can be combined with Suite 2 for 10,110 SF.
- Listed rate may not include certain utilities, building services and property expenses
- 1 Drive Bay
- Can be combined with additional space(s) for up to 10,110 SF of adjacent space
- Private Restrooms
- Two private offices included
- Grade-level loading door access
10449 Roselle St - 1st Floor - 2
| Size | 4,938 SF |
| Term | Negotiable |
| Rental Rate | $31.92 CAD/SF/YR |
| Space Use | Industrial |
| Build-Out | Partial Build-Out |
| Available | 30 Days |
Reception/open office, (2) private offices, conference room, (2) restrooms, balance warehouse. (1) grade level door. Available with 30 days’ notice. *Can be combined with Suite 1 for 10,110 SF.
- Listed rate may not include certain utilities, building services and property expenses
- 1 Drive Bay
- Can be combined with additional space(s) for up to 10,110 SF of adjacent space
- Private Restrooms
- Two private offices included
- Grade-level loading door access
10451-10455 Roselle St - 1st Floor - 300
| Size | 5,401 SF |
| Term | Negotiable |
| Rental Rate | $31.92 CAD/SF/YR |
| Space Use | Industrial |
| Build-Out | Partial Build-Out |
| Available | Now |
100% climate controlled. Office are features a reception area, (4) private offices, conference room, open office area, break room, (2) restrooms, balance warehouse. (1) grade level door. 300 amps at 120/208V
- Listed rate may not include certain utilities, building services and property expenses
- 1 Drive Bay
- Central Air Conditioning
- Private Restrooms
- 100% climate controlled
- (4) private offices
- 300 amps at 120/208V
- 1 MONTH FREE-RENT PER YEAR
Park Overview
La Jolla Sorrento Business Park offers a versatile mix of office, warehouse, and lab space in a highly accessible San Diego location. The property features climate-controlled warehouse areas, grade-level loading doors, and flexible layouts designed to accommodate a range of business operations. Tenants benefit from a professional business park setting with modern finishes and functional design elements, including open office areas, private offices, and break rooms. Located just five minutes north of La Jolla and near the I-5/Sorrento Valley Road interchange, the park provides excellent connectivity to major freeways and surrounding business hubs. With suite sizes starting at 550 square feet, the property is ideal for companies seeking scalable space solutions in a central location.
Presented by
La Jolla Sorrento Business Park | San Diego, CA 92121
Hmm, there seems to have been an error sending your message. Please try again.
Thanks! Your message was sent.












