Log In/Sign Up
Your email has been sent.
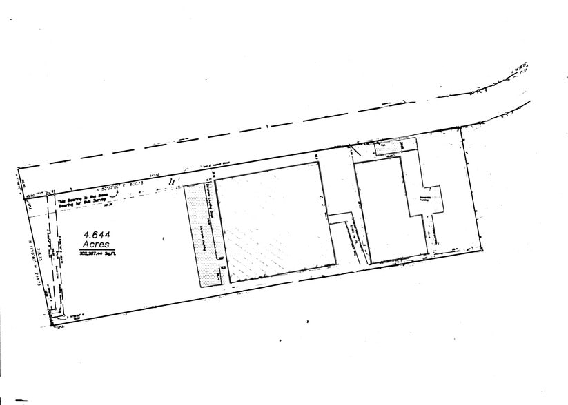
105-205 Silo Ln 65,435 SF 100% Leased Industrial Building Lavonia, GA 30553 $5,906,996 CAD ($90.27 CAD/SF)



Investment Highlights
- Income Producing
- Minutes to I85
- Potential Sale Leaseback Opportunity
- Zoned Heavy Industrial
Executive Summary
105 - 205 Silo Lane offers a total of ±65,000 SF of industrial space on 4.64 acres in Lavonia, Georgia, strategically located along I-85 near the South Carolina border. The two buildings are 23,355 SF and 40,000 SF respectively, with clear heights up to 25’, dock-high and drive-in loading doors, 3-phase/440V power, skylights, and outdoor storage areas. The property is zoned Heavy Industrial (H-I) and is fully sprinklered, making it ideal for manufacturing, distribution, and logistics uses.
An excellent income-producing opportunity, this property offers flexibility for investors or owner-users. Building 105 is leased to a corporate tenant through 2027, providing $100,000 in base rent per year (plus TICAM), while Building 205 is currently vacant and ready for lease or occupancy.
An excellent income-producing opportunity, this property offers flexibility for investors or owner-users. Building 105 is leased to a corporate tenant through 2027, providing $100,000 in base rent per year (plus TICAM), while Building 205 is currently vacant and ready for lease or occupancy.
Property Facts
Amenities
- Fenced Lot
- Skylights
- Yard
Utilities
- Water
- Sewer
1 1
Somewhat walkable
30/100
Exceptionally drivable
100/100
Somewhat bikeable
20/100
Property Taxes
| Parcel Number | L001-001-C | Improvements Assessment | $487,445 CAD |
| Land Assessment | $13,805 CAD | Total Assessment | $501,250 CAD |
Property Taxes
Parcel Number
L001-001-C
Land Assessment
$13,805 CAD
Improvements Assessment
$487,445 CAD
Total Assessment
$501,250 CAD
1 of 5
Videos
Matterport 3D Exterior
Matterport 3D Tour
Photos
Street View
Street
Map
1 of 1
Presented by
105-205 Silo Ln
Already a member? Log In
Hmm, there seems to have been an error sending your message. Please try again.
Thanks! Your message was sent.
