Your email has been sent.
Highlights
- Historic brick-and-timber buildings reimagined with modern creative interiors and WELL Health-Safety certification.
- Prime North Waterfront location steps from top dining, retail, fitness, and the Financial District.
- Multiple interconnected buildings offering a range of spec suites and custom configurations that support teams of varying sizes.
- Strong amenity package including showers, collaboration zones, phone rooms, kitchens, and abundant natural light.
All Available Spaces(4)
Display Rental Rate as
- Space
- Size
- Term
- Rental Rate
- Space Use
- Build-Out
- Available
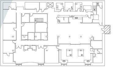
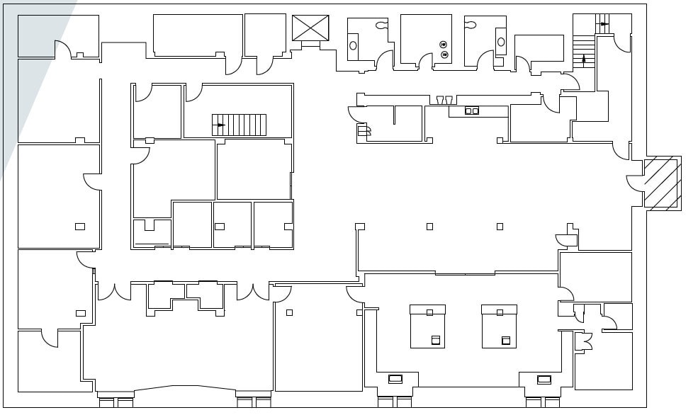
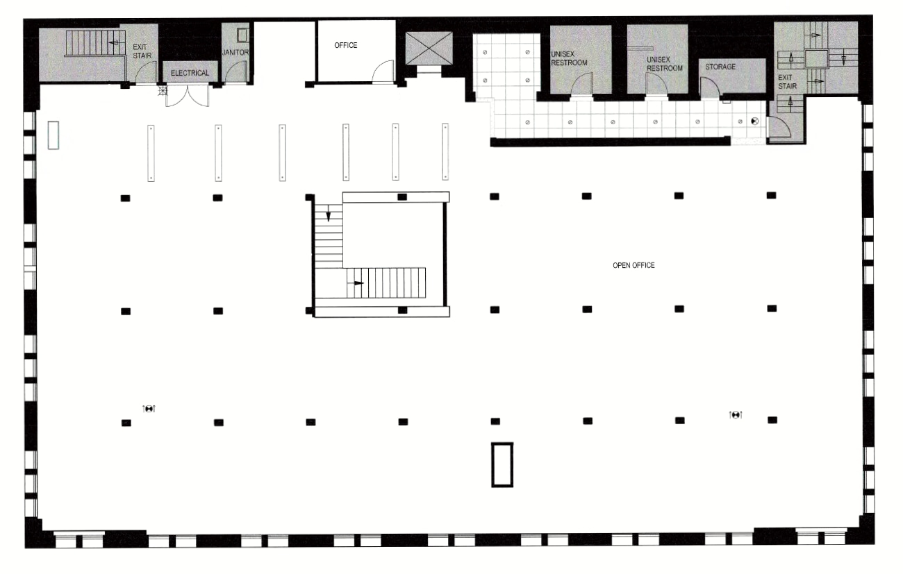
The lower level includes five private offices, two conference rooms, ten storage rooms, multiple IT rooms, a kitchen and break room, a kitchenette, and a shower with restrooms.
- Rate includes utilities, building services and property expenses
- Fits 21 - 66 People
- 2 Conference Rooms
- Private Restrooms
- Shower Facilities
- Fully Built-Out as Standard Office
- 5 Private Offices
- Kitchen
- Secure Storage
The first level offers two private offices, two conference rooms, a storage room, a kitchen and break area, an open workspace, and an IT room.
- Fully Built-Out as Standard Office
- Fits 18 - 57 People
- 1 Conference Room
- Private Restrooms
- Mostly Open Floor Plan Layout
- 2 Private Offices
- Kitchen
The second level features seventeen private offices, two conference rooms, a storage room, a kitchen, a copy room, open workspace, restrooms, and an IT room.
- Fully Built-Out as Standard Office
- 17 Private Offices
- Can be combined with additional space(s) for up to 17,141 SF of adjacent space
- Private Restrooms
- Fits 22 - 69 People
- 2 Conference Rooms
- Print/Copy Room
- Secure Storage
The third level includes nineteen private offices, one conference room, two storage rooms, a kitchen, a copy room, an open area, and an IT room, with access to roof stairs
- Fully Built-Out as Standard Office
- 19 Private Offices
- Can be combined with additional space(s) for up to 17,141 SF of adjacent space
- Print/Copy Room
- Fits 22 - 69 People
- 1 Conference Room
- Kitchen
- Secure Storage
| Space | Size | Term | Rental Rate | Space Use | Build-Out | Available |
| Lower Level | 8,161 SF | Negotiable | Upon Request Upon Request Upon Request Upon Request | Office | Full Build-Out | 60 Days |
| 1st Floor, Ste 150 | 7,002 SF | Negotiable | Upon Request Upon Request Upon Request Upon Request | Office | Full Build-Out | Now |
| 2nd Floor | 8,585 SF | Negotiable | Upon Request Upon Request Upon Request Upon Request | Office | Full Build-Out | 60 Days |
| 3rd Floor | 8,556 SF | Negotiable | Upon Request Upon Request Upon Request Upon Request | Office | Full Build-Out | 60 Days |
Lower Level
| Size |
| 8,161 SF |
| Term |
| Negotiable |
| Rental Rate |
| Upon Request Upon Request Upon Request Upon Request |
| Space Use |
| Office |
| Build-Out |
| Full Build-Out |
| Available |
| 60 Days |
1st Floor, Ste 150
| Size |
| 7,002 SF |
| Term |
| Negotiable |
| Rental Rate |
| Upon Request Upon Request Upon Request Upon Request |
| Space Use |
| Office |
| Build-Out |
| Full Build-Out |
| Available |
| Now |
2nd Floor
| Size |
| 8,585 SF |
| Term |
| Negotiable |
| Rental Rate |
| Upon Request Upon Request Upon Request Upon Request |
| Space Use |
| Office |
| Build-Out |
| Full Build-Out |
| Available |
| 60 Days |
3rd Floor
| Size |
| 8,556 SF |
| Term |
| Negotiable |
| Rental Rate |
| Upon Request Upon Request Upon Request Upon Request |
| Space Use |
| Office |
| Build-Out |
| Full Build-Out |
| Available |
| 60 Days |
Lower Level
| Size | 8,161 SF |
| Term | Negotiable |
| Rental Rate | Upon Request |
| Space Use | Office |
| Build-Out | Full Build-Out |
| Available | 60 Days |
The lower level includes five private offices, two conference rooms, ten storage rooms, multiple IT rooms, a kitchen and break room, a kitchenette, and a shower with restrooms.
- Rate includes utilities, building services and property expenses
- Fully Built-Out as Standard Office
- Fits 21 - 66 People
- 5 Private Offices
- 2 Conference Rooms
- Kitchen
- Private Restrooms
- Secure Storage
- Shower Facilities
1st Floor, Ste 150
| Size | 7,002 SF |
| Term | Negotiable |
| Rental Rate | Upon Request |
| Space Use | Office |
| Build-Out | Full Build-Out |
| Available | Now |
The first level offers two private offices, two conference rooms, a storage room, a kitchen and break area, an open workspace, and an IT room.
- Fully Built-Out as Standard Office
- Mostly Open Floor Plan Layout
- Fits 18 - 57 People
- 2 Private Offices
- 1 Conference Room
- Kitchen
- Private Restrooms
2nd Floor
| Size | 8,585 SF |
| Term | Negotiable |
| Rental Rate | Upon Request |
| Space Use | Office |
| Build-Out | Full Build-Out |
| Available | 60 Days |
The second level features seventeen private offices, two conference rooms, a storage room, a kitchen, a copy room, open workspace, restrooms, and an IT room.
- Fully Built-Out as Standard Office
- Fits 22 - 69 People
- 17 Private Offices
- 2 Conference Rooms
- Can be combined with additional space(s) for up to 17,141 SF of adjacent space
- Print/Copy Room
- Private Restrooms
- Secure Storage
3rd Floor
| Size | 8,556 SF |
| Term | Negotiable |
| Rental Rate | Upon Request |
| Space Use | Office |
| Build-Out | Full Build-Out |
| Available | 60 Days |
The third level includes nineteen private offices, one conference room, two storage rooms, a kitchen, a copy room, an open area, and an IT room, with access to roof stairs
- Fully Built-Out as Standard Office
- Fits 22 - 69 People
- 19 Private Offices
- 1 Conference Room
- Can be combined with additional space(s) for up to 17,141 SF of adjacent space
- Kitchen
- Print/Copy Room
- Secure Storage
Property Overview
The North Waterfront Portfolio delivers an opportunity to occupy a collection of architecturally rich, fully modernized office environments along San Francisco’s historic waterfront. Blending exposed brick, timber details, and high ceilings with contemporary creative buildouts, these WELL Health-Safety Rated buildings offer a premium workspace experience designed for today’s high-performance teams. Across 1001 Front, 1010 Battery, 1040 Battery, and One Lombard, tenants can choose from an array of spec suites, full floors, and interconnected configurations that support a variety of workplace strategies, from collaborative open layouts to executive-oriented private office settings. Each building provides thoughtful amenities including expansive kitchens, conference rooms, showers, phone rooms, wellness spaces, and abundant natural light. Located steps from renowned dining, boutique retail, and the Financial District, the portfolio gives companies immediate access to one of San Francisco’s most vibrant and walkable neighborhoods. With flexible occupancy options, creative layouts, and a blend of historic charm and modern efficiency, the North Waterfront Portfolio stands out as a distinctive corporate destination.
- Bus Line
- Commuter Rail
- Metro/Subway
- Energy Star Labeled
Property Facts
Sustainability
Sustainability
LEED Certification Developed by the U.S. Green Building Council (USGBC), the Leadership in Energy and Environmental Design (LEED) is a green building certification program focused on the design, construction, operation, and maintenance of green buildings, homes, and neighborhoods, which aims to help building owners and operators be environmentally responsible and use resources efficiently. LEED certification is a globally recognized symbol of sustainability achievement and leadership. To achieve LEED certification, a project earns points by adhering to prerequisites and credits that address carbon, energy, water, waste, transportation, materials, health and indoor environmental quality. Projects go through a verification and review process and are awarded points that correspond to a level of LEED certification: Platinum (80+ points) Gold (60-79 points) Silver (50-59 points) Certified (40-49 points)
Presented by
1050 Battery St
Hmm, there seems to have been an error sending your message. Please try again.
Thanks! Your message was sent.









