Your email has been sent.
Northgate Heights Business Center 1050 Northgate Dr 469 - 16,005 SF of Office/Medical Space Available in San Rafael, CA 94903



All Available Spaces(8)
Display Rental Rate as
- Space
- Size
- Term
- Rental Rate
- Space Use
- Build-Out
- Available
- Open office area - Large private office - Conference room - Kitchenette with dishwasher - Storage room - ±10 ft. ceiling height
- Rate includes utilities, building services and property expenses
- Open Floor Plan Layout
- 1 Conference Room
- Fully Built-Out as Health Care Space
- 1 Private Office
- Rate includes utilities, building services and property expenses
- Mostly Open Floor Plan Layout
- 10 Conference Rooms
- Finished Ceilings: 12’
- Fully Built-Out as Standard Office
- 10 Private Offices
- 10 Workstations
- Reception Area
- Generous reception area - Large private office - New carpet - New paint
- Rate includes utilities, building services and property expenses
- 1 Private Office
- Fully Built-Out as Health Care Space
- Reception Area
- Reception area - 2 private offices - 2 private exam rooms connect to restrooms - Plentiful storage
- Rate includes utilities, building services and property expenses
- 2 Private Offices
- Excellent freeway visibility
- Ample parking available
- Shared conference room and patio on bottom floor
- Fully Built-Out as Health Care Space
- Reception Area
- Easy access to Highway 101
- Private ADA restrooms
- Close to local amenities
Large open area Private office Large conference room Kitchenette Tam views
- Rate includes utilities, building services and property expenses
- 1 Private Office
- Excellent freeway visibility
- Ample parking available
- Close to local amenities
- Fully Built-Out as Health Care Space
- 1 Conference Room
- Easy access to Highway 101
- Shared conference room and patio on bottom floor
- Reception area - Two window lined private offices - Large corner conference room - Storage room
- Rate includes utilities, building services and property expenses
- 2 Private Offices
- Excellent freeway visibility
- Ample parking available
- Close to local amenities
- Fully Built-Out as Health Care Space
- 1 Conference Room
- Easy access to Highway 101
- Shared conference room and patio on bottom floor
- Impressive entry off the elevator - Glass lines on 3 sides of the suite - Five private offices - Large conference room - Open work areas - Plentiful storage
- Rate includes utilities, building services and property expenses
- 5 Private Offices
- Can be combined with additional space(s) for up to 5,073 SF of adjacent space
- Fully Built-Out as Health Care Space
- 1 Conference Room
- Reception area - Three generous private offices - Ample open workspace - Kitchenette with dishwasher
- Rate includes utilities, building services and property expenses
- 3 Private Offices
- Reception Area
- Fully Built-Out as Health Care Space
- Can be combined with additional space(s) for up to 5,073 SF of adjacent space
- 3 private offices
| Space | Size | Term | Rental Rate | Space Use | Build-Out | Available |
| 1st Floor, Ste 1 | 1,233 SF | Negotiable | $57.56 CAD/SF/YR $4.80 CAD/SF/MO $70,968 CAD/YR $5,914 CAD/MO | Office/Medical | Full Build-Out | Now |
| 2nd Floor, Ste 200 | 5,036 SF | Negotiable | $57.56 CAD/SF/YR $4.80 CAD/SF/MO $289,858 CAD/YR $24,155 CAD/MO | Office/Medical | Full Build-Out | Now |
| 2nd Floor, Ste 245 | 469 SF | Negotiable | $57.56 CAD/SF/YR $4.80 CAD/SF/MO $26,994 CAD/YR $2,250 CAD/MO | Office/Medical | Full Build-Out | Now |
| 2nd Floor, Ste 260 | 1,022 SF | Negotiable | $57.56 CAD/SF/YR $4.80 CAD/SF/MO $58,823 CAD/YR $4,902 CAD/MO | Office/Medical | Full Build-Out | Now |
| 3rd Floor, Ste 300 | 2,211 SF | Negotiable | $57.56 CAD/SF/YR $4.80 CAD/SF/MO $127,259 CAD/YR $10,605 CAD/MO | Office/Medical | Full Build-Out | Now |
| 3rd Floor, Ste 351 | 961 SF | Negotiable | $57.56 CAD/SF/YR $4.80 CAD/SF/MO $55,312 CAD/YR $4,609 CAD/MO | Office/Medical | Full Build-Out | Now |
| 4th Floor, Ste 400 | 3,487 SF | Negotiable | $57.56 CAD/SF/YR $4.80 CAD/SF/MO $200,702 CAD/YR $16,725 CAD/MO | Office/Medical | Full Build-Out | Now |
| 4th Floor, Ste 410 | 1,586 SF | Negotiable | $57.56 CAD/SF/YR $4.80 CAD/SF/MO $91,286 CAD/YR $7,607 CAD/MO | Office/Medical | Full Build-Out | Now |
1st Floor, Ste 1
| Size |
| 1,233 SF |
| Term |
| Negotiable |
| Rental Rate |
| $57.56 CAD/SF/YR $4.80 CAD/SF/MO $70,968 CAD/YR $5,914 CAD/MO |
| Space Use |
| Office/Medical |
| Build-Out |
| Full Build-Out |
| Available |
| Now |
2nd Floor, Ste 200
| Size |
| 5,036 SF |
| Term |
| Negotiable |
| Rental Rate |
| $57.56 CAD/SF/YR $4.80 CAD/SF/MO $289,858 CAD/YR $24,155 CAD/MO |
| Space Use |
| Office/Medical |
| Build-Out |
| Full Build-Out |
| Available |
| Now |
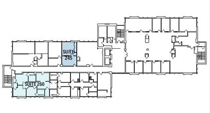
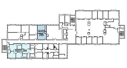
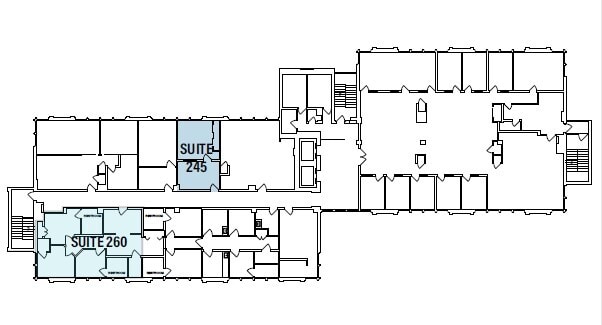
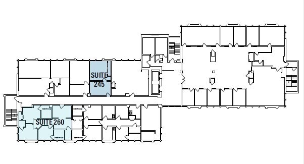
2nd Floor, Ste 245
| Size |
| 469 SF |
| Term |
| Negotiable |
| Rental Rate |
| $57.56 CAD/SF/YR $4.80 CAD/SF/MO $26,994 CAD/YR $2,250 CAD/MO |
| Space Use |
| Office/Medical |
| Build-Out |
| Full Build-Out |
| Available |
| Now |
2nd Floor, Ste 260
| Size |
| 1,022 SF |
| Term |
| Negotiable |
| Rental Rate |
| $57.56 CAD/SF/YR $4.80 CAD/SF/MO $58,823 CAD/YR $4,902 CAD/MO |
| Space Use |
| Office/Medical |
| Build-Out |
| Full Build-Out |
| Available |
| Now |
3rd Floor, Ste 300
| Size |
| 2,211 SF |
| Term |
| Negotiable |
| Rental Rate |
| $57.56 CAD/SF/YR $4.80 CAD/SF/MO $127,259 CAD/YR $10,605 CAD/MO |
| Space Use |
| Office/Medical |
| Build-Out |
| Full Build-Out |
| Available |
| Now |
3rd Floor, Ste 351
| Size |
| 961 SF |
| Term |
| Negotiable |
| Rental Rate |
| $57.56 CAD/SF/YR $4.80 CAD/SF/MO $55,312 CAD/YR $4,609 CAD/MO |
| Space Use |
| Office/Medical |
| Build-Out |
| Full Build-Out |
| Available |
| Now |
4th Floor, Ste 400
| Size |
| 3,487 SF |
| Term |
| Negotiable |
| Rental Rate |
| $57.56 CAD/SF/YR $4.80 CAD/SF/MO $200,702 CAD/YR $16,725 CAD/MO |
| Space Use |
| Office/Medical |
| Build-Out |
| Full Build-Out |
| Available |
| Now |
4th Floor, Ste 410
| Size |
| 1,586 SF |
| Term |
| Negotiable |
| Rental Rate |
| $57.56 CAD/SF/YR $4.80 CAD/SF/MO $91,286 CAD/YR $7,607 CAD/MO |
| Space Use |
| Office/Medical |
| Build-Out |
| Full Build-Out |
| Available |
| Now |
1st Floor, Ste 1
| Size | 1,233 SF |
| Term | Negotiable |
| Rental Rate | $57.56 CAD/SF/YR |
| Space Use | Office/Medical |
| Build-Out | Full Build-Out |
| Available | Now |
- Open office area - Large private office - Conference room - Kitchenette with dishwasher - Storage room - ±10 ft. ceiling height
- Rate includes utilities, building services and property expenses
- Fully Built-Out as Health Care Space
- Open Floor Plan Layout
- 1 Private Office
- 1 Conference Room
2nd Floor, Ste 200
| Size | 5,036 SF |
| Term | Negotiable |
| Rental Rate | $57.56 CAD/SF/YR |
| Space Use | Office/Medical |
| Build-Out | Full Build-Out |
| Available | Now |
- Rate includes utilities, building services and property expenses
- Fully Built-Out as Standard Office
- Mostly Open Floor Plan Layout
- 10 Private Offices
- 10 Conference Rooms
- 10 Workstations
- Finished Ceilings: 12’
- Reception Area
2nd Floor, Ste 245
| Size | 469 SF |
| Term | Negotiable |
| Rental Rate | $57.56 CAD/SF/YR |
| Space Use | Office/Medical |
| Build-Out | Full Build-Out |
| Available | Now |
- Generous reception area - Large private office - New carpet - New paint
- Rate includes utilities, building services and property expenses
- Fully Built-Out as Health Care Space
- 1 Private Office
- Reception Area
2nd Floor, Ste 260
| Size | 1,022 SF |
| Term | Negotiable |
| Rental Rate | $57.56 CAD/SF/YR |
| Space Use | Office/Medical |
| Build-Out | Full Build-Out |
| Available | Now |
- Reception area - 2 private offices - 2 private exam rooms connect to restrooms - Plentiful storage
- Rate includes utilities, building services and property expenses
- Fully Built-Out as Health Care Space
- 2 Private Offices
- Reception Area
- Excellent freeway visibility
- Easy access to Highway 101
- Ample parking available
- Private ADA restrooms
- Shared conference room and patio on bottom floor
- Close to local amenities
3rd Floor, Ste 300
| Size | 2,211 SF |
| Term | Negotiable |
| Rental Rate | $57.56 CAD/SF/YR |
| Space Use | Office/Medical |
| Build-Out | Full Build-Out |
| Available | Now |
Large open area Private office Large conference room Kitchenette Tam views
- Rate includes utilities, building services and property expenses
- Fully Built-Out as Health Care Space
- 1 Private Office
- 1 Conference Room
- Excellent freeway visibility
- Easy access to Highway 101
- Ample parking available
- Shared conference room and patio on bottom floor
- Close to local amenities
3rd Floor, Ste 351
| Size | 961 SF |
| Term | Negotiable |
| Rental Rate | $57.56 CAD/SF/YR |
| Space Use | Office/Medical |
| Build-Out | Full Build-Out |
| Available | Now |
- Reception area - Two window lined private offices - Large corner conference room - Storage room
- Rate includes utilities, building services and property expenses
- Fully Built-Out as Health Care Space
- 2 Private Offices
- 1 Conference Room
- Excellent freeway visibility
- Easy access to Highway 101
- Ample parking available
- Shared conference room and patio on bottom floor
- Close to local amenities
4th Floor, Ste 400
| Size | 3,487 SF |
| Term | Negotiable |
| Rental Rate | $57.56 CAD/SF/YR |
| Space Use | Office/Medical |
| Build-Out | Full Build-Out |
| Available | Now |
- Impressive entry off the elevator - Glass lines on 3 sides of the suite - Five private offices - Large conference room - Open work areas - Plentiful storage
- Rate includes utilities, building services and property expenses
- Fully Built-Out as Health Care Space
- 5 Private Offices
- 1 Conference Room
- Can be combined with additional space(s) for up to 5,073 SF of adjacent space
4th Floor, Ste 410
| Size | 1,586 SF |
| Term | Negotiable |
| Rental Rate | $57.56 CAD/SF/YR |
| Space Use | Office/Medical |
| Build-Out | Full Build-Out |
| Available | Now |
- Reception area - Three generous private offices - Ample open workspace - Kitchenette with dishwasher
- Rate includes utilities, building services and property expenses
- Fully Built-Out as Health Care Space
- 3 Private Offices
- Can be combined with additional space(s) for up to 5,073 SF of adjacent space
- Reception Area
- 3 private offices
Property Overview
Located in North San Rafael, 1050 Northgate is conveniently located near the Manuel T. Freitas Parkway exit from Highway 101 - the major north-south arterial connecting San Francisco - Marin County - Sonoma County and beyond. The location is convenient for commuters in almost all directions. The Northgate Shopping Center is a short walk away and is anchored by Macy's, Kohl's, and offering a numerous selection of nationally recognized restaurants. This classic building features glass-lined offices with stunning panoramic views.
Property Facts
Select Tenants
- Floor
- Tenant Name
- Industry
- 5th
- AALRR
- -
- 4th
- Bay Area Pain Management
- Health Care and Social Assistance
- 4th
- Heartland Hospice SVC Serving Sonoma, Napa & Marin
- Health Care and Social Assistance
- 1st
- Home Instead Senior Care
- Health Care and Social Assistance
- 2nd
- JB & A Distribution
- Arts, Entertainment, and Recreation
- 5th
- Pacific Coast Psychiatric Associates
- Health Care and Social Assistance
- 4th
- Pain Medicine Consultants
- Health Care and Social Assistance
- 1st
- Schillinger Chiropractic & Wellness Ctr
- Health Care and Social Assistance
- 5th
- The Silver Group
- Real Estate
- Unknown
- Woodmont - Northgate Drive
- Real Estate
Presented by
Northgate Heights Business Center | 1050 Northgate Dr
Hmm, there seems to have been an error sending your message. Please try again.
Thanks! Your message was sent.





















