Your email has been sent.
106-108 W Main St 29,636 SF 100% Leased Retail Building Woodland, CA 95695 $6,519,280 CAD ($219.98 CAD/SF) 6.53% Cap Rate



Investment Highlights
- Heavy daytime traffic
- Value-add component
- NNN Investment
- 100% Leased
Executive Summary
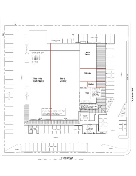
Positioned at the hard corner of California St & Main St in Woodland, the property totals 25,626± SF on 1.81± acres, with 82 striped parking spaces and visibility along two key arterials (approx. 15,000 VPD). Originally built in 1962 and renovated in 1995, the center has benefited from ongoing façade, paving, landscaping, and mechanical enhancements. The tenant mix delivers daily-needs convenience (e.g., Subway, Taco Joe’s Café, barbershop, dental clinic, children’s activity center, resale retail), supporting durable traffic and income. The asset is offered at $4,750,000, reflecting a 6.53% cap rate on 2026 NOI of $310,150, a compelling stabilized return with near-term upside via rent resets on rollover.
Property Facts
Major Tenants
- Tenant
- Industry
- SF Occupied
- Rent/SF
- Lease Type
- Lease End
Subway began in 1965 when Fred DeLuca and Peter Buck opened a submarine sandwich shop in Connecticut with a small investment and a handshake. The company grew through franchising and developed from a local sandwich shop into a global restaurant brand serving freshly made sandwiches at a value-oriented price point. Subway’s menu centers on submarine sandwiches and wraps, with additional offerings that include salads, cookies, soft drinks, and selected pizza items at some locations. The business operates through a large franchise network and maintains a significant presence across international markets while continuing to emphasize convenient, customizable meals.
The Kids Clubhouse offers a dynamic environment designed to engage children’s creativity and provide a wide range of entertainment for kids ages 10 and under, as well as their parents.
- Thrift Center
- Retailer
- -
- -
- Triple Net
- -
| Tenant | Industry | SF Occupied | Rent/SF | Lease Type | Lease End | |
|
Accommodation and Food Services | - | - | - | - | |
|
Health Care and Social Assistance | - | $14.82 CAD | Triple Net | Mar 2030 | |
| Thrift Center | Retailer | - | - | Triple Net | - |
Nearby Major Retailers
Property Taxes
| Parcel Number | 064-140-015-000 | Improvements Assessment | $4,603,483 CAD |
| Land Assessment | $1,968,113 CAD | Total Assessment | $6,571,595 CAD |
Property Taxes
Presented by
106-108 W Main St
Hmm, there seems to have been an error sending your message. Please try again.
Thanks! Your message was sent.
