Your email has been sent.
Building 700 1060 Garland Dr 1,769 SF Office Building Bogart, GA 30622 $636,487 CAD ($359.80 CAD/SF)



Investment Highlights
- Custom Office Building For Sale or Lease
- High-End Interior Finishes Throughout
- Just minutes away from Highway 316 and Highway 78
- Coming February 2026
- Brick, Stacked Stone Exterior
Executive Summary
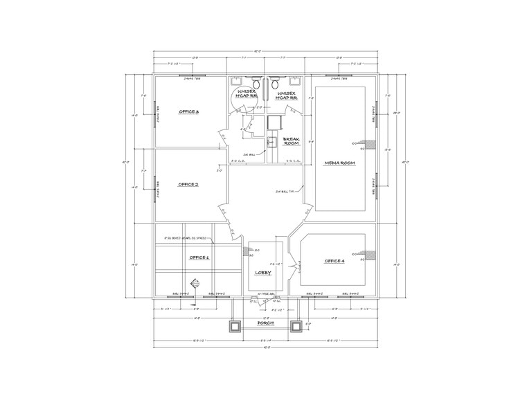
Coming in February 2026- A custom-designed office building featuring upscale interior finishes and brick and stacked stone exterior. This building offers approximately 1,769 square feet, including private offices, a conference room, restrooms, and a kitchenette—ideal for a variety of professional uses.
Strategically located in the heart of Oconee County—one of Georgia’s fastest-growing business hubs—this property provides convenient access to both Athens and Atlanta, making it an excellent opportunity for investors or owner-occupants alike.
Note: Seller is a licensed real estate broker in the state of Georgia.
Location Description:
Located on Highway 78, just minutes away from Hwy 53 and Hwy 316, this property is convenient to both Athens and Atlanta. Downtown Atlanta is less than 60 miles away, and downtown Athens and The University of Georgia are only 12 miles from the property. This property is minutes from The Georgia Club, Lane Creek Golf Club, and Oconee County Parks. There are seven schools within a 5-minute radius, and the shopping and dining in the Epps Bridge are only 10 minutes away.
Property Facts
Space Availability
- Space
- Size
- Space Use
- Condition
- Available
Property Description: Coming in February 2026- A custom-designed office building featuring upscale interior finishes and brick and stacked stone exterior. This building offers approximately 1,769 square feet, including private offices, a conference room, restrooms, and a kitchenette—ideal for a variety of professional uses. Strategically located in the heart of Oconee County—one of Georgia’s fastest-growing business hubs—this property provides convenient access to both Athens and Atlanta, making it an excellent opportunity for investors or owner-occupants alike. Note: Seller is a licensed real estate broker in the state of Georgia. Location Description: Located on Highway 78, just minutes away from Hwy 53 and Hwy 316, this property is convenient to both Athens and Atlanta. Downtown Atlanta is less than 60 miles away, and downtown Athens and The University of Georgia are only 12 miles from the property. This property is minutes from The Georgia Club, Lane Creek Golf Club, and Oconee County Parks. There are seven schools within a 5-minute radius, and the shopping and dining in the Epps Bridge are only 10 minutes away.
| Space | Size | Space Use | Condition | Available |
| 1st Floor | 1,769 SF | Office | Full Build-Out | Now |
1st Floor
| Size |
| 1,769 SF |
| Space Use |
| Office |
| Condition |
| Full Build-Out |
| Available |
| Now |
1st Floor
| Size | 1,769 SF |
| Space Use | Office |
| Condition | Full Build-Out |
| Available | Now |
Property Description: Coming in February 2026- A custom-designed office building featuring upscale interior finishes and brick and stacked stone exterior. This building offers approximately 1,769 square feet, including private offices, a conference room, restrooms, and a kitchenette—ideal for a variety of professional uses. Strategically located in the heart of Oconee County—one of Georgia’s fastest-growing business hubs—this property provides convenient access to both Athens and Atlanta, making it an excellent opportunity for investors or owner-occupants alike. Note: Seller is a licensed real estate broker in the state of Georgia. Location Description: Located on Highway 78, just minutes away from Hwy 53 and Hwy 316, this property is convenient to both Athens and Atlanta. Downtown Atlanta is less than 60 miles away, and downtown Athens and The University of Georgia are only 12 miles from the property. This property is minutes from The Georgia Club, Lane Creek Golf Club, and Oconee County Parks. There are seven schools within a 5-minute radius, and the shopping and dining in the Epps Bridge are only 10 minutes away.
Presented by
Building 700 | 1060 Garland Dr
Hmm, there seems to have been an error sending your message. Please try again.
Thanks! Your message was sent.

