Your email has been sent.
Shoppes Of Lake Village 10601 US Highway 441 750 - 5,000 SF of Retail Space Available in Leesburg, FL 34788



Highlights
- Anchored by a newly redeveloped Publix.
- Located on US Highway 441, which sees over 37,431 vehicles per day, and services over 21,400 households with average income exceeding $72,600.
- 45,753 residents with projected growth of 1.51% over the next five years.
- Daytime population exceeds 14,800 within a 10-minute drive.
Space Availability (1)
Display Rental Rate as
- Space
- Size
- Term
- Rental Rate
- Rent Type
| Space | Size | Term | Rental Rate | Rent Type | ||
| 1st Floor, Ste OP2 | 750-5,000 SF | Negotiable | Upon Request Upon Request Upon Request Upon Request | Negotiable |
10601 US Highway 441 - 1st Floor - Ste OP2
Build to suit outparcel available.
- Space is an outparcel at this property
- Anchored by Publix.
Rent Types
The rent amount and type that the tenant (lessee) will be responsible to pay to the landlord (lessor) throughout the lease term is negotiated prior to both parties signing a lease agreement. The rent type will vary depending upon the services provided. For example, triple net rents are typically lower than full service rents due to additional expenses the tenant is required to pay in addition to the base rent. Contact the listing broker for a full understanding of any associated costs or additional expenses for each rent type.
1. Full Service: A rental rate that includes normal building standard services as provided by the landlord within a base year rental.
2. Double Net (NN): Tenant pays for only two of the building expenses; the landlord and tenant determine the specific expenses prior to signing the lease agreement.
3. Triple Net (NNN): A lease in which the tenant is responsible for all expenses associated with their proportional share of occupancy of the building.
4. Modified Gross: Modified Gross is a general type of lease rate where typically the tenant will be responsible for their proportional share of one or more of the expenses. The landlord will pay the remaining expenses. See the below list of common Modified Gross rental rate structures: 4. Plus All Utilities: A type of Modified Gross Lease where the tenant is responsible for their proportional share of utilities in addition to the rent. 4. Plus Cleaning: A type of Modified Gross Lease where the tenant is responsible for their proportional share of cleaning in addition to the rent. 4. Plus Electric: A type of Modified Gross Lease where the tenant is responsible for their proportional share of the electrical cost in addition to the rent. 4. Plus Electric & Cleaning: A type of Modified Gross Lease where the tenant is responsible for their proportional share of the electrical and cleaning cost in addition to the rent. 4. Plus Utilities and Char: A type of Modified Gross Lease where the tenant is responsible for their proportional share of the utilities and cleaning cost in addition to the rent. 4. Industrial Gross: A type of Modified Gross lease where the tenant pays one or more of the expenses in addition to the rent. The landlord and tenant determine these prior to signing the lease agreement.
5. Tenant Electric: The landlord pays for all services and the tenant is responsible for their usage of lights and electrical outlets in the space they occupy.
6. Negotiable or Upon Request: Used when the leasing contact does not provide the rent or service type.
7. TBD: To be determined; used for buildings for which no rent or service type is known, commonly utilized when the buildings are not yet built.
Select Tenants at Shoppes Of Lake Village
- Tenant
- Description
- US Locations
- Reach
- Advanced Auto Parts
- -
- -
- -
- Arby's
- -
- -
- -
- Dollar Tree
- Dollar/Variety/Thrift
- 11,306
- International
- Play it Again Sports
- -
- -
- -
- Publix
- Supermarket
- 1,703
- Regional
- Tropical Smoothie Cafe
- Fast-food
- 2,050
- National
| Tenant | Description | US Locations | Reach |
| Advanced Auto Parts | - | - | - |
| Arby's | - | - | - |
| Dollar Tree | Dollar/Variety/Thrift | 11,306 | International |
| Play it Again Sports | - | - | - |
| Publix | Supermarket | 1,703 | Regional |
| Tropical Smoothie Cafe | Fast-food | 2,050 | National |
Property Facts
About the Property
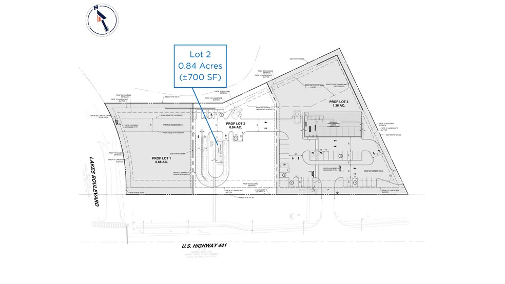
Lot 2 (700 SF) is well-suited for small specialty retail, kiosk-style concepts, service users, or grab-and-go food operators seeking placement within a high-traffic, grocery-anchored environment in the Orlando MSA Shoppes of Lake Village, a 136,783-square-foot Publix-anchored shopping center located at 10601 US Highway 441 in Leesburg, FL. The center is anchored by a newly redeveloped and expanded Publix and features a strong national tenant mix including Dollar Tree, Advance Auto Parts, and H&R Block, driving consistent daily traffic to the site. This area benefits from excellent visibility and access along US Highway 441, which carries over 37,431 vehicles per day, and serves a growing trade area of 45,753 residents with projected growth of 1.51% over the next five years. Daytime population exceeds 14,800 within a 10-minute drive, supporting convenience-oriented retail and service uses.
- Pylon Sign
Nearby Major Retailers
Presented by
Shoppes Of Lake Village | 10601 US Highway 441
Hmm, there seems to have been an error sending your message. Please try again.
Thanks! Your message was sent.
