Your email has been sent.
10628 Weaver Ave 5,680 SF of Industrial Space Available in South El Monte, CA 91733



Features
All Available Space(1)
Display Rental Rate as
- Space
- Size
- Term
- Rental Rate
- Space Use
- Condition
- Available
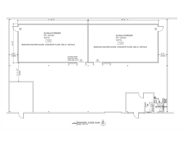
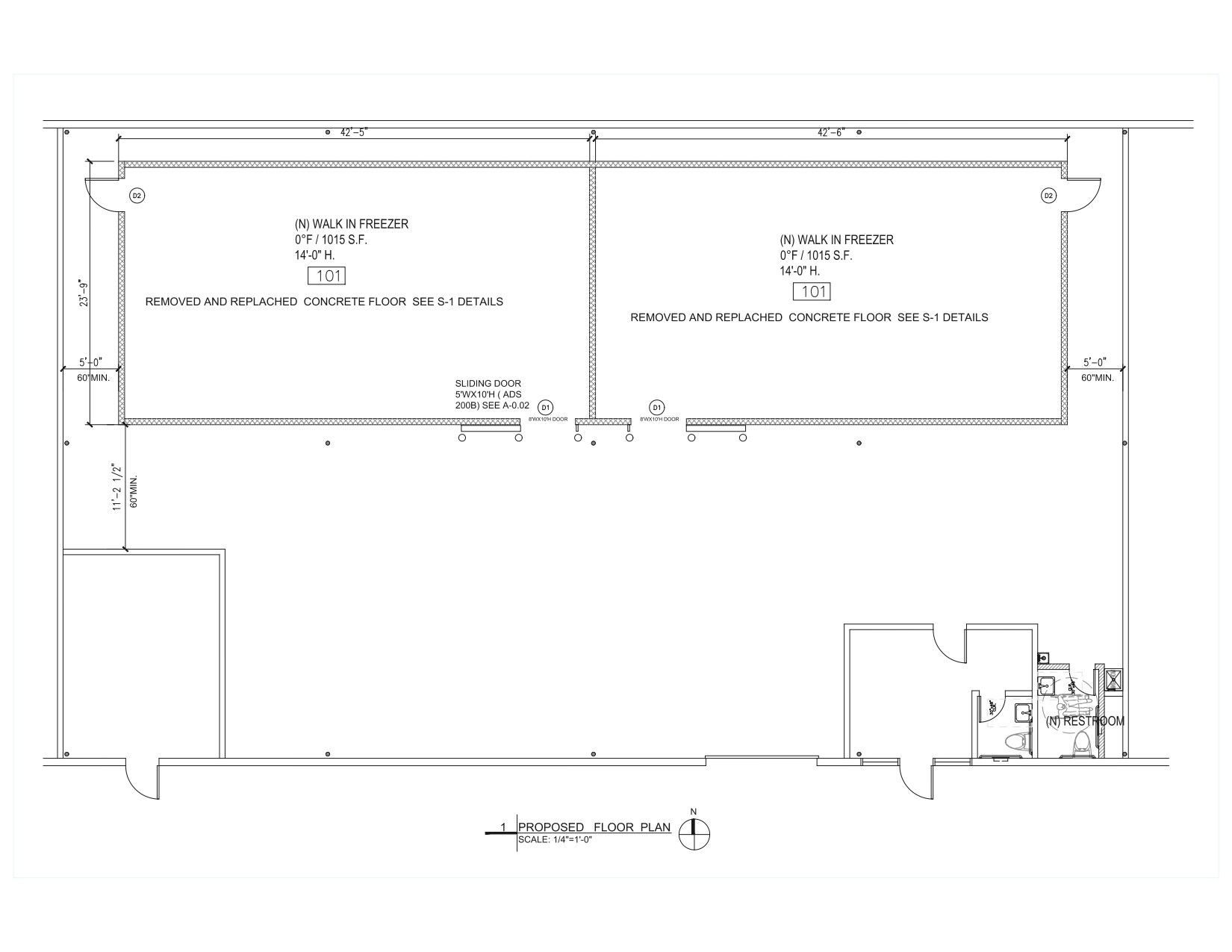
We are pleased to offer a 5,680 SF industrial unit currently being upgraded with two walk-in freezers, ideal for food distribution, cold storage, or specialty manufacturing users. The freezers are in the process of being installed, with the space expected to be ready for occupancy around July 2026. Property Highlights Total Building Size: 5,680 SF Freezer Space: (2) Walk-in freezers 1,015 SF each 2,030 SF total freezer area Remaining Warehouse / Support Space: ±3,650 SF Office: Small on-site office Restrooms: (2) Bathrooms Loading: Ground-level roll-up door Clear Height: 16' Freezer Details New freezer installation in progress Designed for commercial cold storage use Ideal for food distributors, import/export, frozen goods, meal prep, and specialty cold storage operations Building Features Functional industrial layout Ground-level loading for efficient deliveries On-site office for operations or administration Two restrooms for staff convenience Availability Estimated Delivery: July 2026 Tenant improvements currently underway Ideal Uses Cold storage / freezer users Food distribution & logistics Frozen food processing or packaging Specialty manufacturing requiring freezer space
- Listed rate may not include certain utilities, building services and property expenses
- Space is in Excellent Condition
- 1 Drive Bay
- Freezer Space
| Space | Size | Term | Rental Rate | Space Use | Condition | Available |
| 1st Floor - D | 5,680 SF | 3-5 Years | $48.47 CAD/SF/YR $4.04 CAD/SF/MO $275,282 CAD/YR $22,940 CAD/MO | Industrial | Partial Build-Out | Now |
1st Floor - D
| Size |
| 5,680 SF |
| Term |
| 3-5 Years |
| Rental Rate |
| $48.47 CAD/SF/YR $4.04 CAD/SF/MO $275,282 CAD/YR $22,940 CAD/MO |
| Space Use |
| Industrial |
| Condition |
| Partial Build-Out |
| Available |
| Now |
1st Floor - D
| Size | 5,680 SF |
| Term | 3-5 Years |
| Rental Rate | $48.47 CAD/SF/YR |
| Space Use | Industrial |
| Condition | Partial Build-Out |
| Available | Now |
We are pleased to offer a 5,680 SF industrial unit currently being upgraded with two walk-in freezers, ideal for food distribution, cold storage, or specialty manufacturing users. The freezers are in the process of being installed, with the space expected to be ready for occupancy around July 2026. Property Highlights Total Building Size: 5,680 SF Freezer Space: (2) Walk-in freezers 1,015 SF each 2,030 SF total freezer area Remaining Warehouse / Support Space: ±3,650 SF Office: Small on-site office Restrooms: (2) Bathrooms Loading: Ground-level roll-up door Clear Height: 16' Freezer Details New freezer installation in progress Designed for commercial cold storage use Ideal for food distributors, import/export, frozen goods, meal prep, and specialty cold storage operations Building Features Functional industrial layout Ground-level loading for efficient deliveries On-site office for operations or administration Two restrooms for staff convenience Availability Estimated Delivery: July 2026 Tenant improvements currently underway Ideal Uses Cold storage / freezer users Food distribution & logistics Frozen food processing or packaging Specialty manufacturing requiring freezer space
- Listed rate may not include certain utilities, building services and property expenses
- 1 Drive Bay
- Space is in Excellent Condition
- Freezer Space
Warehouse Facility Facts
Presented by
Rambeau Investments
10628 Weaver Ave
Hmm, there seems to have been an error sending your message. Please try again.
Thanks! Your message was sent.



