Log In/Sign Up
Your email has been sent.
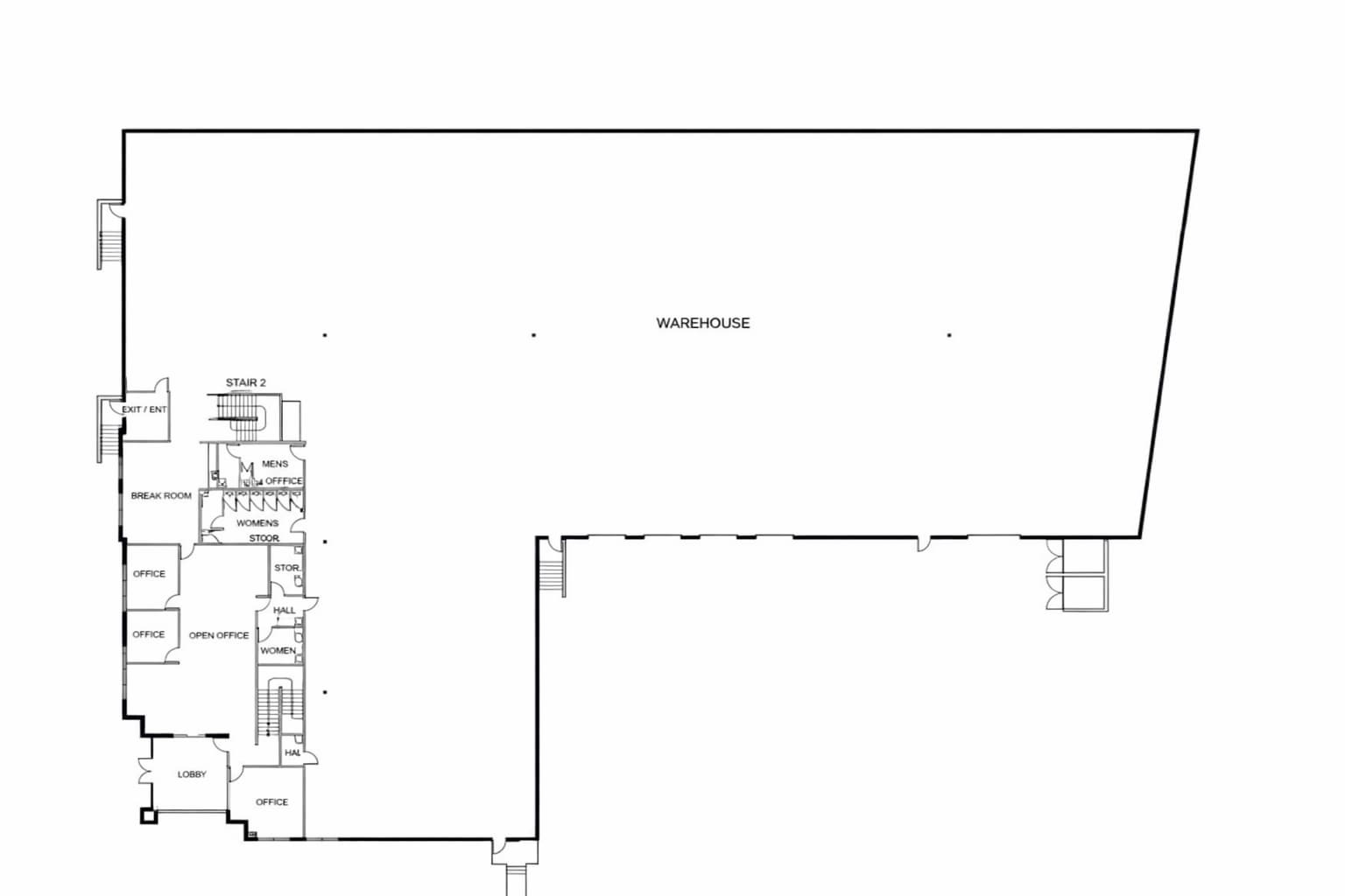
Hickson Business Park Phase 1 Building 2 10668 Hickson St 32,162 SF of Industrial Space Available in El Monte, CA 91731



Features
Clear Height
27’
Drive In Bays
1
Exterior Dock Doors
4
All Available Space(1)
Display Rental Rate as
- Space
- Size
- Term
- Rental Rate
- Space Use
- Build-Out
- Available
| Space | Size | Term | Rental Rate | Space Use | Build-Out | Available |
| 1st Floor | 32,162 SF | Negotiable | Upon Request Upon Request Upon Request Upon Request | Industrial | Partial Build-Out | 30 Days |
1st Floor
| Size |
| 32,162 SF |
| Term |
| Negotiable |
| Rental Rate |
| Upon Request Upon Request Upon Request Upon Request |
| Space Use |
| Industrial |
| Build-Out |
| Partial Build-Out |
| Available |
| 30 Days |
1 of 1
Videos
Matterport 3D Exterior
Matterport 3D Tour
Photos
Street View
Street
Map
1st Floor
| Size | 32,162 SF |
| Term | Negotiable |
| Rental Rate | Upon Request |
| Space Use | Industrial |
| Build-Out | Partial Build-Out |
| Available | 30 Days |
Warehouse Facility Facts
Building Size
32,162 SF
Lot Size
1.39 AC
Year Built
2018
Construction
Reinforced Concrete
Sprinkler System
ESFR
Zoning
M2 - General Industrial Zone
Select Tenants
- Floor
- Tenant Name
- Industry
- 1st
- Outdoor Research
- Retailer
1 1
Fairly walkable
40/100
Exceptionally drivable
90/100
Some public transit
40/100
Moderately bikeable
70/100
1 of 5
Videos
Matterport 3D Exterior
Matterport 3D Tour
Photos
Street View
Street
Map
1 of 1
Presented by
Hickson Business Park Phase 1 Building 2 | 10668 Hickson St
Already a member? Log In
Hmm, there seems to have been an error sending your message. Please try again.
Thanks! Your message was sent.


