Your email has been sent.
107 Industrial Ave 5,000 SF of Industrial Space Available in Little Ferry, NJ 07643


Features
All Available Space(1)
Display Rental Rate as
- Space
- Size
- Term
- Rental Rate
- Space Use
- Build-Out
- Available
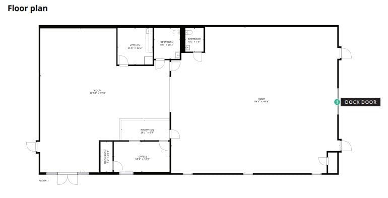
This free-standing industrial building is available for immediate occupancy, offering 5 dedicated parking spaces with the option for up to 21 car spaces. The property features a 15' ceiling height, 1 dock door for efficient loading, and an office and kitchen area of approximately 425 square feet. Additional parking space can be arranged as needed.
- Lease rate does not include certain property expenses
- 1 Loading Dock
- Includes 425 SF of dedicated office space
- Kitchen
| Space | Size | Term | Rental Rate | Space Use | Build-Out | Available |
| 1st Floor | 5,000 SF | Negotiable | $25.54 CAD/SF/YR $2.13 CAD/SF/MO $127,702 CAD/YR $10,642 CAD/MO | Industrial | - | Now |
1st Floor
| Size |
| 5,000 SF |
| Term |
| Negotiable |
| Rental Rate |
| $25.54 CAD/SF/YR $2.13 CAD/SF/MO $127,702 CAD/YR $10,642 CAD/MO |
| Space Use |
| Industrial |
| Build-Out |
| - |
| Available |
| Now |
1st Floor
| Size | 5,000 SF |
| Term | Negotiable |
| Rental Rate | $25.54 CAD/SF/YR |
| Space Use | Industrial |
| Build-Out | - |
| Available | Now |
This free-standing industrial building is available for immediate occupancy, offering 5 dedicated parking spaces with the option for up to 21 car spaces. The property features a 15' ceiling height, 1 dock door for efficient loading, and an office and kitchen area of approximately 425 square feet. Additional parking space can be arranged as needed.
- Lease rate does not include certain property expenses
- Includes 425 SF of dedicated office space
- 1 Loading Dock
- Kitchen
Warehouse Facility Facts
Presented by
107 Industrial Ave
Hmm, there seems to have been an error sending your message. Please try again.
Thanks! Your message was sent.



