Log In/Sign Up
Your email has been sent.
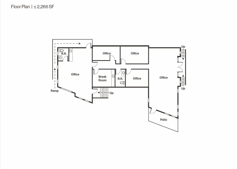
Investment Highlights
- Owner-User office in the heart of Midtown
- Patio Space
- Major Remodeling
Executive Summary
- Upscale owner-user office in the heart of Midtown
- Major remodel with over 60% of the building having new construction
- Reception & multiple bullpen areas
- Patio Space
- Ramp access available
- Three (3) private offices
- Two (2) open area office spaces
- Break room & kitchenette
- Two (2) bathrooms
- Seven (7) parking spots
- Major remodel with over 60% of the building having new construction
- Reception & multiple bullpen areas
- Patio Space
- Ramp access available
- Three (3) private offices
- Two (2) open area office spaces
- Break room & kitchenette
- Two (2) bathrooms
- Seven (7) parking spots
Property Facts
Sale Type
Owner User
Property Type
Office
Building Size
2,266 SF
Building Class
C
Year Built/Renovated
1929/2025
Price
$1,464,328 CAD
Price Per SF
$646.22 CAD
Tenancy
Single
Building Height
1 Story
Typical Floor Size
2,266 SF
Building FAR
0.43
Lot Size
0.12 AC
Zoning
MU-MC
Parking
4 Spaces (1.77 Spaces per 1,000 SF Leased)
Very walkable
80/100
Moderately drivable
60/100
Some public transit
40/100
Moderately bikeable
60/100
Property Taxes
| Parcel Number | 014-062-12 | Improvements Assessment | $102,503 CAD |
| Land Assessment | $64,673 CAD | Total Assessment | $167,176 CAD |
Property Taxes
Parcel Number
014-062-12
Land Assessment
$64,673 CAD
Improvements Assessment
$102,503 CAD
Total Assessment
$167,176 CAD
1 of 9
Videos
Matterport 3D Exterior
Matterport 3D Tour
Photos
Street View
Street
Map
Presented by
1071 Haskell St
Already a member? Log In
Hmm, there seems to have been an error sending your message. Please try again.
Thanks! Your message was sent.




