Your email has been sent.
Park Highlights
- Multi-building medical and office campus with landscaped grounds.
- Free structured and surface parking (3.7/1,000 SF).
- Close to major healthcare facilities and Beltway access.
- Spaces available from 1,057 SF to 32,467 SF; total availability 40,639 SF.
- On-site café, fitness center, and property management.
- Flexible lease terms; full-service lease options.
Park Facts
| Total Space Available | 40,639 SF | Park Type | Office Park |
| Total Space Available | 40,639 SF |
| Park Type | Office Park |
All Available Spaces(7)
Display Rental Rate as
- Space
- Size
- Term
- Rental Rate
- Space Use
- Build-Out
- Available
Lower level storage space.
Shell space, ready for buildout.
- Natural Light
- Partially Built-Out as Standard Office
- Central Air Conditioning
- Mostly Open Floor Plan Layout
- Natural Light
| Space | Size | Term | Rental Rate | Space Use | Build-Out | Available |
| Ground | 16,767 SF | 5-10 Years | Upon Request Upon Request Upon Request Upon Request | Office | - | Now |
| 1st Floor | 4,374 SF | 5-10 Years | Upon Request Upon Request Upon Request Upon Request | Office | Shell Space | Now |
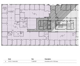
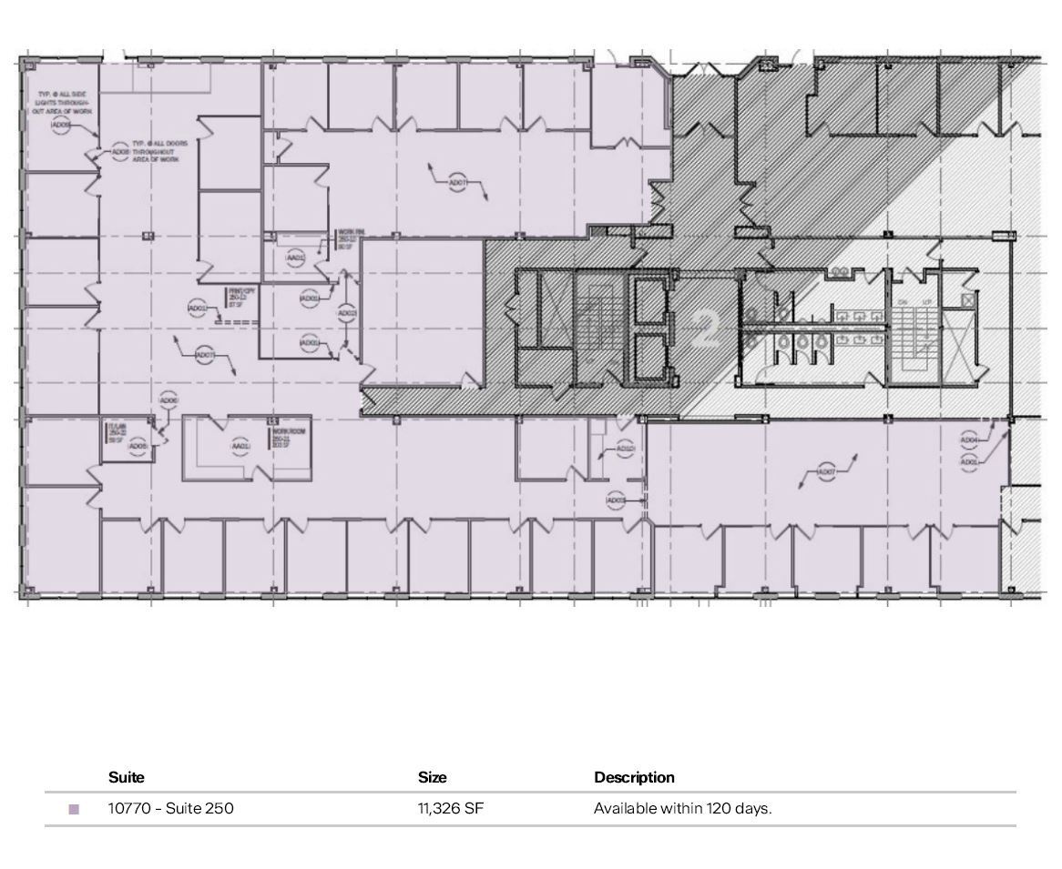
| 2nd Floor, Ste 250 | 11,326 SF | Negotiable | Upon Request Upon Request Upon Request Upon Request | Office | Partial Build-Out | 120 Days |
10770 Columbia Pike - Ground
10770 Columbia Pike - 1st Floor
10770 Columbia Pike - 2nd Floor - Ste 250
- Space
- Size
- Term
- Rental Rate
- Space Use
- Build-Out
- Available
- Partially Built-Out as Standard Office
- Natural Light
- Mostly Open Floor Plan Layout
- Partially Built-Out as Standard Office
- Natural Light
- Mostly Open Floor Plan Layout
| Space | Size | Term | Rental Rate | Space Use | Build-Out | Available |
| 2nd Floor, Ste 201 | 2,809 SF | Negotiable | Upon Request Upon Request Upon Request Upon Request | Office/Medical | Partial Build-Out | Now |
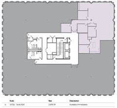
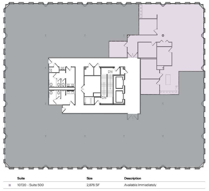
| 5th Floor, Ste 500 | 2,876 SF | 5-10 Years | Upon Request Upon Request Upon Request Upon Request | Office | Partial Build-Out | Now |
10720 Columbia Pike - 2nd Floor - Ste 201
10720 Columbia Pike - 5th Floor - Ste 500
- Space
- Size
- Term
- Rental Rate
- Space Use
- Build-Out
- Available
- Partially Built-Out as Standard Office
- Natural Light
- Mostly Open Floor Plan Layout
- Partially Built-Out as Standard Office
- Natural Light
- Mostly Open Floor Plan Layout
| Space | Size | Term | Rental Rate | Space Use | Build-Out | Available |
| 3rd Floor, Ste 315 | 1,430 SF | 5-10 Years | Upon Request Upon Request Upon Request Upon Request | Office/Medical | Partial Build-Out | Now |
| 5th Floor | 1,057 SF | 5-10 Years | Upon Request Upon Request Upon Request Upon Request | Office/Medical | Partial Build-Out | Now |
10750 Columbia Pike - 3rd Floor - Ste 315
10750 Columbia Pike - 5th Floor
10770 Columbia Pike - Ground
| Size | 16,767 SF |
| Term | 5-10 Years |
| Rental Rate | Upon Request |
| Space Use | Office |
| Build-Out | - |
| Available | Now |
Lower level storage space.
10770 Columbia Pike - 1st Floor
| Size | 4,374 SF |
| Term | 5-10 Years |
| Rental Rate | Upon Request |
| Space Use | Office |
| Build-Out | Shell Space |
| Available | Now |
Shell space, ready for buildout.
- Natural Light
10770 Columbia Pike - 2nd Floor - Ste 250
| Size | 11,326 SF |
| Term | Negotiable |
| Rental Rate | Upon Request |
| Space Use | Office |
| Build-Out | Partial Build-Out |
| Available | 120 Days |
- Partially Built-Out as Standard Office
- Mostly Open Floor Plan Layout
- Central Air Conditioning
- Natural Light
10720 Columbia Pike - 2nd Floor - Ste 201
| Size | 2,809 SF |
| Term | Negotiable |
| Rental Rate | Upon Request |
| Space Use | Office/Medical |
| Build-Out | Partial Build-Out |
| Available | Now |
- Partially Built-Out as Standard Office
- Mostly Open Floor Plan Layout
- Natural Light
10720 Columbia Pike - 5th Floor - Ste 500
| Size | 2,876 SF |
| Term | 5-10 Years |
| Rental Rate | Upon Request |
| Space Use | Office |
| Build-Out | Partial Build-Out |
| Available | Now |
- Partially Built-Out as Standard Office
- Mostly Open Floor Plan Layout
- Natural Light
10750 Columbia Pike - 3rd Floor - Ste 315
| Size | 1,430 SF |
| Term | 5-10 Years |
| Rental Rate | Upon Request |
| Space Use | Office/Medical |
| Build-Out | Partial Build-Out |
| Available | Now |
- Partially Built-Out as Standard Office
- Mostly Open Floor Plan Layout
- Natural Light
10750 Columbia Pike - 5th Floor
| Size | 1,057 SF |
| Term | 5-10 Years |
| Rental Rate | Upon Request |
| Space Use | Office/Medical |
| Build-Out | Partial Build-Out |
| Available | Now |
- Partially Built-Out as Standard Office
- Mostly Open Floor Plan Layout
- Natural Light
Park Overview
Colesville Medical Campus offers a premier office and medical leasing opportunity in Silver Spring, Maryland, just one mile outside the Beltway on Route 29. This three-building campus provides a professional environment with landscaped open areas and modern amenities, making it an ideal setting for healthcare providers and office users. The property features free structured and surface parking (3.7 spaces per 1,000 SF), an on-site café, fitness center, and on-site management. Its proximity to Holy Cross Hospital and Adventist HealthCare White Oak Pavilion enhances its appeal for medical practices. Available spaces range from 1,057 SF to over 32,000 SF, with options for partial build-outs and shell spaces ready for customization. With excellent regional connectivity and a strong suburban location, Colesville Medical Campus is well-suited for medical offices, specialty practices, and professional service firms seeking a high-quality, accessible environment.
Presented by
Colesville Medical Campus | Silver Spring, MD 20901
Hmm, there seems to have been an error sending your message. Please try again.
Thanks! Your message was sent.















